Comfortable family living near schools and transport links in a quiet suburb.
Deceptively spacious three-bedroom semi-detached home
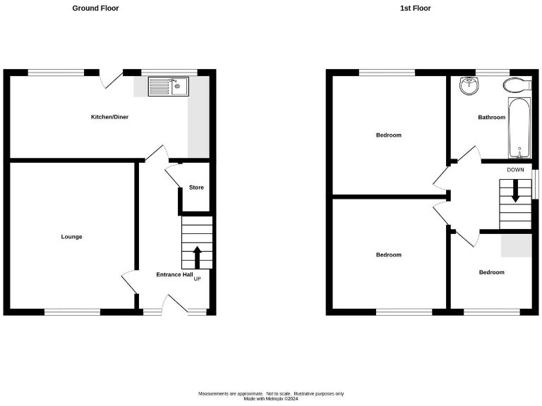
This well-presented three-bedroom semi-detached house offers practical family living in a quiet, convenient suburb. Ground floor layout includes a comfortable lounge and a modern, well-fitted kitchen with a dining area, creating a sociable heart to the home.
Upstairs provides three well-proportioned bedrooms and a white-suite bathroom. Gas central heating and double glazing help with comfort, while fast broadband and excellent mobile signal suit home working and streaming. Nearby schools, shops and public transport make daily life straightforward for families.
Outside there is a large driveway providing ample off-street parking and a secluded, low-maintenance rear garden. The property is freehold with low council tax and very low local crime levels. Notable points to consider: the home has an EPC rating of D and the cavity walls are assumed to lack insulation, so buyers should factor potential energy-efficiency improvements into plans. The plot and overall internal size are modest, and there is a single family bathroom.
3 bedroom semi-detached house for sale in Teviot Gardens, Pensnett, Brierley Hill, DY5 4QL, DY5 — £215,000 • 3 bed • 1 bath • 728 ft²
3 bedroom semi-detached house for sale in Oak Park Road, Wordsley, Stourbridge, DY8 5YJ, DY8 — £299,950 • 3 bed • 1 bath • 905 ft²
3 bedroom semi-detached house for sale in Wychbury Road, Brierley Hill, DY5 2XX, DY5 — £250,000 • 3 bed • 1 bath • 765 ft²
3 bedroom semi-detached house for sale in Matlock Close, Netherton, Dudley, DY2 9RP, DY2 — £230,000 • 3 bed • 1 bath • 722 ft²
3 bedroom terraced house for sale in Thorns Avenue, Brierley Hill, DY5 2XE, DY5 — £190,000 • 3 bed • 1 bath • 819 ft²
2 bedroom semi-detached house for sale in Farm Road, Brierley Hill, DY5 2XH, DY5 — £190,000 • 2 bed • 1 bath • 646 ft²










































































