Chain-free three-bed terrace in Lincoln — affordable, central, and ready for cosmetic updating.
Chain-free freehold terraced house in central Lincoln
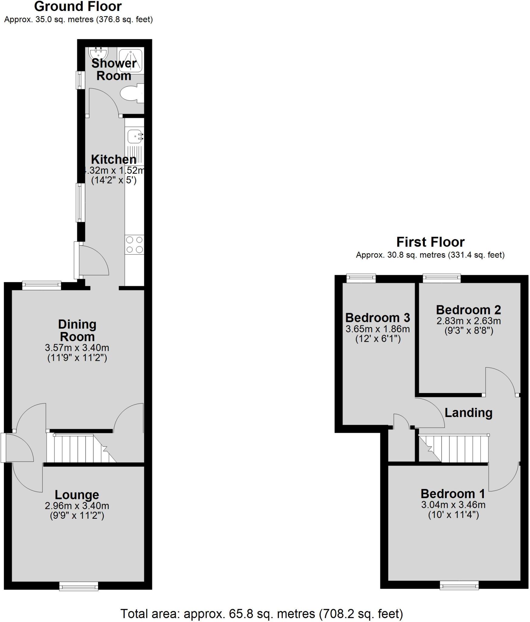
Compact layout: lounge, dining room, galley kitchen, shower room
Three small-to-average bedrooms across two storeys
Enclosed rear garden with patio and garden shed
EPC rating D; may need cosmetic updating
Residents’ permit on-street parking; no off-street parking
Very high local crime rate and very deprived area
Suitable for buy-to-let or first-time buyers comfortable with city living
This compact three-bedroom mid-terraced house offers an affordable entry into Lincoln’s Cathedral and university area. Over two storeys the layout is straightforward: lounge, dining room, galley kitchen, shower room and three modest bedrooms. The property is chain-free and freehold, making it a simple move for first-time buyers or a quick turnaround for investors.
Its location close to the city centre, university and local amenities is a clear strength — buses, shops and the city’s cultural attractions are within easy reach. The house benefits from an enclosed rear garden with patio and shed, plus residents’ permit on-street parking. Council Tax is low (Band A) and broadband and mobile signals are strong.
Be realistic about the setting and condition: the neighbourhood is described as very deprived with a very high local crime rate, and the immediate area has a strong student and transitional Eastern European character. Internally the footprint is small and rooms are compact; the EPC is band D. While the kitchen appears modern and the property is habitable, buyers should expect cosmetic updating and to assess security and noise given the urban location.
For first-time buyers wanting central access at an affordable price, or investors seeking a student or rental let, this property presents clear potential. Factor in the neighbourhood profile and modest room sizes when considering suitability and future rental/yield expectations.
3 bedroom terraced house for sale in Lancaster Place, Lincoln, LN5 — £105,000 • 3 bed • 1 bath • 625 ft²
3 bedroom terraced house for sale in Tealby Street, Lincoln, LN5 — £120,000 • 3 bed • 1 bath • 795 ft²
3 bedroom terraced house for sale in Abbot Street, Lincoln , LN5 — £175,000 • 3 bed • 1 bath • 1161 ft²
3 bedroom terraced house for sale in Scorer Street, Lincoln, LN5 — £130,000 • 3 bed • 1 bath • 821 ft²
3 bedroom terraced house for sale in Maple Street, Lincoln, LN5 — £140,000 • 3 bed • 1 bath • 786 ft²
3 bedroom terraced house for sale in Monks Road, Lincoln, LN2 — £145,000 • 3 bed • 1 bath • 1006 ft²






































