Bright W11 flat with communal garden and long lease, ideal for buyers seeking renovation potential..
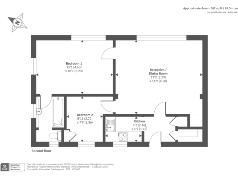
Two-bedroom second-floor flat, approx. 662 sq ft
A bright two-bedroom second-floor apartment in the heart of Notting Hill, offering 662 sq ft of adaptable living space and direct access to a well-kept communal garden. The block benefits from recently renovated communal areas, long leasehold security (share of freehold with 966 years remaining) and fast broadband/mobile coverage — all useful for home working or city living.
The apartment is presented as a blank canvas internally, making it ideal for buyers who want to personalise finishes and maximise value. Practical features include multiple storage locations, secondary glazing and community mains-gas heating. The property sits close to Portobello Road and local amenities, with good transport links to central London.
Buyers should note the single bathroom layout and an above-average annual service charge of approximately £5,000. Council tax is also above average. Overall this is a well-located, comfortable flat with renovation potential and communal green space — viewings recommended to appreciate the light and layout in person.
2 bedroom flat for sale in St Lukes Road, Notting Hill, London, W11 — £735,000 • 2 bed • 1 bath • 682 ft²
2 bedroom flat for sale in Colville Terrace, Notting Hill, W11 — £1,595,000 • 2 bed • 3 bath • 1027 ft²
1 bedroom apartment for sale in Ladbroke Grove, Notting Hill, W11 — £1,250,000 • 1 bed • 2 bath • 764 ft²
2 bedroom flat for sale in 34 Thornbury Court, 36-38 Chepstow Villas, London, W11 — £1,850,000 • 2 bed • 2 bath • 1109 ft²
2 bedroom flat for sale in Kensington Park Road, Notting Hill, W11 — £900,000 • 2 bed • 1 bath • 561 ft²
2 bedroom flat for sale in Ladbroke Grove, Notting Hill, W11 — £900,000 • 2 bed • 2 bath • 801 ft²






















































































