CT14 6BY - 3 bedroom end of terrace house for sale in College Road, De…

View on Property Piper

3 bedroom end of terrace house for sale in College Road, Deal, Kent, CT14

Summary - 164 COLLEGE ROAD DEAL CT14 6BY

3 bed 1 bath End of Terrace

**Standout Features:**
- Off-road parking for one vehicle, a rare find in the area.
- Deceptively spacious with three generously sized bedrooms and ample living spaces.
- Low-maintenance, paved rear garden perfect for relaxing or entertaining.
- Modern shower room with a large walk-in shower.
- Prime location just minutes from the beach and the bustling town center, filled with markets, restaurants, and cafes.

**Potential Downsides:**
- Average room sizes, may not appeal to those seeking larger spaces.
- Only basic insulation assumed, could require attention for energy efficiency.

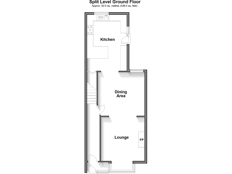
Nestled in the heart of Deal's vibrant community, this stunning three-bedroom end-of-terrace home offers both space and convenience. Enjoy leisurely strolls to your favorite local shops or soak up the sun at the nearby beach, making it an ideal permanent residence or investment opportunity. The home boasts a spacious lounge with a contemporary fireplace, a separate dining area, and a well-equipped kitchen/breakfast room that fosters both family gatherings and entertaining. With off-road parking and a low-maintenance garden, this property also meets the demands of busy modern lifestyles.

Ideal for families and first-time buyers alike, the property is presented immaculately and has a modern aesthetic that allows for easy personal touches. There’s ample potential to put your stamp on it, along with the flexibility to expand or renovate in the future. With low crime rates and good schools in close proximity, this home is perfect for those seeking a safe and welcoming environment. Don't miss out on this exclusive opportunity in a sought-after area—properties like this are a rare find!

Property Details

Image Descriptions

Floorplan Description

Rooms

Textual Property Features

Detected Visual Features

EPC Details

Nearby Schools

Nearest Bars And Restaurants

,,,,}

Nearest General Shops

,,}

Nearest Grocery shops

,,}

Nearest Supermarkets

,,}

Nearest Religious buildings

,,}

Nearest Medical buildings

,,,}

Nearest Leisure Facilities

,,,,}

Nearest Tourist attractions

,,}

Nearest Train stations

,,,,}

Nearest Bus stations and stops

,,,,}

Nearest Hotels

,,}

Tags

Local Market Stats

AirBnB Data

Similar Properties

Meta

High Res Images

Compatible Images

Low res Images

Thumbnails

Raw Images

High Res Floorplan Images

Compatible Floorplan Images

Low res Floorplan Images

FloorplanImages Thumbnail

Raw Floorplan Images