Bright three-bedroom with terrace and parking, ideal for city families.
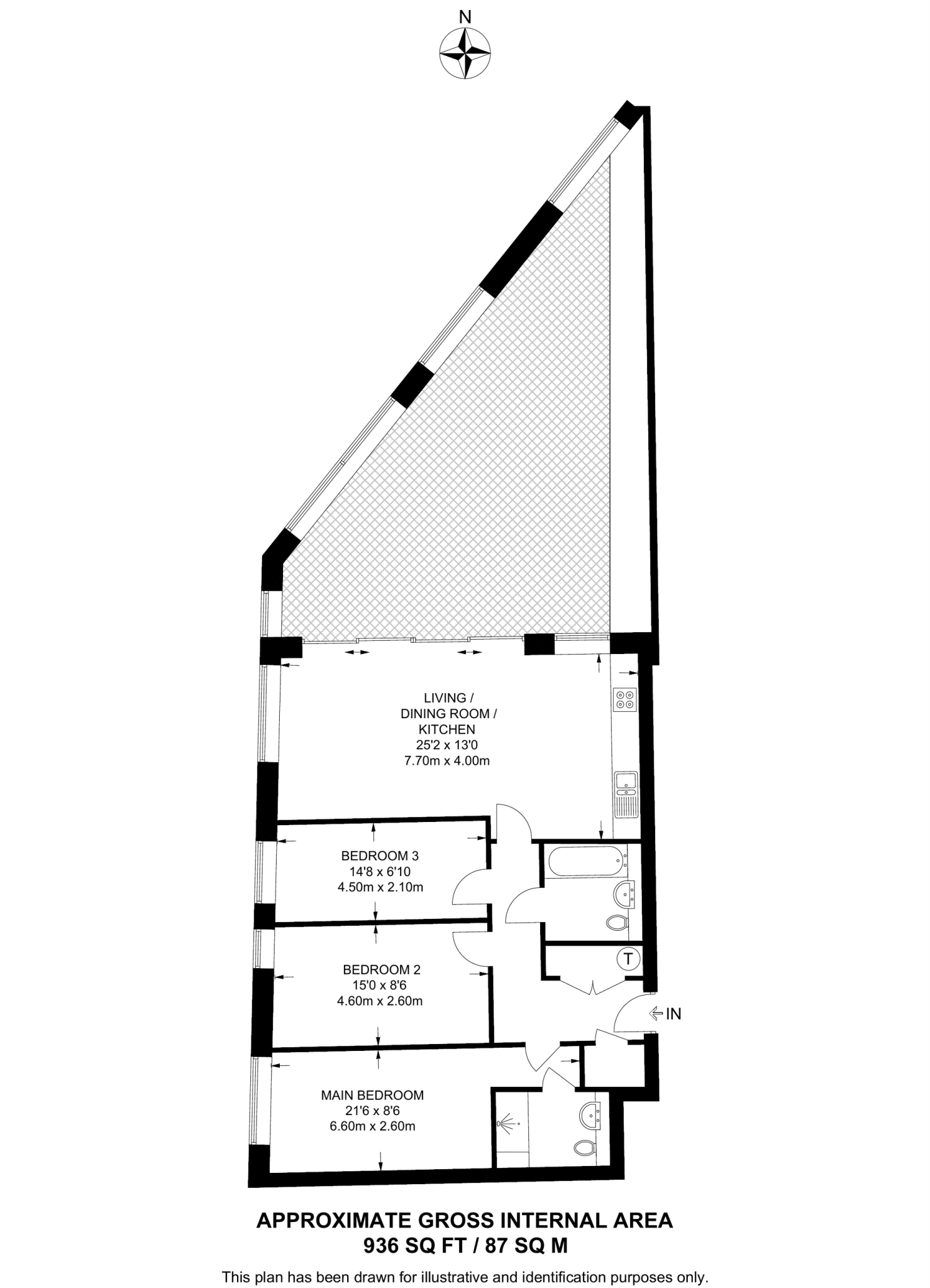
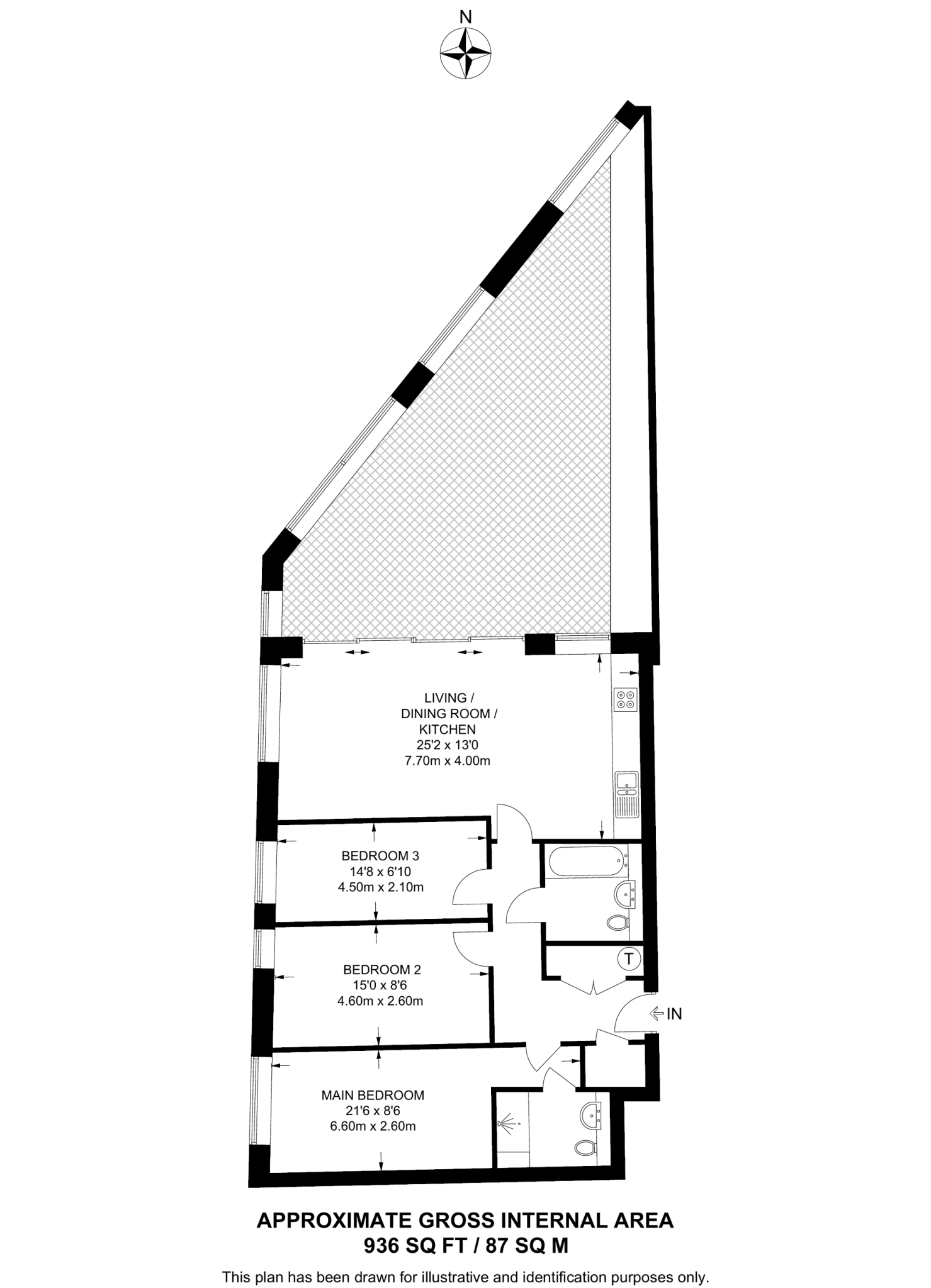
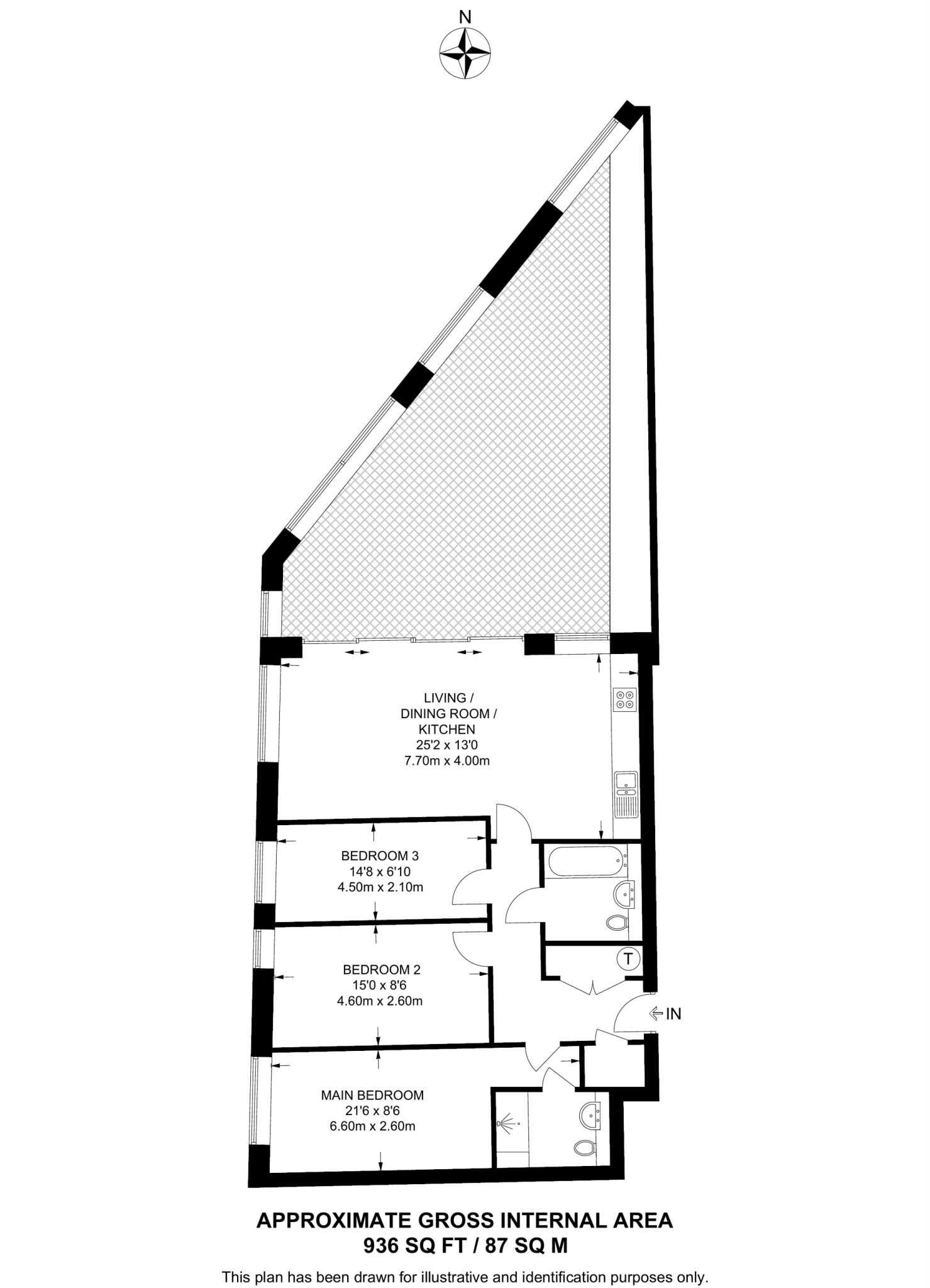
Dual-aspect 35th-floor penthouse with private roof terrace
Perched on the 35th floor, this dual-aspect three-bedroom penthouse delivers bright, open-plan living and a private roof terrace with wide London views. Interiors are generous for a city home, with two sleek bathrooms, a sunlit reception/kitchen and a dedicated off-street parking spot. The long lease (986 years) and communal facilities including a gym and business lounge add practical value.
Positioned moments from Westfield, the Olympic Park and Stratford transport hubs, the flat suits families wanting easy access to shops, green space and multiple good primary schools nearby. The building’s communal heating scheme simplifies individual maintenance but can limit control over heating costs and timing.
Buyers should note material points: the property is leasehold, located in a high-crime and medium-flood-risk area, and sits within a busy, multicultural student neighbourhood. The apartment is average-sized (936 sq ft) and, while well-presented, offers potential for cosmetic updating to suit personal taste. Overall, this is a compelling city-top residence for families seeking space, views and strong local amenities, provided they accept the urban trade-offs.
2 bedroom apartment for sale in Chandos Road, London, E15 — £375,000 • 2 bed • 2 bath
3 bedroom flat for sale in Unex Tower, Stratford, London, E15 — £775,000 • 3 bed • 2 bath • 1185 ft²
3 bedroom penthouse for sale in Braithwaite House, Forrester Way, London E15 — £825,000 • 3 bed • 2 bath • 1060 ft²
2 bedroom flat for sale in High Street, Stratford, London, E15 — £490,000 • 2 bed • 2 bath • 936 ft²
1 bedroom flat for sale in Meridia Court, 1a Biggerstaff Road, Stratford, London, E15 — £285,000 • 1 bed • 1 bath • 1161 ft²
2 bedroom penthouse for sale in Thanet Tower, Royal Docks, London, E16 — £750,000 • 2 bed • 3 bath • 1242 ft²


















































































































































































































































































































































































































































































































































































































