Extensive family living with high-end finishes and versatile entertainment space.
Completed new build 2022 with 10-year new-build warranty
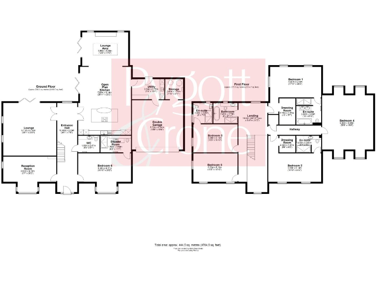
An imposing five-bedroom detached home completed in 2022 and finished to a high specification, this property offers nearly 4,800 sq ft of flexible family living on the edge of Burgh Le Marsh. The layout centres on a grand entrance with an oak-and-glass staircase, a showpiece Sheraton kitchen with premium Bosch appliances and quartz worktops, a superb open-plan garden room with bi-fold doors, and underfloor heating to the ground floor for comfortable year-round living.
Accommodation includes a ground-floor bedroom suite and study, four first-floor bedrooms with a principal suite featuring a dressing room and spa-style en-suite, plus three en-suites in total. A large games room above the double garage gives strong potential for entertainment, home gym or hobby space. Practical highlights include a block-paved driveway, double garage, generous rear terrace and lawn, an air-source heat pump for efficient heating, and an EPC rating of B.
This home suits a family seeking roomy, contemporary living in a village setting, with nearby primary and secondary school options and local leisure amenities. Buyers should note some internal images are digitally dressed and certain details (council tax band) remain TBC; a full inspection will confirm final finishes and specification. A 10-year new-build warranty is in place, supporting the property’s new-construction credentials.
Connectivity is good for the area, with fast broadband reported and average mobile signal. There is no recorded flood risk. Overall, the house represents a high-spec, energy-efficient modern family residence with generous living space and useful outbuilding accommodation, best appreciated in person.
6 bedroom detached house for sale in No 27 Orby Road, Burgh le Marsh, Skegness, Lincolnshire, PE24 — £895,000 • 6 bed • 4 bath • 5346 ft²
3 bedroom detached house for sale in Doubledays Lane, Burgh Le Marsh, PE24 — £550,000 • 3 bed • 2 bath • 2418 ft²
4 bedroom detached house for sale in 108 Horncastle Road, Woodhall Spa, LN10 — £799,995 • 4 bed • 4 bath • 2036 ft²
5 bedroom detached bungalow for sale in Station Road, Burgh Le Marsh, Skegness, PE24 — £525,000 • 5 bed • 2 bath • 2411 ft²
5 bedroom detached house for sale in Plot 2 Girls School Lane, Butterwick, Boston, PE22 — £575,000 • 5 bed • 4 bath • 2833 ft²
5 bedroom detached house for sale in Lumley Fields, Skegness, PE25 — £460,000 • 5 bed • 4 bath • 1507 ft²


















































































































































































































































































