Large plot, double garage and flexible living ideal for growing families.
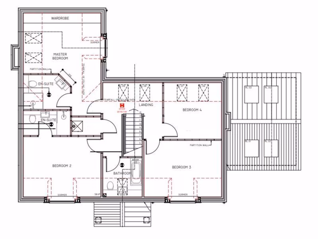
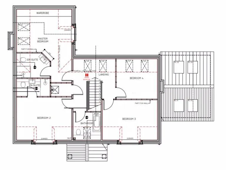
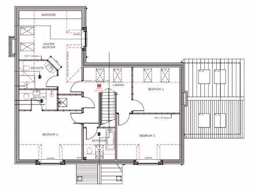
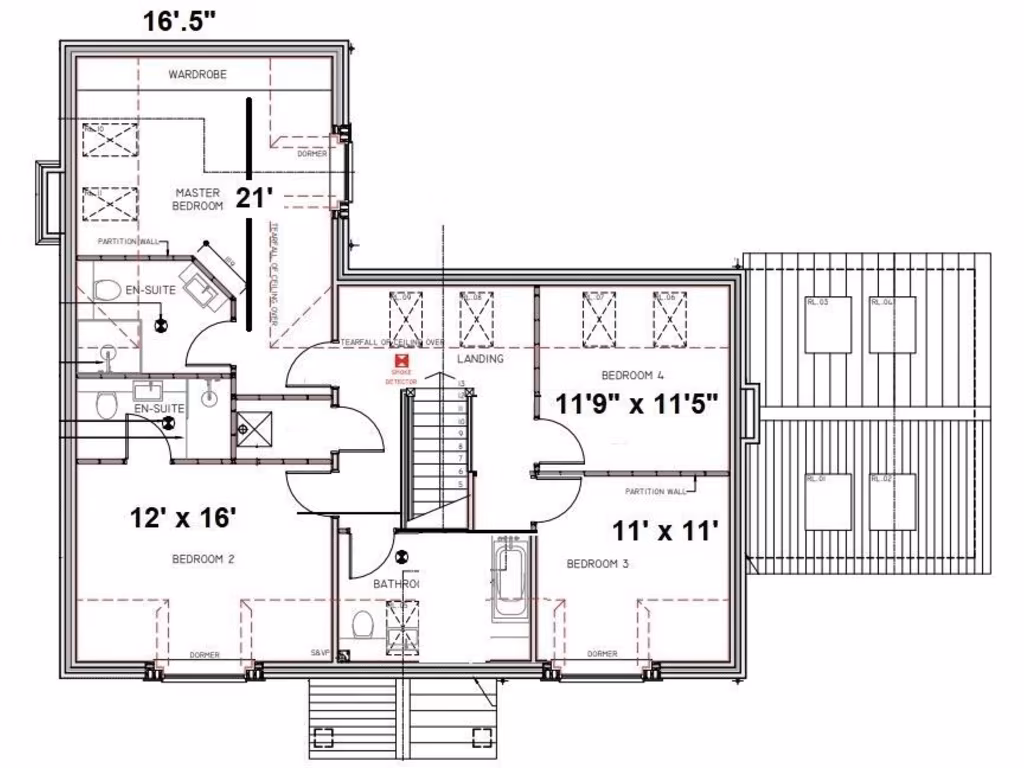
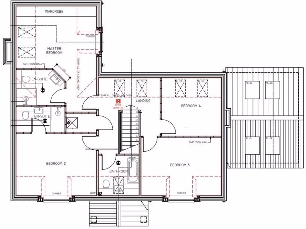
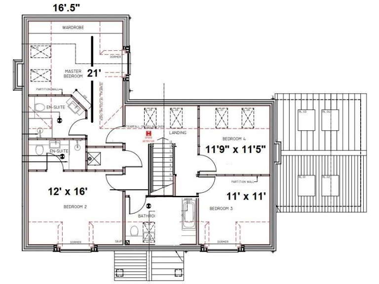
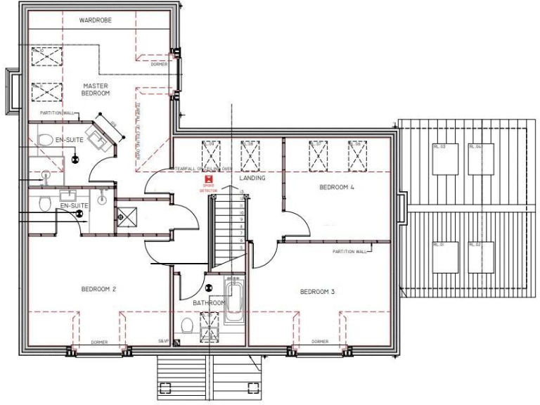
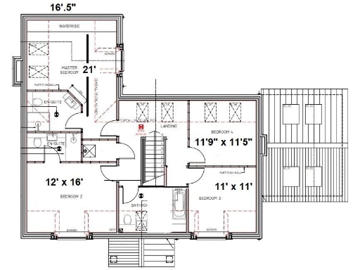
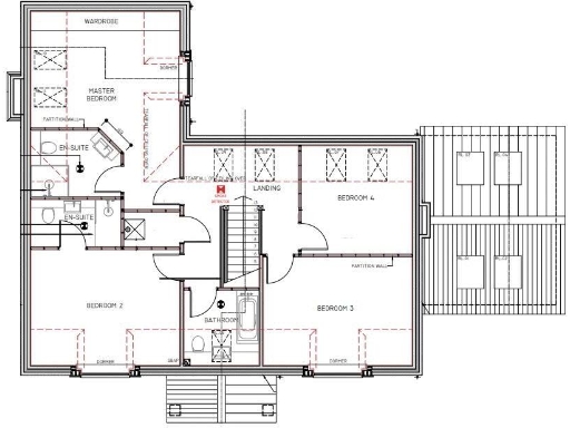
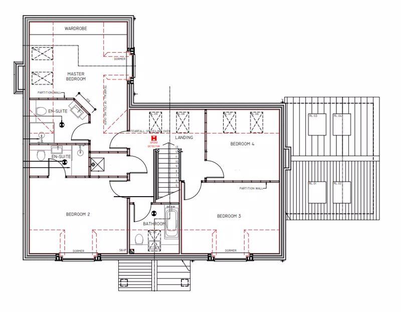
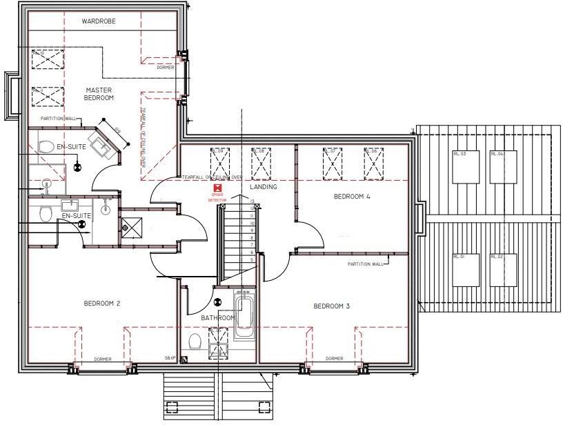
Four double bedrooms, two with en-suite bathrooms
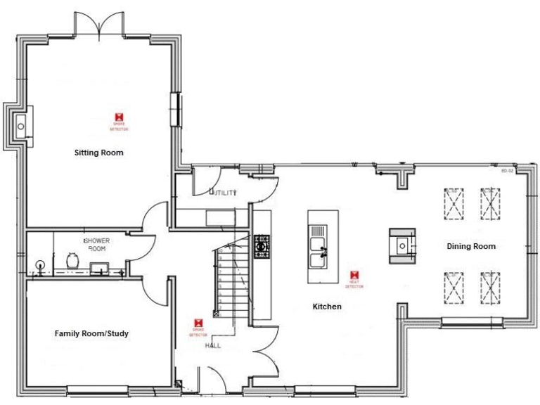
A striking newly built four-double-bedroom detached house on a very large plot, designed for modern family living. The ground floor centres on a vaulted, open-plan kitchen/dining/family room with bifold doors and a central brick fireplace, creating a bright social hub that opens onto a south-facing rear garden. Two bedrooms have en-suite facilities, and there is a separate living room plus a study/bedroom five for flexible use.
Outside, a detached double garage provides secure parking and storage, with a generous recreation room above that could serve as a home office, gym, or play space. Low-maintenance frontage, Union Jack double gates and traditional brick and slate styling give the home kerb appeal while an Architect Certificate Guarantee offers new-build reassurance.
Practical points to note: the surrounding grounds are currently unfinished and will need landscaping to reach their full potential. Broadband speeds in the village are very slow, which may affect home working or streaming until improved. The property is freehold, on a village edge location within an area of older farming communities, and has excellent mobile signal and no flood risk.
This home suits families seeking generous accommodation and flexible outbuildings in a semi-rural village setting, who are prepared to finish external landscaping and tolerate limited broadband performance for the benefits of space, new-build quality and countryside living.
5 bedroom detached house for sale in New Build, Main Street, Boothby Graffoe, LN5 — £895,000 • 5 bed • 4 bath • 3370 ft²
4 bedroom detached house for sale in Sutton Road, Bilsby, LN13 — £450,000 • 4 bed • 3 bath • 2279 ft²
4 bedroom detached house for sale in Philbeech Gardens, Kirton, Boston, PE20 — £425,000 • 4 bed • 2 bath • 1800 ft²
5 bedroom detached house for sale in Sycamore House (Plot 1), Main Street, North Rauceby, Sleaford, Lincolnshire, NG34 — £835,000 • 5 bed • 3 bath • 3379 ft²
4 bedroom detached house for sale in Plot 19, The Pitlochry, Gleneagles Drive, Woodhall Spa, LN10 — £499,995 • 4 bed • 2 bath • 588 ft²
5 bedroom detached house for sale in Chestnut House, Off Main Street, North Rauceby, Sleaford, Lincolnshire, NG34 — £775,000 • 5 bed • 3 bath • 2781 ft²


















































































































