Chain-free project close to town centre and transport links.
Stone-built mid-terrace with period character
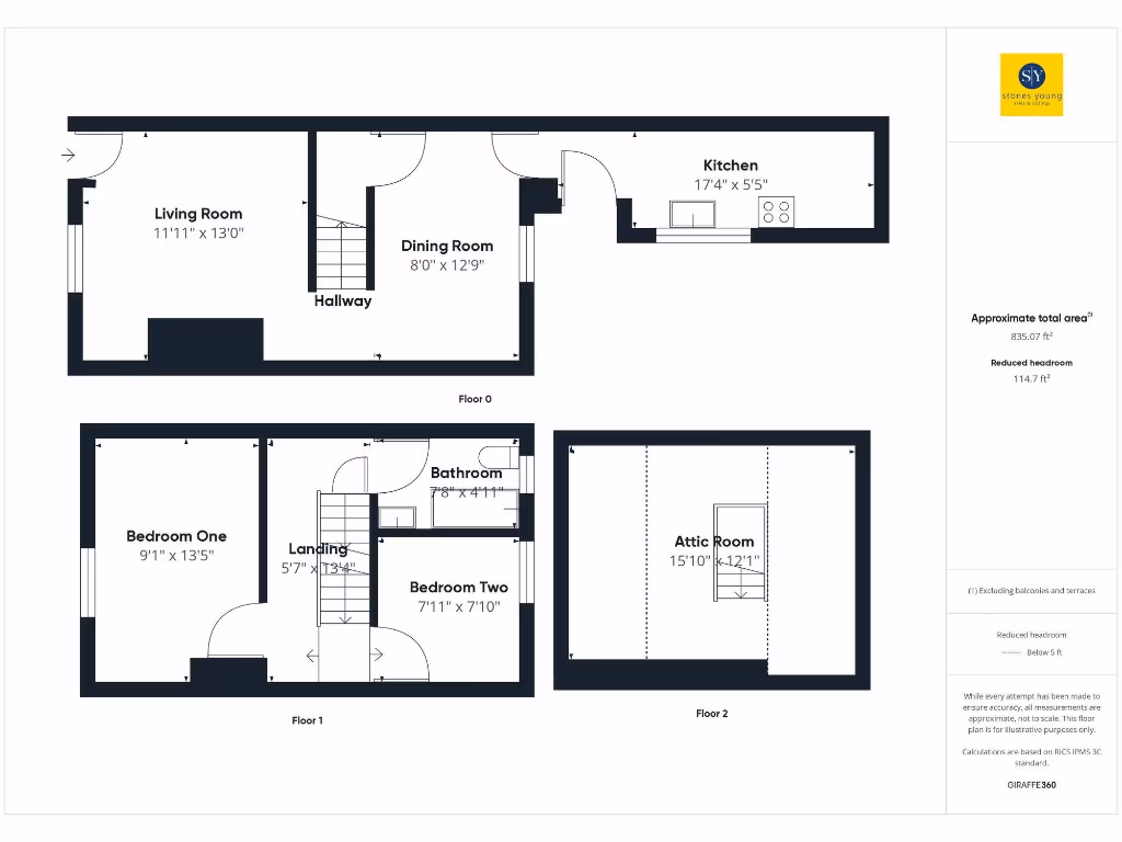
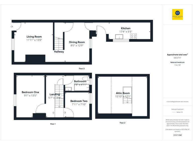
A stone-built mid-terraced house tucked a short walk from Clitheroe town centre, offering straightforward living across three floors. The ground floor has separate lounge and dining rooms and an extended breakfast kitchen; upstairs are two good bedrooms plus an excellent, flexible attic room providing substantial extra space.
This property is offered chain free and suits buyers who want a manageable project or investors seeking rental potential. Recent works include double glazing and mains-gas central heating; the EPC is rated C and council tax is very cheap, which helps running costs.
Important points to note: the house needs renovation and a full electrical rewire (price reduced to reflect this). The rear outdoor space is a very small enclosed yard, and the location is in a high flood-risk area, which will affect insurance and future flood mitigation decisions. Overall this is a practical, characterful home with clear scope to modernise and personalise.
2 bedroom terraced house for sale in Corporation Street, Clitheroe, BB7 — £144,500 • 2 bed • 1 bath • 723 ft²
2 bedroom terraced house for sale in Chatburn Road, Clitheroe, BB7 — £195,000 • 2 bed • 1 bath • 1264 ft²
2 bedroom terraced house for sale in Pendle Road, Clitheroe, BB7 1JQ, BB7 — £154,995 • 2 bed • 1 bath • 1079 ft²
2 bedroom terraced house for sale in St. Marys Street, Clitheroe, BB7 — £199,500 • 2 bed • 1 bath • 789 ft²
2 bedroom terraced house for sale in Taylor Street, Clitheroe, Lancashire, BB7 — £160,000 • 2 bed • 1 bath • 1275 ft²
2 bedroom terraced house for sale in St Marys Street, Clitheroe, BB7 2HH, BB7 — £169,950 • 2 bed • 1 bath • 938 ft²


















































