Well-presented family home with private south garden and strong school links.
• Three bedrooms with fitted wardrobes in the principal bedroom
• South-facing private rear garden with summer house
• Large driveway providing ample off-street parking
• Presented in modern order — ready to move into
• Approx. 818 sq ft — average-sized family home
• EPC C; Council Tax Band F — higher running costs
• Within catchment for high-performing local schools
• Wider area classification: higher deprivation noted
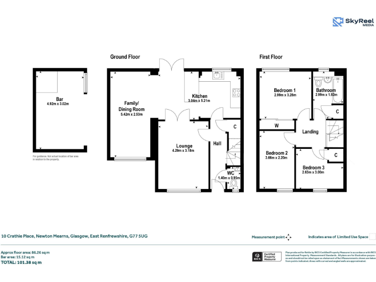
This well-presented three-bedroom semi-detached home on a quiet Newton Mearns cul-de-sac offers flexible family living across two levels. Light-filled reception rooms include a front lounge, a dual-aspect family room opening to a formal dining area, and a contemporary kitchen with French doors to the garden — all arranged for everyday family use and informal entertaining.
Upstairs provides a principal bedroom with fitted mirrored wardrobes, two further good-sized bedrooms and a three-piece family bathroom with an over-bath shower. The house is presented in modern order and benefits from practical storage and a guest WC on the ground floor, making it straightforward to move into and live comfortably from day one.
Outside, the fully enclosed south-facing rear garden is private and low-maintenance, with a summer house that adds useful extra space. The front has a large driveway giving generous off-street parking. Commuters have easy access to the M77/M8 and regular public transport to Glasgow, and the location sits within the catchment of highly regarded local primary and secondary schools.
Buyers should note the property is an average-sized home at approximately 818 sq ft with an EPC rating of C and Council Tax Band F, which means running costs may be higher than smaller or lower-band homes. The wider area is classified as more deprived despite the immediate suburban setting, so buyers should consider local context alongside the many local amenities and strong school links.
3 bedroom semi-detached house for sale in Alloway Drive, Newton Mearns, Glasgow, G77 — £265,000 • 3 bed • 1 bath • 738 ft²
2 bedroom semi-detached house for sale in Chisholm Drive, Newton Mearns, Glasgow, G77 — £250,000 • 2 bed • 1 bath • 775 ft²
3 bedroom semi-detached house for sale in 20 Weaver Avenue, Newton Mearns, Glasgow, G77 — £270,000 • 3 bed • 1 bath • 893 ft²
3 bedroom semi-detached house for sale in Harris Close, Newton Mearns, G77 — £245,000 • 3 bed • 1 bath • 807 ft²
3 bedroom semi-detached house for sale in Lavender Drive, Newton Mearns, G77 — £290,000 • 3 bed • 2 bath • 947 ft²
3 bedroom semi-detached house for sale in Ballantrae Crescent, Newton Mearns, G77 — £265,000 • 3 bed • 1 bath • 872 ft²






























































































