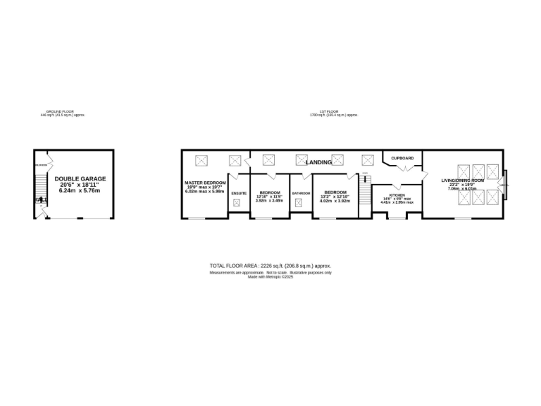
Light-filled barn conversion with private garage and long-range countryside aspect.
Over 2,200 sq ft of coach-house accommodation
Set within an exclusive gated courtyard, this converted coach house extends to over 2,200 sq ft and is arranged over two levels. A vaulted lounge with Juliet balcony captures long-range countryside views, while a separate, well-equipped kitchen and generous bedrooms give family-friendly living space. The layout suits flexible living, with eight rooms in total and plenty of storage.
Practical features include an electric-doored double garage, private walled patio and off-street parking. The property was constructed in the 2003–2006 period and benefits from modern double glazing, mains gas central heating and excellent mobile signal strength — useful for remote working.
Buyers should note the property is leasehold and attracts an above-average council tax band. Broadband speeds are reported as slow in the immediate area, and the external garden space is a private, paved walled patio rather than extensive grounds. Overall, this home offers low-external-maintenance living with generous internal proportions and strong local schooling and countryside appeal.
2 bedroom apartment for sale in Huntspill Road, West Timperley, Altrincham, WA14 — £225,000 • 2 bed • 1 bath • 728 ft²
3 bedroom coach house for sale in Suffolk Road, Altrincham, WA14 — £825,000 • 3 bed • 2 bath • 1860 ft²
4 bedroom detached house for sale in Stunning barn conversion in Daresbury with open views, WA4 — £950,000 • 4 bed • 3 bath • 3060 ft²
3 bedroom barn conversion for sale in Dutton Hall Court, Northwich Road, Dutton, Warrington, WA4 — £400,000 • 3 bed • 2 bath • 1323 ft²
3 bedroom coach house for sale in Old Hall Mill Lane, Atherton, M46 — £500,000 • 3 bed • 3 bath • 1550 ft²
4 bedroom detached house for sale in The Old Coach House, Northlea, 4A Suffolk Road, Altrincham, WA14 — £1,195,000 • 4 bed • 3 bath • 2208 ft²






























































