Newly renovated Victorian five-bedroom with balcony views, garage and large garden.
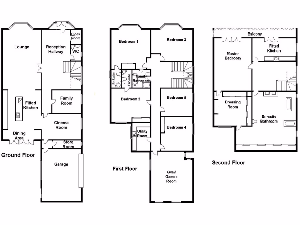
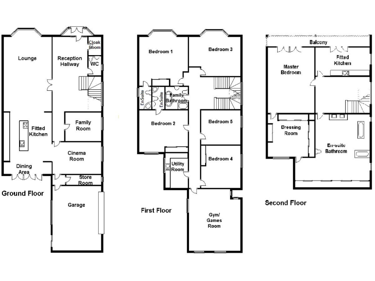
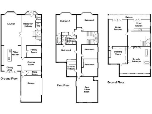
Five bedrooms and three bathrooms across multiple floors
This striking Victorian link-detached home sits on West Beach with full-length balcony views across the green and estuary. The house has been newly renovated throughout and combines period character—high ceilings, bay windows and sash detailing—with contemporary finishes such as underfloor heating, a high-spec kitchen and extensive fitted joinery.
Arranged over multiple floors, accommodation includes five bedrooms, three bathrooms and generous reception space including a cinema room, lounge and dining orangery that opens via bifolds to a raised deck and landscaped rear garden. The second-floor master suite features a dressing room, large en suite and a balcony that captures panoramic water and distant hills—ideal for those who prize views and indoor/outdoor living.
Practical strengths include an integral double garage, driveway, private walled garden, excellent mobile signal and fast broadband. The property is in an affluent part of Lytham St. Annes within walking distance of independent shops, cafés and restaurants and has highly rated local schools nearby, making it well suited to families seeking space and seaside atmosphere.
Buyers should note some important factual points: the overall size listed is small relative to the accommodation description (total 517 sq ft), and tenure is not specified. The wider area classifications list communal retirement and ageing urban communities, which may influence future planning or purchaser expectations. These matters should be clarified early in any purchase process.
4 bedroom character property for sale in East Beach, Lytham, FY8 — £800,000 • 4 bed • 3 bath • 2742 ft²
3 bedroom semi-detached house for sale in Beach Street, Lytham, FY8 — £595,000 • 3 bed • 2 bath • 1123 ft²
4 bedroom semi-detached house for sale in Derbe Road, Lytham St. Annes, FY8 — £330,000 • 4 bed • 1 bath • 2405 ft²
3 bedroom end of terrace house for sale in Agnew Street, Lytham, FY8 — £799,950 • 3 bed • 2 bath • 1541 ft²
5 bedroom detached house for sale in Inner Promenade, Lytham St. Annes, FY8 — £2,500,000 • 5 bed • 5 bath • 5177 ft²
5 bedroom detached house for sale in Winstanley House, Clifton Drive South, Lytham St. Annes, Lancashire, FY8 — £695,000 • 5 bed • 2 bath • 3139 ft²










































































