Large garden and period features ideal for families or investor renovators.
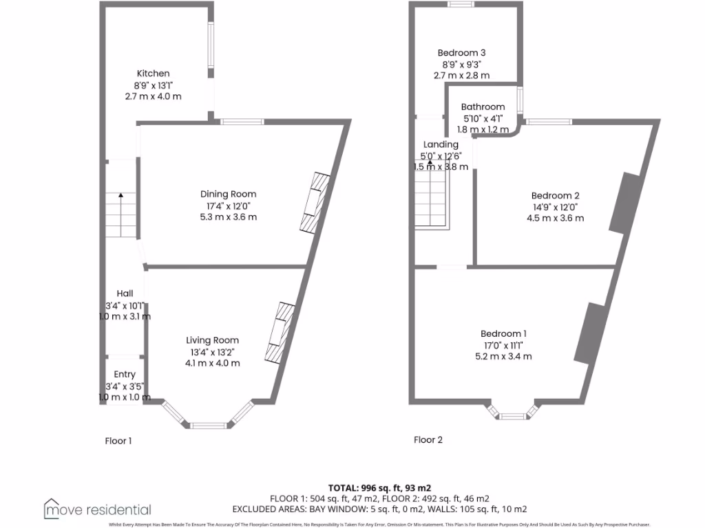
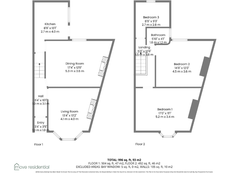
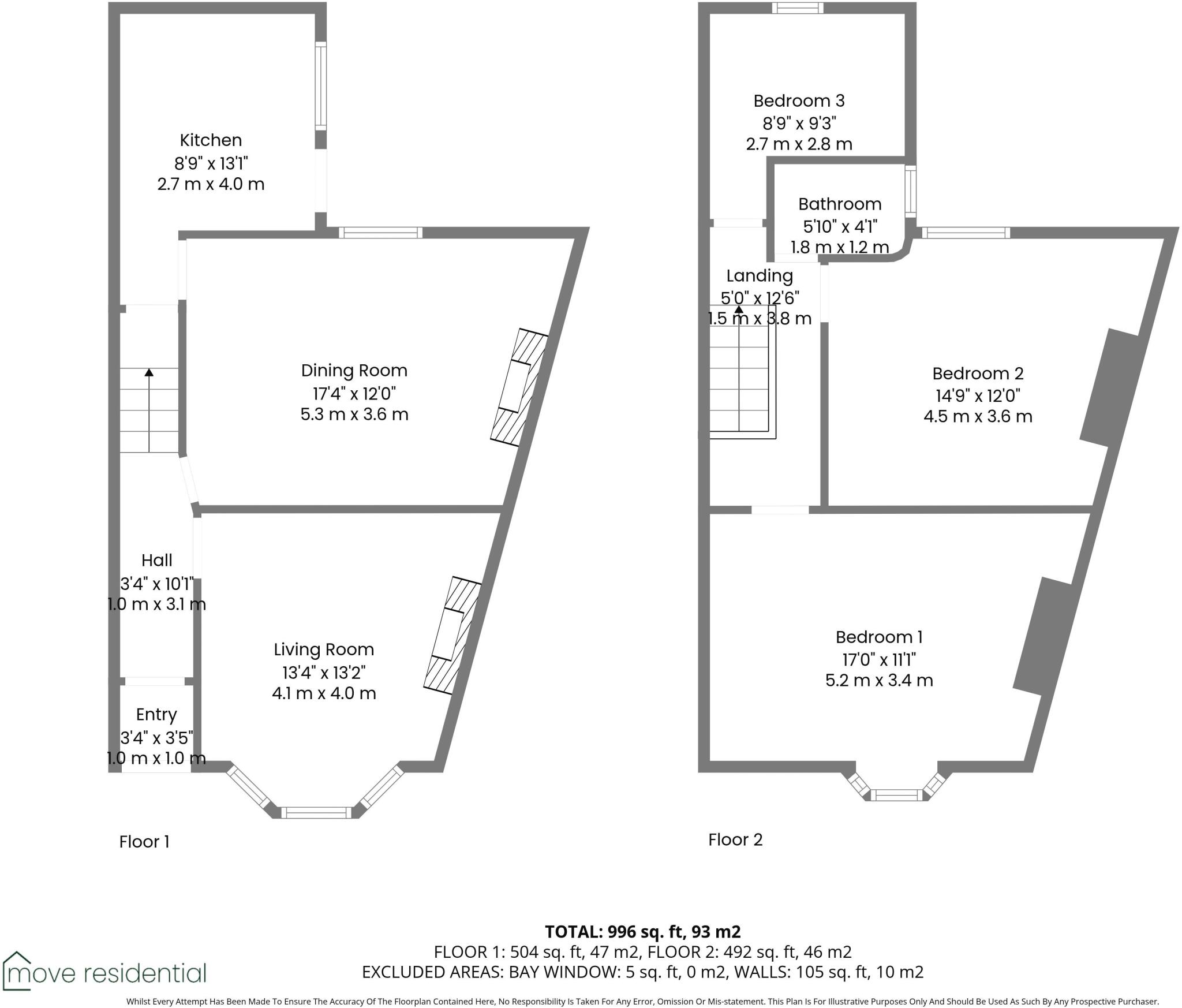
- End-of-terrace Victorian property with bay-fronted lounge and original fireplace
- Approximately 996 sq ft across two storeys; well-proportioned rooms
- Substantially sized enclosed rear garden with gated side access
- Freehold tenure and sold with no onward chain
- Requires full modernisation; dated finishes and worn floorcoverings throughout
- Single shower room only; may need extension or reconfiguration
- Area records above-average crime; consider security measures
- Council tax band cheap; fast broadband and excellent mobile signal
This three-bedroom end terrace on Barndale Road offers spacious, characterful rooms and genuine renovation potential in Mossley Hill. High ceilings, a bay-fronted lounge and original fireplace create strong period charm ready to be refreshed to modern standards.
The house is offered freehold and with no onward chain, simplifying purchase. A large, enclosed rear garden and good internal proportions create scope for family living or an investor refurbishment. The property totals approximately 996 sq ft and sits in a popular South Liverpool location near well-rated schools.
Buyers should budget for refurbishment: cosmetic and likely modernisation works are needed throughout, including dated finishes and worn floorcoverings. There is only one shower room, and the area records above-average crime — factor this into plans. Overall this is a solid opportunity for families or investors seeking a period home to update in a desirable postcode.
2 bedroom terraced house for sale in Barndale Road, Mossley Hill, Liverpool, L18 — £260,000 • 2 bed • 1 bath • 813 ft²
3 bedroom terraced house for sale in Nicander Road, Mossley Hill, Liverpool., L18 — £250,000 • 3 bed • 1 bath • 992 ft²
3 bedroom terraced house for sale in Grovedale Road, Mossley Hill, Liverpool, L18 — £250,000 • 3 bed • 1 bath • 992 ft²
3 bedroom terraced house for sale in Crawford Avenue, Mossley Hill, Liverpool, L18 — £300,000 • 3 bed • 1 bath • 951 ft²
3 bedroom terraced house for sale in Avonmore Avenue, Mossley Hill, Liverpool, L18 — £250,000 • 3 bed • 1 bath
3 bedroom terraced house for sale in Balcarres Avenue, Mossley Hill, Liverpool, L18 — £300,000 • 3 bed • 1 bath • 1303 ft²










































