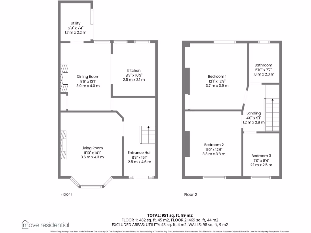
Immaculate period home with modern kitchen and low-maintenance outdoor space.
- Three bedrooms with bright, well-finished interiors
- Bay-front reception room with original period features
- Modern fitted kitchen plus separate utility room
- Contemporary four-piece family bathroom (single bathroom)
- Enclosed, low-maintenance rear decked yard (small)
- Freehold with low council tax and no flood risk
- Average internal space (951 sq ft); limited scope to extend
- Located in a mixed student/professional area; busier evenings possible
Set on a quiet Victorian street in desirable Mossley Hill, this three-bedroom mid-terrace blends period character with contemporary fittings. A bay-fronted reception room and separate dining room offer comfortable living and clear circulation for family life or sharers. The modern kitchen with adjoining utility is efficiently laid out and neatly finished.
Upstairs are two double bedrooms and a single, all well presented and bright, served by a contemporary four-piece bathroom. The property is presented to a high standard throughout, so immediate decoration or repair work is unlikely. Freehold tenure and low council tax reduce ongoing costs.
Externally the house benefits from a low-maintenance, enclosed rear decked yard — ideal for private outdoor dining but small in size. The location suits families and professionals with several ‘Good’ and outstanding local schools nearby, fast broadband and excellent mobile signal. Note the wider neighbourhood includes student populations, which may bring a livelier evening and weekend atmosphere.
Internally the overall footprint is average for a three-bedroom mid-terrace (approx. 951 sq ft), so space is well used but there is limited plot to expand without planning. No flood risk is recorded and local crime is very low, making this a practical, commuter-friendly home in a popular Liverpool suburb.
3 bedroom terraced house for sale in Russell Road, Mossley Hill, Liverpool., L18 — £300,000 • 3 bed • 1 bath • 1060 ft²
3 bedroom terraced house for sale in Nicander Road, Mossley Hill, Liverpool., L18 — £250,000 • 3 bed • 1 bath • 992 ft²
3 bedroom terraced house for sale in Olivedale Road, Mossley Hill, Liverpool, L18 — £260,000 • 3 bed • 1 bath • 1014 ft²
3 bedroom terraced house for sale in Grovedale Road, Mossley Hill, Liverpool, L18 — £250,000 • 3 bed • 1 bath • 992 ft²
2 bedroom terraced house for sale in Barndale Road, Mossley Hill, Liverpool, L18 — £260,000 • 2 bed • 1 bath • 813 ft²
4 bedroom terraced house for sale in Stalbridge Avenue, Mossley Hill, Liverpool, L18 — £400,000 • 4 bed • 1 bath • 1301 ft²






























































