Ready for renovation in a sought-after Thorpe St Andrew location.
- No onward chain, available for immediate purchase
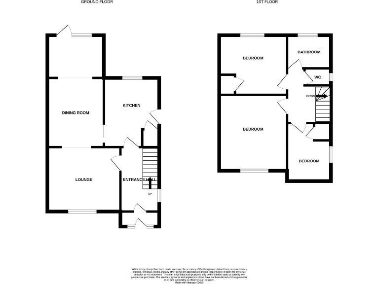
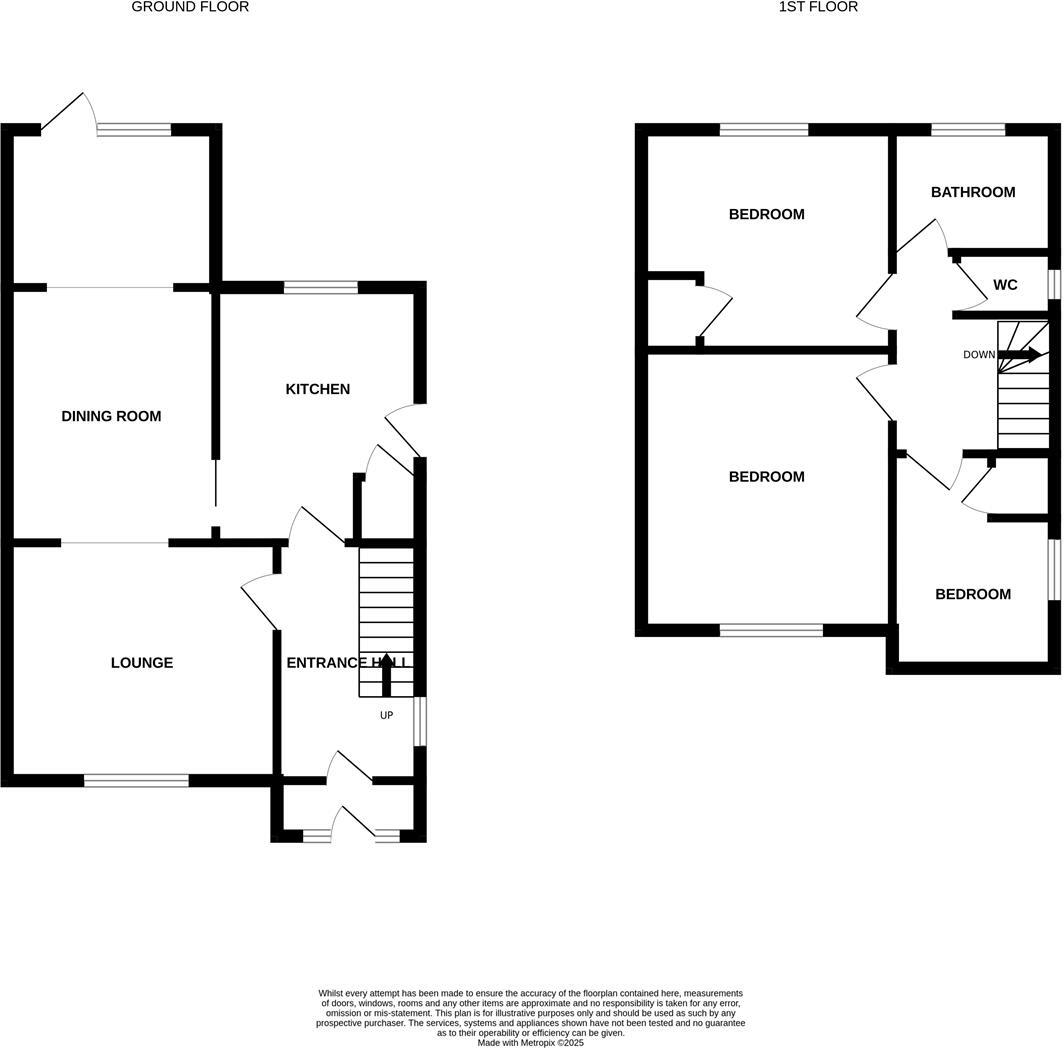
- Extended layout with separate dining room and lounge
- Three bedrooms; family bathroom plus separate WC
- Driveway, carport and garage provide ample parking
- Mature rear garden with patio and lawn, decent plot
- Dated interiors; modernisation required to maximise value
- Solid-brick walls assumed uninsulated; consider energy upgrades
- Double glazing installed pre-2002, may need replacement
This extended three-bedroom semi-detached home in Thorpe St Andrew is offered with no onward chain and clear potential for families seeking space close to local schools and amenities. The house provides a comfortable lounge, a separate dining room, and a well-proportioned kitchen on the ground floor, with three bedrooms, a family bathroom and separate WC upstairs. Off-road parking, a carport and garage add practical convenience for drivers.
The mature rear garden and decent plot offer scope for outdoor family living and gardening. Internally the property is functional but dated: original mid‑century fittings, older double glazing (pre-2002) and decorative finishes will benefit from modernisation to unlock value. The building is solid-brick (likely with limited wall insulation) so energy upgrades should be considered.
Practical positives include mains gas boiler and radiators, fast full-fibre broadband availability, low local crime and easy access to Norwich, Broadland Business Park and the Norfolk Broads. Council Tax Band C and freehold tenure help keep ongoing costs predictable. The property suits families wanting a home to personalise or buyers seeking a refurbishment project in a sought-after suburb.
3 bedroom semi-detached house for sale in Furze Road, Thorpe St Andrew, NR7 — £290,000 • 3 bed • 1 bath • 779 ft²
3 bedroom semi-detached house for sale in Dalbier Close, Dussindale, Norwich, Norfolk, NR7 — £270,000 • 3 bed • 2 bath • 662 ft²
3 bedroom semi-detached house for sale in Ireton Close, Norwich, NR7 — £270,000 • 3 bed • 1 bath • 765 ft²
3 bedroom detached bungalow for sale in Pilling Road, Thorpe St Andrew, NR7 — £325,000 • 3 bed • 1 bath • 858 ft²
3 bedroom semi-detached house for sale in Primrose Crescent, Thorpe St Andrew, NR7 — £280,000 • 3 bed • 1 bath • 768 ft²
3 bedroom semi-detached house for sale in Charles Avenue, Norwich, NR7 — £300,000 • 3 bed • 1 bath • 926 ft²


































































