HA5 4BS - 4 bed sequoia park family home in Sequoia Park, HA5 4BS

View on Property Piper

4 bedroom detached house for sale in Sequoia Park, Pinner, HA5

Summary - 1 SEQUOIA PARK PINNER HA5 4BS

4 bed 2 bath Detached

Comfortable detached house with large garden and outbuilding, close to top schools.
Four bedrooms with attic-style principal bedroom and fitted wardrobes
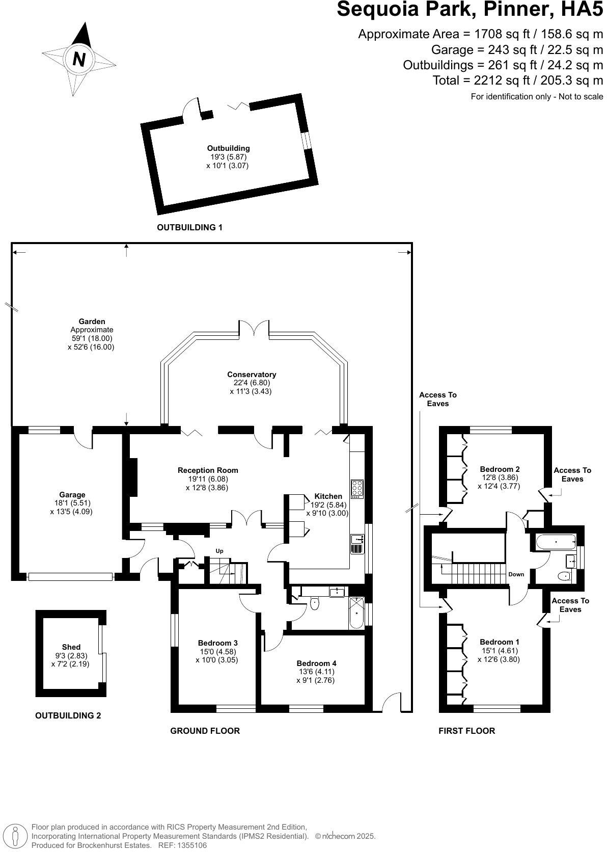
Set on a quiet cul-de-sac in sought-after Hatch End, this four-bedroom detached home offers family-friendly space and a large private garden with a useful outbuilding/office. The house blends 1950s–60s solid construction with contemporary updates: a bright open-plan kitchen, conservatory, two bathrooms and generous living space across two storeys (approximately 1,708 sq ft). Off-street parking and a double garage add practical convenience for a busy household.

The property is presented in good order and chain free, with scope to extend further subject to planning — a clear opportunity to add value or tailor space for a growing family. Situated close to excellent primary and secondary schools and within easy reach of Hatch End station, the location supports a comfortable, commuter-friendly lifestyle in a very affluent neighbourhood.

Buyers should note a Council Tax Band F and a current EPC rating of 66 (D), with potential to improve to B following energy upgrades. The home dates from the 1950–66 period, so some original elements remain and any major alterations will require the usual surveys and consents. Overall, this is a practical, well-located family home with garden, parking and extension potential.

Property Details

Brochure Descriptions

Image Descriptions

Floorplan Description

Rooms

Textual Property Features

Target Audience

AI Tags

Detected Visual Features

EPC Details

Nearby Schools

Nearest Bars And Restaurants

,,,,}

Nearest General Shops

,,}

Nearest Grocery shops

,,}

Nearest Supermarkets

,,}

Nearest Religious buildings

,,}

Nearest Medical buildings

,,,}

Nearest Airports

}

Nearest Leisure Facilities

,,,,}

Nearest Tourist attractions

,,}

Nearest Train stations

,,,,}

Nearest Bus stations and stops

,,,,}

Nearest Hotels

,,}

Tags

Local Market Stats

Similar Properties

Meta

High Res Images

Compatible Images

Low res Images

Thumbnails

Raw Images

High Res Floorplan Images

Compatible Floorplan Images

Low res Floorplan Images

FloorplanImages Thumbnail

Raw Floorplan Images