Affordable three-bed with garden and conservatory close to schools.
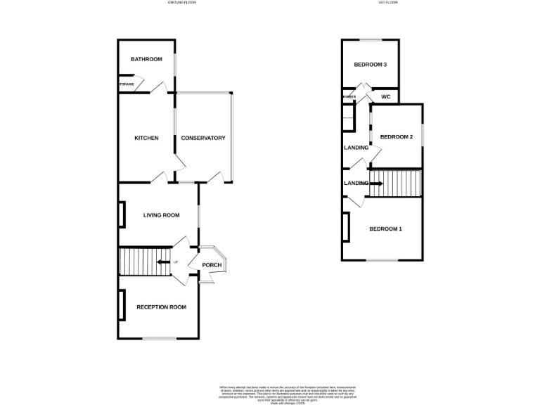
Three bedrooms and two bathrooms suitable for family living
Year-round conservatory adds usable space and garden access
Well-maintained rear garden and off-street parking included
Cosy fireplace and period features; living room needs modernisation
Freehold tenure, low flood risk, and very cheap council tax
Fast broadband and excellent mobile signal for remote working
Built circa 1983–1990; double glazing present but install date unknown
Wider area classed as deprived — consider local socio-economic context
This three-bedroom semi offers a practical, affordable entry into homeownership in Holbeach. With two reception rooms, a year-round conservatory and two bathrooms, the layout suits families or first-time buyers seeking straightforward living space and immediate usability.
The property benefits from a well-maintained rear garden, off-street parking and gas central heating via boiler and radiators. Broadband speeds are fast and mobile signal is excellent, supporting remote working and everyday connectivity. Flood risk is low and the tenure is freehold; council tax is very cheap (Band A), helping keep running costs down.
There is scope to add value: the living room displays period features but needs modernisation (striped wallpaper and dated carpet noted). Double glazing is present though install date is unknown. The house dates from the 1983–1990 period and provides about 937 sq ft of accommodation — average-sized, practical rooms rather than grand proportions.
Location is a strength: close to several “Good” Ofsted-rated primary schools and a secondary academy, plus excellent public transport and local amenities. Be candid about the local context — the wider area is classified as deprived — but the neighbourhood shows low crime and a small-town, community feel. For buyers seeking an affordable starter home with scope to update, this is a solid, well-connected option.
2 bedroom semi-detached house for sale in Fleet Street, Holbeach, Spalding, PE12 — £170,000 • 2 bed • 1 bath • 650 ft²
2 bedroom semi-detached house for sale in Fleet Street, Holbeach, Spalding, PE12 — £175,000 • 2 bed • 1 bath • 797 ft²
3 bedroom semi-detached house for sale in Holbeach, PE12 — £170,000 • 3 bed • 1 bath • 861 ft²
3 bedroom semi-detached house for sale in Albert Street, Holbeach, Spalding, PE12 — £170,000 • 3 bed • 1 bath • 1464 ft²
3 bedroom semi-detached house for sale in The Hollies, Holbeach, Spalding, PE12 — £165,000 • 3 bed • 1 bath • 966 ft²
3 bedroom semi-detached house for sale in Spalding Road, Holbeach, Spalding, Lincolnshire, PE12 — £215,000 • 3 bed • 1 bath • 1163 ft²


























































































