Private unoverlooked garden and conservatory with scope to personalise.
Two double bedrooms with a first‑floor shower room
Garden room/conservatory with doors onto private rear garden
Allocated off‑street parking; single parking space only
Large plot relative to house; potential to extend (subject to consents)
Double glazed uPVC windows; freehold tenure
Internal living area is small (circa 599 sq ft)
Slow broadband speeds; may need connectivity upgrades
Local area records higher crime and relative deprivation
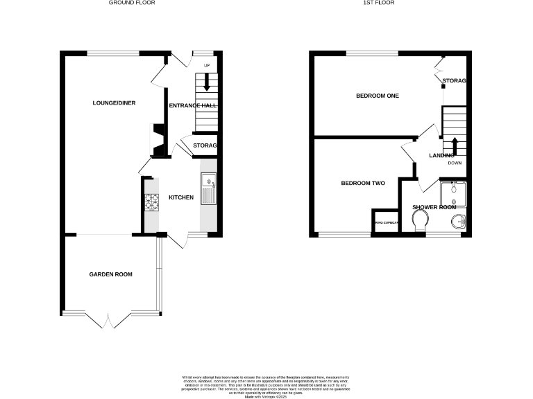
Set at the end of a cul‑de‑sac on Willow Walk, this freehold two‑bedroom semi offers practical living for first‑time buyers or small families. The ground floor presents a through lounge/diner that opens into a garden room/conservatory, giving direct access to a private, unoverlooked rear garden and patio. The fitted galley kitchen also has a rear door and useful flow for everyday living.
Both bedrooms are doubles and share a shower room on the first floor, making this a straightforward, low‑maintenance home. Outside there is one allocated off‑street parking space and a powered brick storage shed. The plot is noticeably generous compared with the house footprint, so there’s scope to improve or extend subject to consents.
Be aware of some material local factors: broadband speeds are slow, the wider area records higher crime and relative deprivation, and the overall internal size is modest at about 599 sq ft. The property is presented in neutral, modern finishes but buyers seeking spacious rooms or high‑speed connectivity should factor in potential upgrades.
Practical positives include double‑glazed uPVC windows, good mobile signal, proximity to primary schools rated Good, local shops and bus links. For purchasers wanting a compact, well‑located starter home with garden privacy and potential to personalise, this house offers a sensible, affordable option at the listed price.
3 bedroom semi-detached house for sale in Anchor Road, Tiptree , CO5 — £385,000 • 3 bed • 2 bath • 828 ft²
3 bedroom semi-detached house for sale in Cedar Avenue, Tiptree, CO5 — £300,000 • 3 bed • 1 bath • 802 ft²
2 bedroom semi-detached house for sale in Sage Walk, Tiptree, CO5 — £270,000 • 2 bed • 1 bath
3 bedroom semi-detached house for sale in Carolina Way, Tiptree, CO5 — £365,000 • 3 bed • 1 bath • 1226 ft²
2 bedroom semi-detached house for sale in Sage Walk, Tiptree, CO5 — £270,000 • 2 bed • 1 bath • 616 ft²
2 bedroom semi-detached house for sale in Heycroft Way, Tiptree, CO5 — £300,000 • 2 bed • 1 bath • 637 ft²






































































