Substantial outdoor space and driveway — ideal for a renovation-minded family.
Chain free freehold three-bedroom semi-detached house
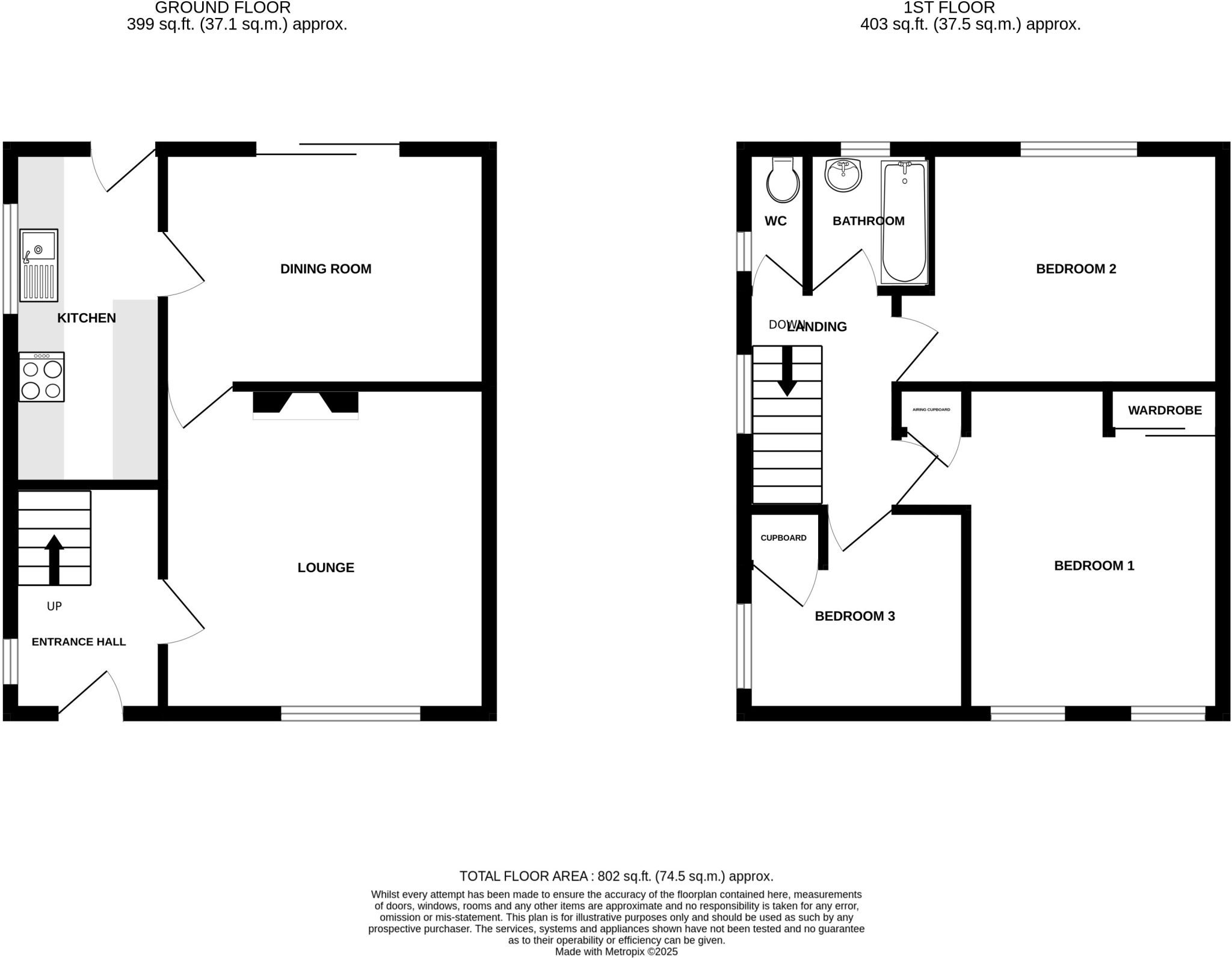
This three-bedroom semi-detached house on Cedar Avenue is offered chain free and sits on a notably large plot with a generous rear garden and driveway. The home has good bones — double glazing and a traditional layout with lounge, dining room and kitchen on the ground floor, and three bedrooms upstairs — making it suitable for a growing family or buyers seeking a renovation project with immediate outdoor space.
The property requires modernisation throughout: the accommodation is heated by electric storage heaters, the kitchen and bathroom are dated, and some updating will be needed to bring the house up to current standards. Broadband speeds are slow in the area, and there is only one bathroom plus a separate WC which may be restrictive for larger households.
Location strengths include nearby primary schools rated Good, local shops and bus links, and excellent mobile signal. However, the wider area shows signs of deprivation and recorded higher local crime rates; buyers should factor neighbourhood considerations into their plans and view in person to assess suitability.
For buyers prepared to invest in improvements, the large garden and off-street parking deliver clear value and scope to personalise the property. Sold freehold and chain free, this home presents a straightforward purchase for those seeking a project with substantial outdoor space close to village amenities.
3 bedroom semi-detached house for sale in Chestnut Way, TIPTREE, CO5 — £270,000 • 3 bed • 1 bath • 808 ft²
3 bedroom semi-detached house for sale in Church Road, Tiptree, CO5 — £340,000 • 3 bed • 1 bath • 988 ft²
2 bedroom semi-detached house for sale in Maldon Road, Tiptree, Colchester, CO5 — £280,000 • 2 bed • 1 bath • 792 ft²
3 bedroom semi-detached house for sale in Birchwood Close, Tiptree, CO5 — £375,000 • 3 bed • 1 bath • 999 ft²
2 bedroom semi-detached bungalow for sale in Green Lane, Tiptree, CO5 — £320,000 • 2 bed • 1 bath • 704 ft²
3 bedroom terraced house for sale in Chestnut Way, Tiptree, CO5 — £270,000 • 3 bed • 1 bath • 920 ft²


















































