**Standout Features:**
- Spacious 4-bedroom detached house
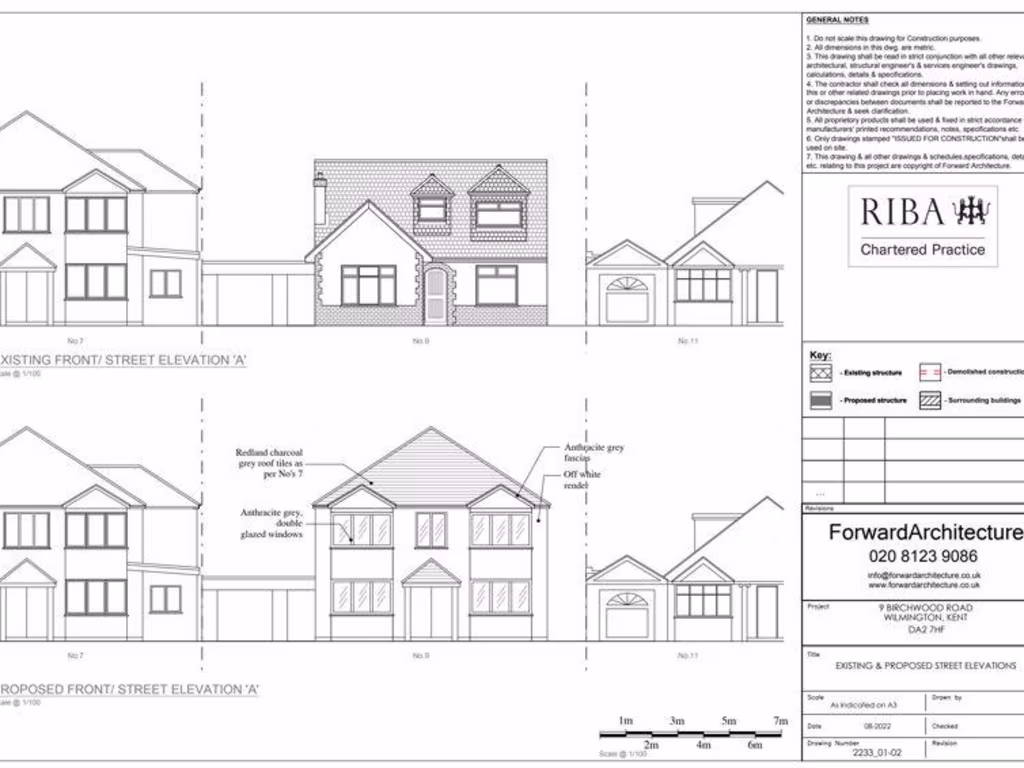
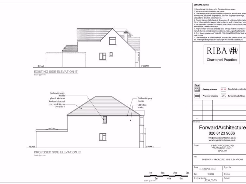
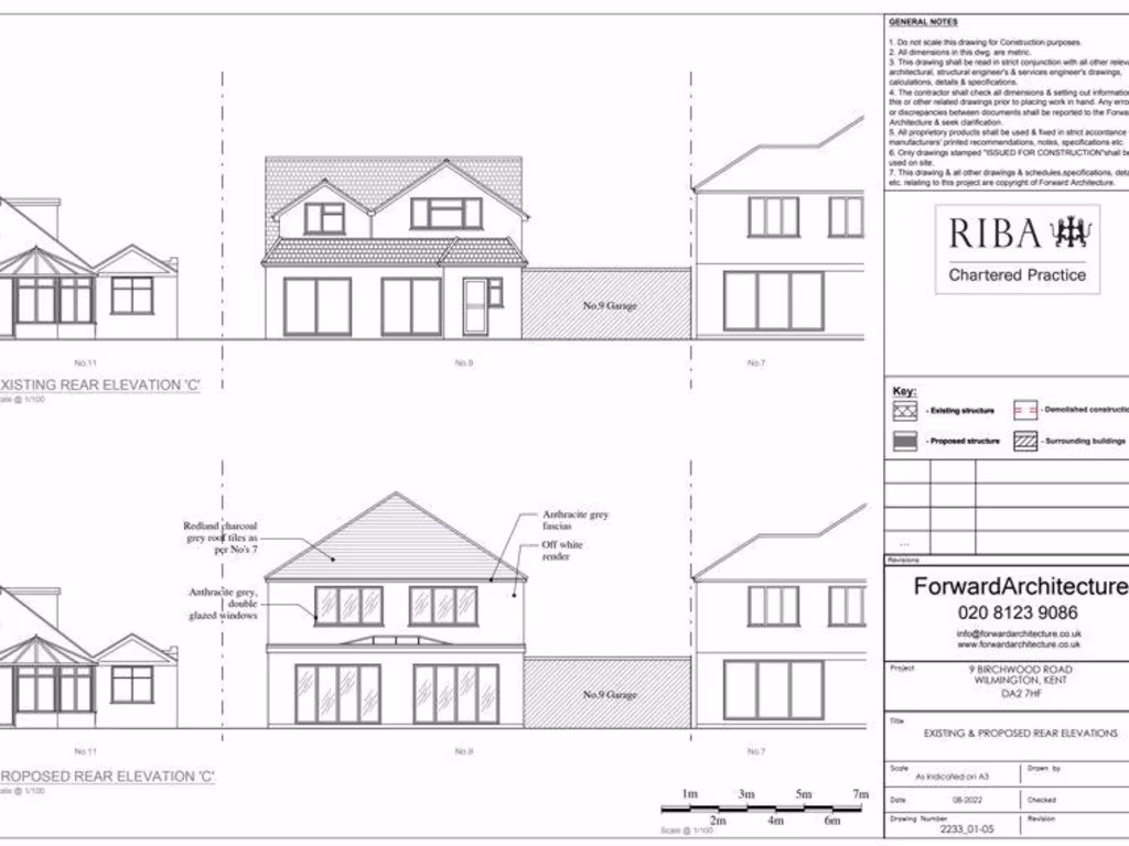
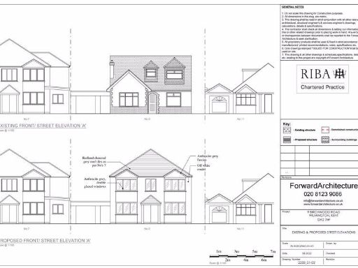
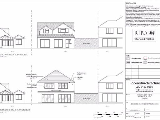
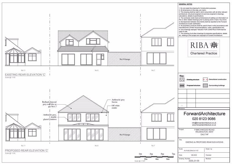
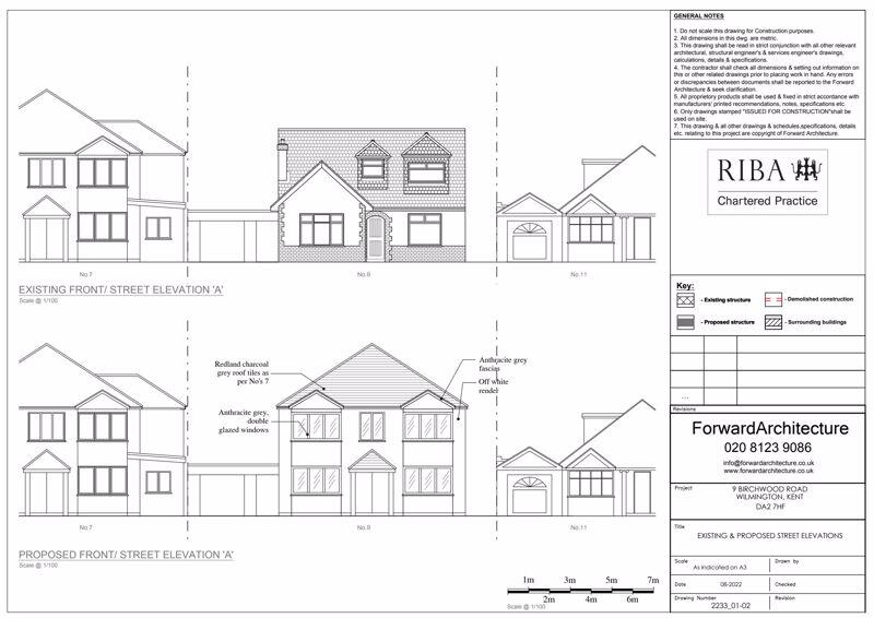
- Huge garden with existing planning permission for extension
- Driveway accommodating up to 10 vehicles
- Large double garage with side access
- Three generous reception rooms
- Excellent catchment area for schools, including top-rated secondary options
- Very low crime area and affluent community
**Potential Concerns:**
- Property may require modernization
- Limited insulation in the existing structure
**Summary:**
Discover a remarkable opportunity to own this spacious 4-bedroom detached house on Birchwood Road, Dartford, offering a unique blend of potential and family-friendly living. Positioned on one of the largest plots in the prestigious area, this home features an expansive garden and existing planning permission for an extension, allowing you to customize and develop according to your vision (subject to planning permission).
With three generously sized reception rooms, a fitted kitchen, and ample storage space in the bedrooms, this residence provides both comfort and flexibility for family life. The property benefits from a large double garage and parking for up to 10 vehicles, making it an ideal option for families or those seeking an investment opportunity with significant rental potential. Located in a low-crime, affluent neighborhood, your family will thrive in the excellent educational catchment area known for its high-performing schools.
While the house may require some modern updates and lacks insulation, the large plot presents a fantastic long-term investment with room for growth and personalization. Don't miss out on this exclusive property—schedule your viewing today and envision the possibilities!
4 bedroom house for sale in Birchwood Road, Dartford, DA2 — £1,150,000 • 4 bed • 2 bath • 2960 ft²
3 bedroom semi-detached house for sale in Birchwood Road, Dartford, DA2 — £550,000 • 3 bed • 1 bath • 2380 ft²
3 bedroom detached house for sale in Birchwood Road, Wilmington, DA2 — £1,500,000 • 3 bed • 2 bath
3 bedroom detached house for sale in Birchwood Road, Wilmington, DA2 — £850,000 • 3 bed • 1 bath • 1273 ft²
4 bedroom detached house for sale in Barn End Drive, Wilmington, DA2 — £975,000 • 4 bed • 2 bath • 2299 ft²
3 bedroom detached bungalow for sale in Birchwood Road, Dartford, DA2 — £895,000 • 3 bed • 2 bath • 1802 ft²














































































































































