Modern four-bed detached house with open-plan kitchen, garden and garage on a large plot..
Detached three-storey family home with four bedrooms
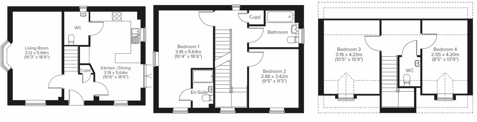
This three-storey detached home on Desborough Road offers a practical, modern layout for growing families. The open-plan kitchen/dining room with integrated appliances and a separate spacious living room give everyday life room to breathe. Solar panels help reduce energy bills and the large plot provides a private rear garden and parking with a single garage and driveway.
The master bedroom benefits from built-in wardrobes and an en suite; two further bedrooms are on the first floor and two on the top floor, offering flexibility for family bedrooms or a home office. Nearby primary schools are rated Good, making the location attractive for younger children.
Buyers should note the property’s overall internal size is modest (approximately 939 sq ft) and some bedrooms are on the second floor, which may be less convenient for very young children or mobility needs. Council tax is described as expensive. Room dimensions and services are indicative only; prospective purchasers are advised to arrange their own survey and service checks before committing.
4 bedroom detached house for sale in Desborough Road,
Rothwell,
NN14 6JQ, NN14 — £379,950 • 4 bed • 1 bath • 384 ft²
4 bedroom detached house for sale in Desborough Road, Rothwell, Kettering, NN14 — £395,000 • 4 bed • 2 bath • 936 ft²
4 bedroom detached house for sale in Desborough Road, Rothwell, Kettering, NN14 — £430,000 • 4 bed • 2 bath • 1013 ft²
4 bedroom detached house for sale in Desborough Road, Rothwell, Kettering, NN14 — £475,000 • 4 bed • 2 bath • 1137 ft²
4 bedroom detached house for sale in 35 Kipling Way,
Northampton,
NN6 0RR, NN6 — £419,950 • 4 bed • 1 bath • 365 ft²
4 bedroom detached house for sale in Desborough Road, Rothwell, Kettering, NN14 — £470,000 • 4 bed • 2 bath • 1621 ft²






















































