Four-bedroom family house with garden, garage and EV charging near primary schools.
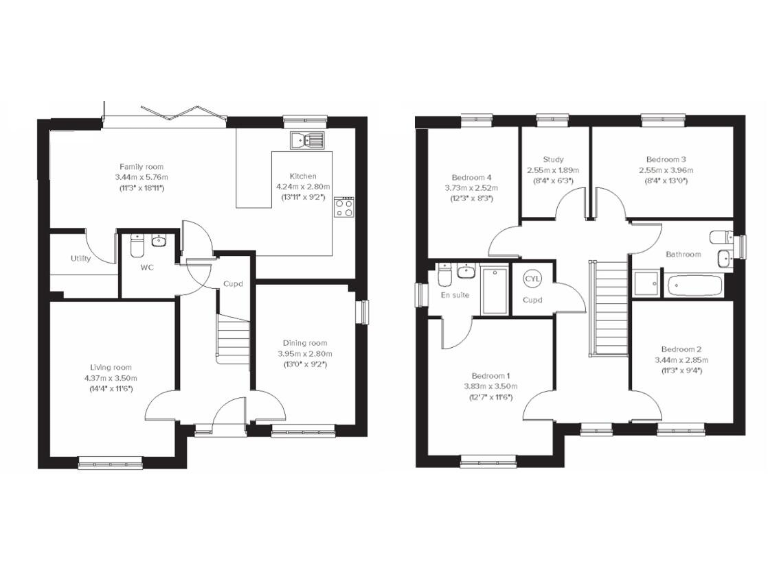
Four bedrooms including master with en suite
Separate lounge and dining room for family living
Kitchen/family room plus utility and downstairs cloakroom
First-floor study suitable for home working
Single garage, driveway parking and EV charging point
Large plot with landscaped garden and outdoor potential
Internal size modest at c.1,137 sq ft; council tax above average
Services untested and measurements approximate — survey recommended
This four-bedroom detached house on Desborough Road is arranged over two floors with practical, family-focused living space. The lounge and separate dining room sit alongside an open kitchen/family room and utility, giving flexibility for daily life and entertaining. The master bedroom benefits from an en suite and a modest study on the first floor provides a useful work-from-home area.
Outside there is a single garage, driveway parking and an EV charging point, set within a large plot and landscaped garden. Broadband speeds are fast and the property sits in a quiet town-fringe location with local doctors, sports facilities and several good-rated primary schools within easy reach.
The house is freehold and traditionally laid out, offering straightforward scope for modest updating or redecoration rather than major structural works. Prospective buyers should note the overall internal size is relatively small (approximately 1,137 sq ft), council tax is above average, and a formal survey is recommended since services and measurements have not been independently verified.
This home will suit families seeking practical space close to amenities and schools, or buyers looking for a well-located property with easy commuting links and charging provision for an electric vehicle.
4 bedroom detached house for sale in Desborough Road, Rothwell, Kettering, NN14 — £430,000 • 4 bed • 2 bath • 1013 ft²
4 bedroom detached house for sale in Desborough Road, Rothwell, Kettering, NN14 — £425,000 • 4 bed • 2 bath • 1013 ft²
4 bedroom detached house for sale in Desborough Road,
Rothwell,
NN146JQ, NN14 — £475,000 • 4 bed • 1 bath • 1136 ft²
3 bedroom semi-detached house for sale in Desborough Road, Rothwell, Kettering, NN14 — £284,950 • 3 bed • 2 bath • 655 ft²
4 bedroom detached house for sale in Desborough Road, Rothwell, Kettering, NN14 — £470,000 • 4 bed • 2 bath • 1621 ft²
4 bedroom detached house for sale in Desborough Road, Rothwell, Kettering, NN14 — £379,950 • 4 bed • 2 bath • 939 ft²






































