**Standout Features:**
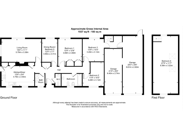
- Versatile four/five-bedroom layout perfect for multi-generational or flexible living.
- Tastefully extended with a second-story addition.
- Spacious double garage with workshop space, plus parking for 6-7 vehicles.
- Stunning front and rear gardens ideal for outdoor relaxation.
- Prime location within easy reach of Needham Market, Stowmarket, Hadleigh & Ipswich.
- Updated kitchen/breakfast room with pantry and built-in storage in the master bedroom.
- Energy-efficient with UPVC double glazing and gas central heating.
- Quiet village setting in an affluent community with low crime rates.
This spacious and charming four/five bedroom detached bungalow in Great Bricett offers an ideal setting for families or anyone seeking room to grow. The home has been tastefully extended to include a second story, providing an excellent opportunity for separate living spaces or multi-generational living arrangements. The property features a welcoming entrance hall, a large kitchen/breakfast room perfect for gatherings, and a versatile dining room that can easily serve as a fifth bedroom if needed.
Enjoy the serenity of beautifully landscaped gardens, along with impressive parking space for up to seven vehicles. The expansive rear garden is an entertainer's oasis, perfect for hosting friends or simply unwinding amidst nature. Located in a quiet village with easy access to vibrant local towns and essential amenities, this home is not only about comfort and style but also about the quality of life. With a low crime rate and excellent educational facilities nearby, it's a place where families can truly thrive.
Don’t miss out on this unique opportunity; properties like this are sought after and won’t last long!
4 bedroom detached house for sale in Meadow Valley, Great Bricett, Ipswich, IP7 — £475,000 • 4 bed • 2 bath • 1356 ft²
4 bedroom detached house for sale in Great Bricett, Ipswich, IP7 — £700,000 • 4 bed • 3 bath • 3071 ft²
4 bedroom detached house for sale in Great Bricett, Ipswich, Suffolk, IP7 — £475,000 • 4 bed • 2 bath • 2051 ft²
5 bedroom detached bungalow for sale in Willisham, Suffolk, IP8 — £500,000 • 5 bed • 2 bath • 1851 ft²
3 bedroom detached bungalow for sale in ., Middleton, Sudbury, CO10 — £600,000 • 3 bed • 2 bath • 1498 ft²
4 bedroom detached bungalow for sale in Slough Road, Brantham, CO11 — £550,000 • 4 bed • 2 bath • 1615 ft²


















































































































