Chain-free, low-maintenance family home with garage and generous parking.
Three double bedrooms, master with en‑suite and fitted storage
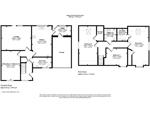
This well-presented detached house in a quiet Begelly close suits a family seeking sensible, low‑maintenance living near the coast. The ground floor offers flexible space with a living room, separate dining room (usable as a fourth bedroom) and a kitchen/breakfast room, while the first floor provides three double bedrooms including a master with fitted storage and en-suite.
Practical features include an integral garage accessed via the utility, a substantial paved driveway for off‑road parking, and a rear garden laid to patio and astro turf for easy upkeep. Built in the early 2000s and double‑glazed throughout, the home has gas central heating and an EPC rating of C.
Be upfront about limitations: broadband speeds are reported slow, council tax sits above average, and the immediate area is classed as very deprived. The property is freehold and offered chain‑free, which simplifies purchase for buyers wanting a straightforward move.
For families who value privacy, parking and low‑maintenance outdoor space with easy access to Kilgetty and nearby seaside villages, this house delivers usable size and tidy presentation with scope to personalise internally.
3 bedroom detached house for sale in Church Close, Begelly, Kilgetty, Pembrokeshire, SA68 — £350,000 • 3 bed • 3 bath
3 bedroom detached house for sale in Begelly, Kilgetty, Pembrokeshire, SA68 — £325,000 • 3 bed • 2 bath • 1152 ft²
3 bedroom detached house for sale in Begelly, Kilgetty, Pembrokeshire, SA68 — £325,000 • 3 bed • 2 bath • 1217 ft²
3 bedroom detached house for sale in Pen Y Bryn, Begelly, Kilgetty, SA68 — £300,000 • 3 bed • 2 bath • 1120 ft²
3 bedroom detached bungalow for sale in Parsonage Court, Begelly, Kilgetty, SA68 — £290,000 • 3 bed • 2 bath • 911 ft²
3 bedroom detached house for sale in Buttermilk Close, Pembroke, SA71 — £310,000 • 3 bed • 2 bath • 1413 ft²






















































































