Spacious three-bed family home with garage, secluded garden and close to Chelsfield Station.
Three-bedroom detached house, recently remodelled
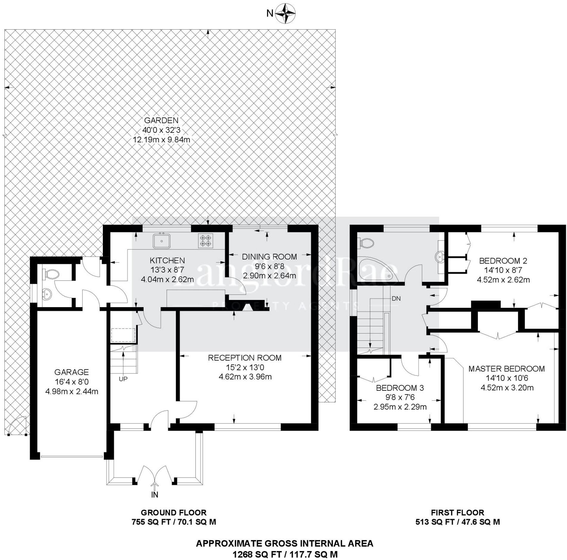
A thoughtfully remodelled three-bedroom detached house set on a peaceful Oak Road close to Chelsfield Station and popular local schools. The ground floor offers a 15' front lounge, dining area with patio doors onto a secluded 40' rear garden, and a fitted kitchen with integrated oven and gas hob. Practical additions include an internal connection to the garage, ground-floor cloakroom with vanity and underfloor heating, and useful understairs storage.
Upstairs are three bedrooms with fitted wardrobes, a family bathroom with corner bath and shower attachment, plus a partly boarded loft with light for storage. The property benefits from gas central heating, air conditioning and double glazing, and has off-street parking with an electric remote roller garage door. Recently remodelled interiors and bespoke blinds create a modern, move-in-ready feel for a family.
Notable considerations: the EPC is rated D, the cavity walls are assumed uninsulated and double glazing was installed before 2002, which may affect running costs and future retrofit needs. Council tax is described as expensive. Buyers should factor potential energy-efficiency upgrades when budgeting.
This home will suit families seeking strong local schooling, quick rail links and a generous garden for children and entertaining. The location gives easy access to local shops, recreation grounds and the M25 for wider travel, making it practical for daily commuting and weekend escapes.
4 bedroom detached house for sale in Chelsfield Hill, Orpington, BR6 — £1,050,000 • 4 bed • 2 bath • 1831 ft²
4 bedroom detached house for sale in Warnford Road, Orpington, BR6 — £625,000 • 4 bed • 1 bath • 1291 ft²
4 bedroom end of terrace house for sale in Highfield Avenue, Orpington, BR6 — £535,000 • 4 bed • 2 bath • 1400 ft²
3 bedroom semi-detached house for sale in Woodside, Orpington, BR6 — £600,000 • 3 bed • 1 bath • 899 ft²
4 bedroom chalet for sale in Glentrammon Avenue, Orpington, BR6 — £575,000 • 4 bed • 2 bath • 1061 ft²
3 bedroom semi-detached house for sale in The Highway, Chelsfield, BR6 — £600,000 • 3 bed • 2 bath • 1577 ft²






















































