Large plot and adaptable layout with scope to modernise and improve.
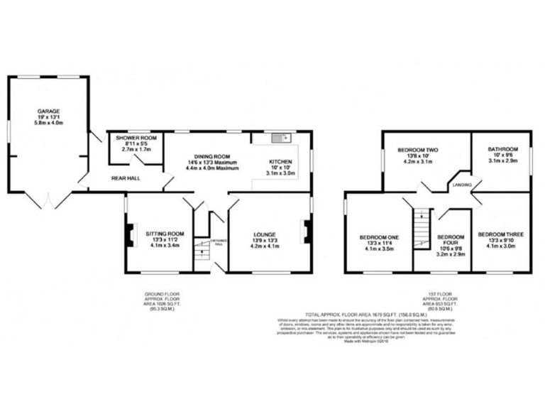
Four bedrooms and two bathrooms across nearly 1,700 sq ft
Set on a generous 0.19-acre plot in the popular village of Alpraham, this handsome period detached house offers almost 1,700 sq ft of flexible living. The property has four bedrooms, three reception rooms, a country-style kitchen, large lawn, rear courtyard and useful garage with extensive off-road parking and turning space. Its adaptable layout suits families seeking space or buyers wanting to reconfigure and modernise.
The house retains period character and presence but does require updating; the asking price reflects renovation scope and presents clear potential to add value. Heating is by oil-fired boiler and radiators, and the property uses a shared septic tank (legal arrangements in place) — purchasers should note there is no proven compliance with 2020 septic rules. Council tax is described as expensive.
This location appeals to those wanting village life with easy access to Tarporley and Nantwich amenities, reputable schools and good road and rail links. For buyers seeking a substantial period home to personalise, generous outside space and practical parking, this is a compelling, competitively priced opportunity to view.
4 bedroom detached house for sale in Beautiful landscaped plot of 0.26 acre and contemporary home at The Hamptons, CW6 — £650,000 • 4 bed • 2 bath • 1646 ft²
5 bedroom semi-detached house for sale in Long Lane, Alpraham, Tarporley, CW6 — £670,000 • 5 bed • 3 bath • 2349 ft²
3 bedroom semi-detached house for sale in Impeccable house with views in Hilbre Bank, CW6 — £359,950 • 3 bed • 1 bath • 1071 ft²
3 bedroom detached bungalow for sale in Green Avenue, Alpraham, Tarporley, CW6 — £375,000 • 3 bed • 1 bath • 1736 ft²
4 bedroom detached house for sale in Rue De Bohars, Tarporley, CW6 — £560,000 • 4 bed • 2 bath • 1410 ft²
3 bedroom detached house for sale in Modern cottage with gated entrance and private driveway in Alpraham, CW6 — £385,000 • 3 bed • 2 bath • 747 ft²






















































































