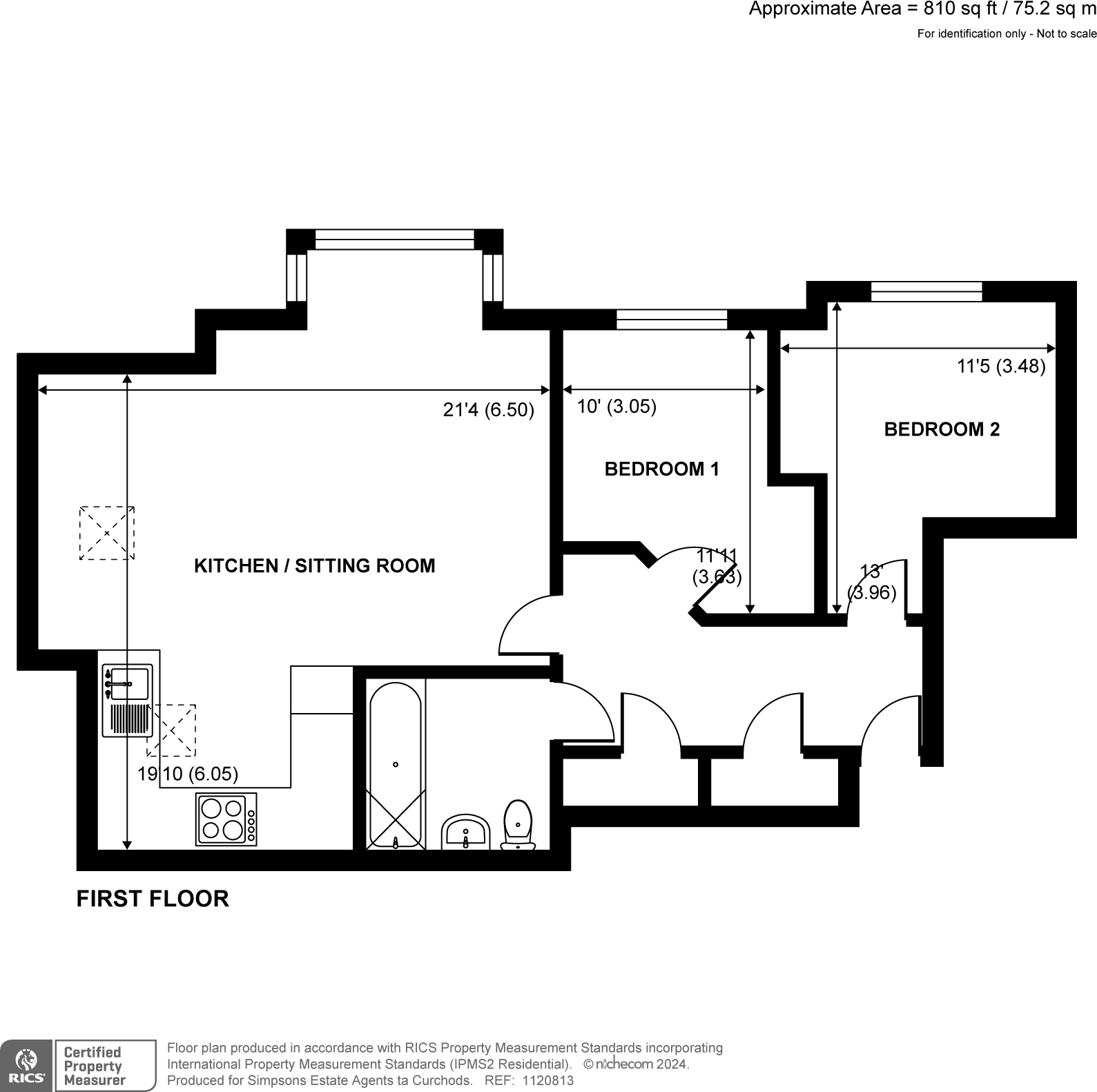
First-floor two-bedroom with parking, underfloor heating and Bosch kitchen.
- 810 sq ft first-floor, two-bedroom apartment
- Underfloor heating to living/kitchen; mains gas boiler elsewhere
- Amtico flooring and Bosch kitchen appliances throughout
- Allocated off-street parking; EV charging provision available
- Communal solar panels serve communal electricity supply only
- 125-year lease from January 2024; 10-year new-build warranty
- Service charge approx £1,200 per annum
- Internal photos virtually staged; sold as seen
This first-floor two-bedroom apartment in Oak House offers 810 sq ft of fresh, energy-conscious living space completed in 2024. Finished to a high standard with Amtico flooring to the open-plan living/kitchen, Bosch appliances and oak-style doors, the property suits downsizers seeking low-maintenance, modern accommodation close to Weybridge amenities and rail links.
Practical features include underfloor heating in the main living area, an allocated parking space, EV charging availability and a communal solar installation that offsets communal electricity. The building benefits from a 10-year new-build warranty and a long 125-year lease starting January 2024.
Buyers should note a modest annual service charge of approximately £1,200 and that the communal solar panels feed the communal supply (not necessarily direct private supply). Heating is via mains gas boiler and radiators in addition to underfloor heating to the living/kitchen area. Internal photos are virtually staged and for illustrative purposes only.
Positioned opposite Weybridge Cricket Club and within walking distance of shops, restaurants and the station, this apartment combines convenience with contemporary finishes — ideal for those looking to downsize without compromising on quality or connectivity.
2 bedroom flat for sale in Queens Road, Weybridge, KT13 — £450,000 • 2 bed • 1 bath • 780 ft²
2 bedroom apartment for sale in Queens Road, Weybridge, KT13 — £625,000 • 2 bed • 1 bath • 943 ft²
1 bedroom flat for sale in Queens Road, Weybridge, KT13 — £375,000 • 1 bed • 1 bath • 550 ft²
1 bedroom apartment for sale in Oak House, Queens Road, Weybridge, KT13 — £375,000 • 1 bed • 1 bath • 550 ft²
1 bedroom flat for sale in Queens Road, Weybridge, KT13 — £450,000 • 1 bed • 1 bath • 577 ft²
2 bedroom apartment for sale in Brooklands Road, Weybridge, KT13 — £635,000 • 2 bed • 2 bath • 963 ft²


































































































