**Standout Features:**
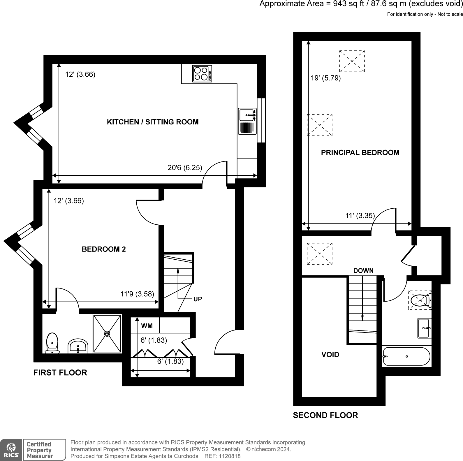
- Brand-new duplex apartment with 943 sq ft of space
- Contemporary design with high-quality finishes
- Bosch integrated kitchen appliances and underfloor heating
- Allocated parking and Electric Vehicle Charging available
- Eco-friendly with communal solar panels
- 10-year New Build Warranty
- Located near vibrant amenities and Weybridge Cricket Club
- Use of communal grounds
**Concerns:**
- Service charge approximately £1,300 per annum
- Leasehold: 125 years remaining
Discover the perfect blend of luxury and convenience in this newly built duplex apartment, located in the exclusive Oak House development, featuring just eight apartments. With spacious interiors accentuated by sleek design and modern conveniences such as Bosch kitchen appliances and underfloor heating, this home offers exceptional living. Enjoy the serenity of communal gardens while being just a short walk from Weybridge's vibrant amenities and the mainline station.
Ideal for both families and professionals, this residence offers two generous bedrooms, well-appointed open-plan living spaces, and the comfort of allocated parking, including the option for Electric Vehicle Charging. Benefit from a community-oriented lifestyle in an affluent neighborhood, and with an advantageous lease and 10-year New Build Warranty, you can move in with peace of mind. Take advantage of this unique opportunity to own a piece of contemporary living in a prime location—homes this exclusive won't be on the market for long!
2 bedroom flat for sale in Queens Road, Weybridge, KT13 — £575,000 • 2 bed • 1 bath • 810 ft²
1 bedroom flat for sale in Queens Road, Weybridge, KT13 — £450,000 • 1 bed • 1 bath • 577 ft²
1 bedroom flat for sale in Queens Road, Weybridge, KT13 — £395,000 • 1 bed • 1 bath • 649 ft²
2 bedroom apartment for sale in Queens Road, Weybridge, KT13 — £625,000 • 2 bed • 2 bath • 943 ft²
2 bedroom apartment for sale in Queens Road, Weybridge, KT13 — £450,000 • 2 bed • 1 bath • 780 ft²
2 bedroom apartment for sale in Queens Road, Weybridge, KT13 — £575,000 • 2 bed • 1 bath • 810 ft²


























































































