Bright three-bedroom home with roof garden and new 999-year lease.
Private Victorian-style roof terrace with far-reaching sea views
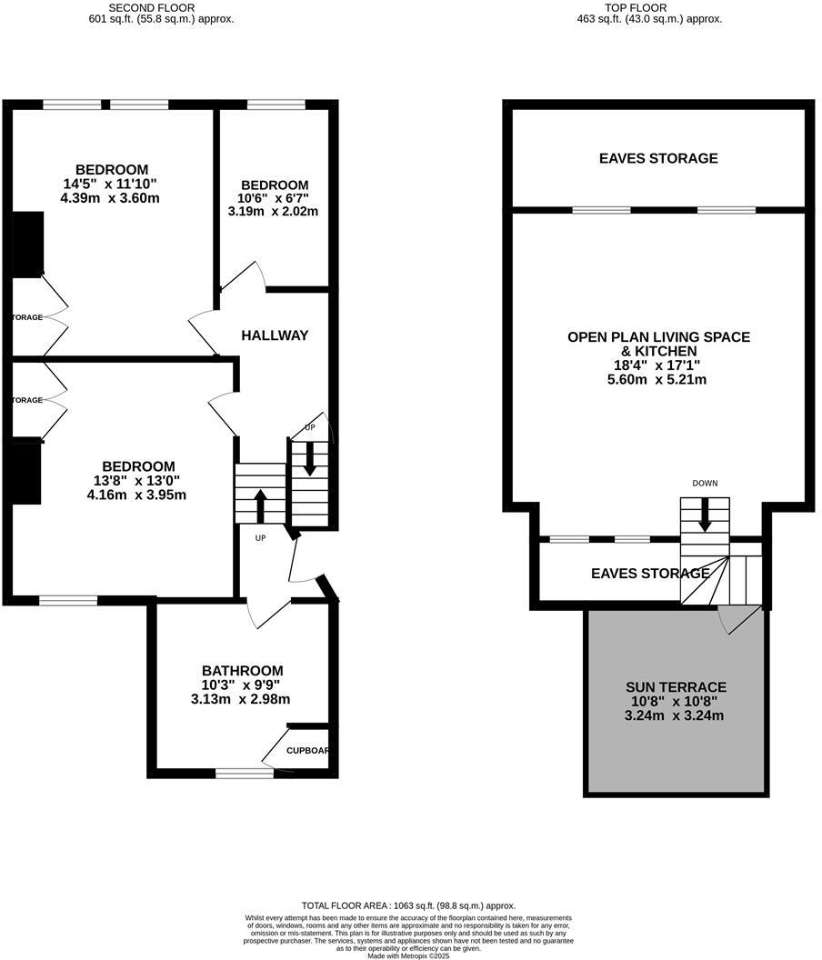
This bright three-bedroom maisonette occupies the upper floors of a period building in central St Leonards, within walking distance of independent shops, the seafront and the mainline station. The top floor open-plan living area is airy and modern, with engineered oak flooring, roof windows and direct access to a private Victorian-style roof terrace that enjoys sun and far-reaching sea views — a rare outdoor space for this location.
The property has been recently refreshed: new carpets throughout, a new loft conversion including roof structure and roof garden, and a new boiler (fitted March 2022, guaranteed until 2029). The owners have also redecorated the front and rear in summer 2024. A new 999-year lease and no onward chain simplify purchase and add tenure security.
Practical points to note: the maisonette is leasehold and attracts a service charge of £425 (below average). There is a single family bathroom serving three bedrooms, and the building is believed to have solid brick walls with no installed cavity insulation. The local area scores high for deprivation and records above-average crime levels, so buyers should consider location factors alongside the property’s positives.
Overall this home suits buyers seeking a stylish seaside base or family residence with low immediate maintenance and strong tenure. The combination of private outside space, recent structural work and proximity to transport and amenities make it particularly appealing for those wanting central coastal living with straightforward purchase terms.
2 bedroom flat for sale in West Hill Road, St. Leonards-On-Sea, TN38 — £350,000 • 2 bed • 1 bath • 761 ft²
2 bedroom flat for sale in Grosvenor Gardens, St. Leonards-On-Sea, TN38 — £325,000 • 2 bed • 1 bath • 778 ft²
3 bedroom maisonette for sale in Milward Road, Hastings, TN34 — £250,000 • 3 bed • 1 bath • 899 ft²
3 bedroom flat for sale in St. Pauls Place, St. Leonards-On-Sea, TN37 — £400,000 • 3 bed • 1 bath • 1416 ft²
3 bedroom flat for sale in St. Pauls Place, St Leonards-On-Sea, TN37 — £400,000 • 3 bed • 1 bath • 1416 ft²
3 bedroom end of terrace house for sale in Gensing Road, St. Leonards-On-Sea, TN38 — £500,000 • 3 bed • 1 bath • 1094 ft²


















































































































