Three one‑bed flats near the seafront with renovation upside and rental income.
Freehold block of three one‑bed flats within walking distance of the beach
Two flats sold with tenants in situ; immediate rental income possible
One flat requires modernisation; whole block needs renovation works
Courtyard and ground‑floor gardens provide outdoor space for two flats
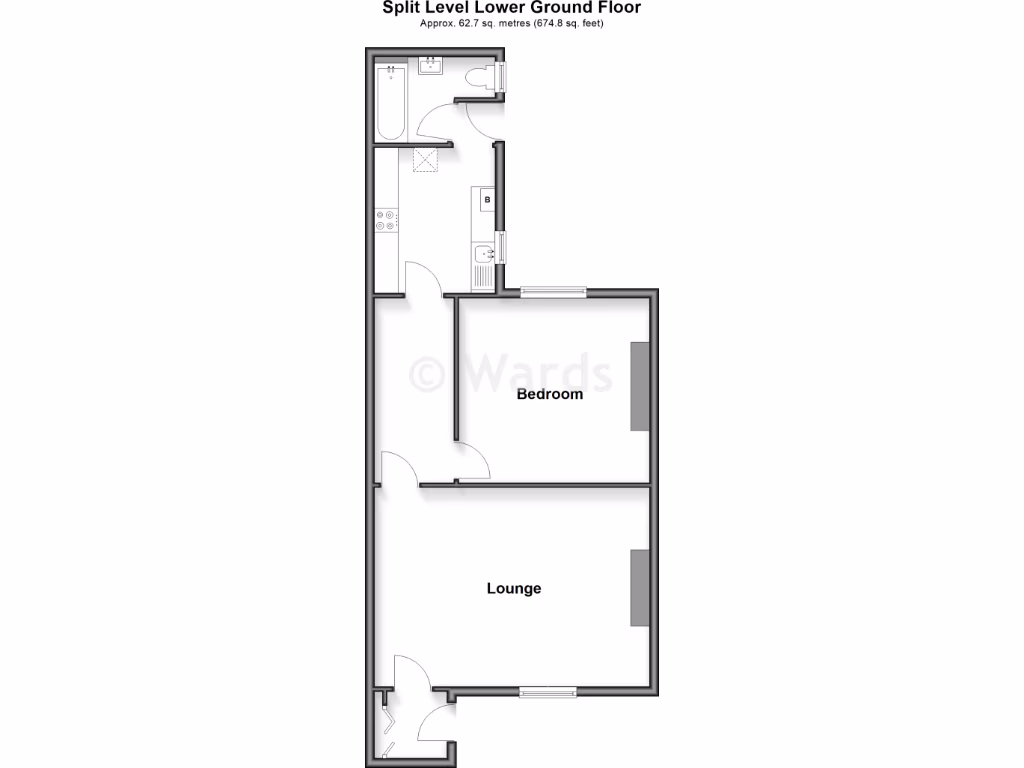
Victorian features, high ceilings and generous room sizes throughout
Sale by modern auction: undisclosed reserve, reservation fee and buyer charges
Local area: very deprived and very high crime — impacts lettings and values
Mains gas heating, double glazing; solid brick walls with assumed no insulation
This freehold block of three one-bedroom flats in central Margate offers a clear investment play within walking distance of the beach, shops and restaurants. The building retains Victorian character with bay windows and high ceilings; two flats already let provide immediate income while the third requires modernisation and scope for value uplift.
Practical positives include gardens for the lower-ground and ground-floor flats, double-glazed windows, mains gas central heating and a compact total size suitable for hands-on landlords. Room dimensions are generous for one-bed accommodation, supporting rental appeal to couples or single professionals and short-term holiday lets (subject to permissions).
Buyers should note material points: the property needs renovation and one flat requires modernisation; two flats are sold with tenants in situ which restricts vacant-possession options. The sale is by modern auction with an undisclosed reserve price, mandatory reservation fee and additional buyer charges — allow time for due diligence and factor these costs into any offer. The area shows high crime and significant deprivation, which may affect tenant pool and rental values.
This lot suits investors or experienced landlords comfortable with refurbishment and auction purchasing. With repair and cosmetic investment, the block has realistic potential to increase income and capital value from its seaside location and solid Victorian construction.
7 bedroom block of apartments for sale in Carroways Place, Margate, Kent, CT9 — £500,000 • 7 bed • 5 bath • 679 ft²
2 bedroom flat for sale in Athelstan Road, Cliftonville, Margate, Kent, CT9 — £120,000 • 2 bed • 1 bath • 517 ft²
7 bedroom semi-detached house for sale in Eaton Road, Margate, Kent, CT9 — £400,000 • 7 bed • 1 bath • 2735 ft²
1 bedroom flat for sale in Athelstan Road, Margate, Kent, CT9 — £55,000 • 1 bed • 1 bath • 474 ft²
7 bedroom semi-detached house for sale in Eaton Road, Margate, Kent, CT9 — £450,000 • 7 bed • 2 bath • 457 ft²
2 bedroom flat for sale in Flat 6/E Arlington House All Saints, Margate, Kent, CT9 — £65,000 • 2 bed • 1 bath • 657 ft²










































































