Seven-bedroom period property with strong investor potential near the beach.
Seven bedrooms across three floors — previously configured as an HMO
Single main bathroom plus separate toilet for seven bedrooms
Walking distance to sandy beaches, Dreamland and mainline station
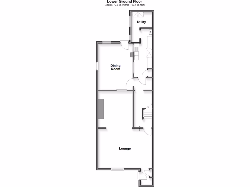
Private sunny rear garden; separate lounge, dining room and kitchen
Built c.1900–1929 with Victorian features and high ceilings
Double glazing and mains gas central heating present
Area is very deprived with very high local crime — affects management
Auction sale with reservation fee and undisclosed reserve price
A large Victorian semi detached property in central Margate offering clear rental and refurbishment potential. Laid out over three floors with seven bedrooms, separate lounge, dining room and kitchen, the house has previously been operated as an HMO and could suit an investor or landlord seeking a high‑yield asset close to the seafront and transport links.
The house retains period features such as bay windows and high ceilings and benefits from double glazing and mains gas central heating. A private sunny rear garden adds outside space. The property will be sold via the Modern Method of Auction; buyers should allow for a non‑refundable reservation fee and an undisclosed reserve price.
There are practical and financial issues to consider: the home has only one main bathroom (plus separate toilet), solid brick walls likely without cavity insulation, and it will need refurbishment to meet contemporary HMO standards and comfort expectations. The surrounding area is classified as very deprived with very high local crime levels—factors that may affect rental demand and management costs.
This is a purchase for someone comfortable with auction processes and post‑purchase renovation. If you are an investor prepared to carry out upgrades and regulatory checks, the property’s size, location within walking distance of the beach, Dreamland and the mainline station, and HMO layout offer potential for an improved income stream once works and compliance are completed.
7 bedroom semi-detached house for sale in Eaton Road, Margate, Kent, CT9 — £450,000 • 7 bed • 2 bath • 457 ft²
3 bedroom semi-detached house for sale in Clifton Gardens, Cliftonville, Margate, Kent, CT9 — £220,000 • 3 bed • 1 bath • 819 ft²
3 bedroom semi-detached house for sale in Connaught Gardens, Margate, Kent, CT9 — £250,000 • 3 bed • 1 bath • 664 ft²
2 bedroom flat for sale in Athelstan Road, Cliftonville, Margate, Kent, CT9 — £85,000 • 2 bed • 1 bath • 431 ft²
2 bedroom flat for sale in Athelstan Road, Cliftonville, Margate, Kent, CT9 — £120,000 • 2 bed • 1 bath • 517 ft²
5 bedroom semi-detached house for sale in Madeira Road, Cliftonville, Margate, Kent, CT9 — £550,000 • 5 bed • 1 bath • 1228 ft²


























































