Compact, low-maintenance first-floor apartment close to shops and transport links.
Over-60s development with house manager and 24-hour emergency call system
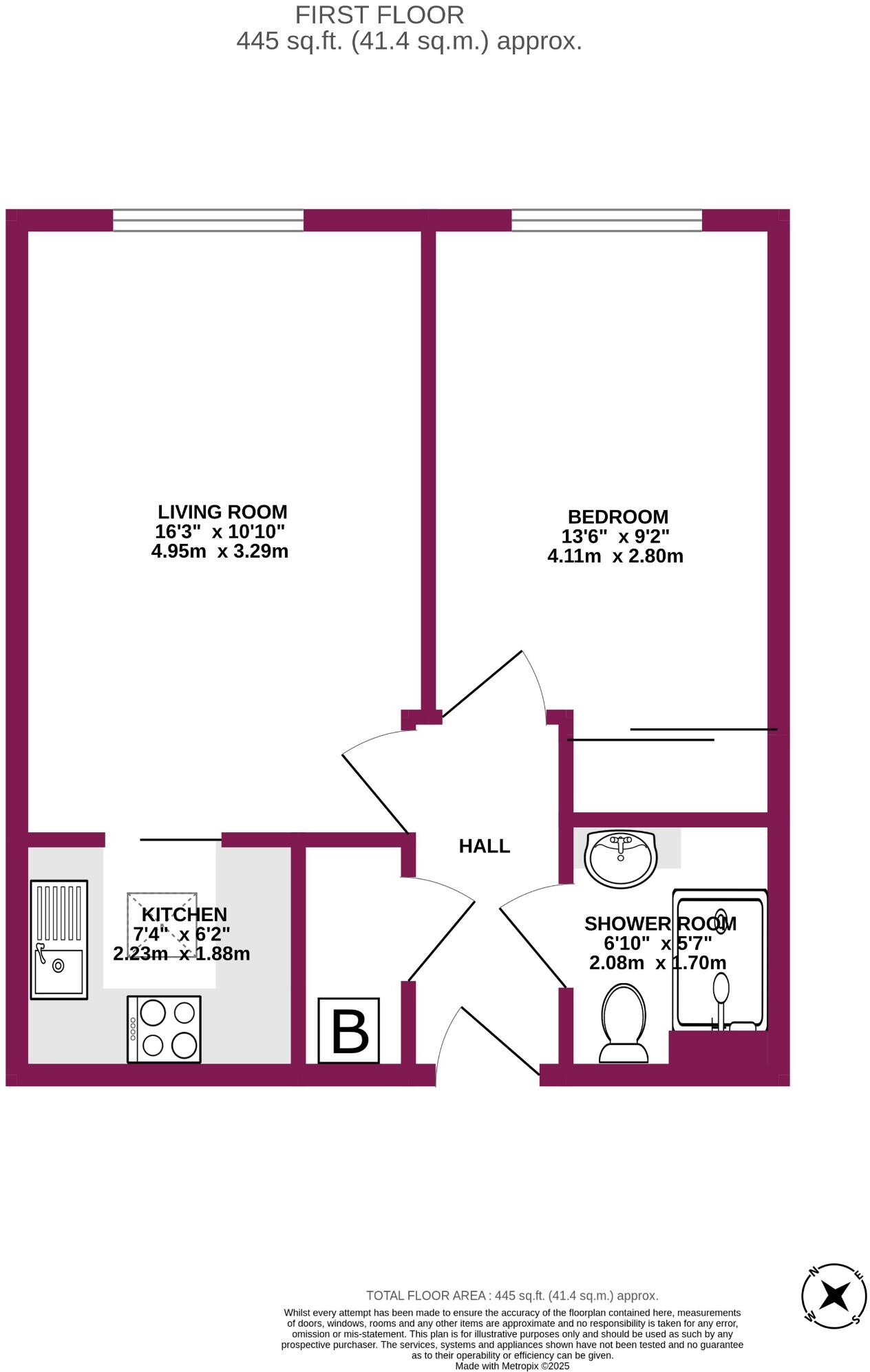
This first-floor, one-bedroom apartment in Pagham Court is purpose-built for over-60s living and sold chain free. Constructed circa 2010, the flat benefits from a long lease (approx. 110 years remaining), an EPC B rating and electric underfloor heating throughout for consistent, low-profile warmth. The development provides peace of mind with a house manager, 24-hour emergency call system, communal lounge, laundry and well-kept grounds.
The accommodation is compact and efficiently laid out: entrance hall with large walk-in storage, living/dining room with feature electric fireplace, small fitted kitchen with integrated appliances and a double bedroom with built-in wardrobe. The shower room has level access, grab rails and heated towel rail, making it suitable for assisted living needs. Resident permit parking is available on site and the location is within easy reach of local shops, bus routes and Bognor Regis town centre.
Buyers should note the running costs: a service charge of £256.34 per month (covers many communal services and building insurance) and ground rent of £425 per year. Council Tax is Band B. The property sits in an area with above-average crime rates and higher local deprivation indices, which may concern some purchasers. The apartment’s size (approx. 445 sq ft) is modest for two people but workable for single occupancy or a downsizer.
Overall this flat suits a retiree seeking low-maintenance living with on-site support and communal facilities, or an investor looking for a turn-key retirement tenancy. It offers safety, convenience and manageable upkeep, balanced against service charges and the limitations of compact accommodation.
1 bedroom apartment for sale in Pagham Court, Hawthorn Road, Bognor Regis, West Sussex, PO21 2UP, PO21 — £130,000 • 1 bed • 1 bath • 474 ft²
1 bedroom retirement property for sale in Pagham Court, Bognor Regis, PO21 — £70,000 • 1 bed • 1 bath • 462 ft²
2 bedroom apartment for sale in Hawthorn Road, Bognor Regis, West Sussex, PO21 — £175,000 • 2 bed • 1 bath • 863 ft²
2 bedroom apartment for sale in Pagham Court, Hawthorn Road, Bognor Regis, West Sussex, PO21 2UP, PO21 — £190,000 • 2 bed • 1 bath • 753 ft²
2 bedroom apartment for sale in Pagham Court, Hawthorn Road, Bognor Regis, West Sussex, PO21 — £240,000 • 2 bed • 1 bath • 753 ft²
1 bedroom apartment for sale in Hawthorn Road, Bognor Regis, West Sussex, PO21 — £155,000 • 1 bed • 2 bath • 587 ft²










































