Compact, move-in ready home ideal for first-time buyers near local school.
Three bedrooms, master with en-suite and good storage
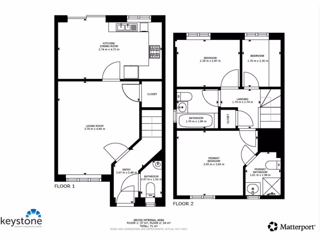
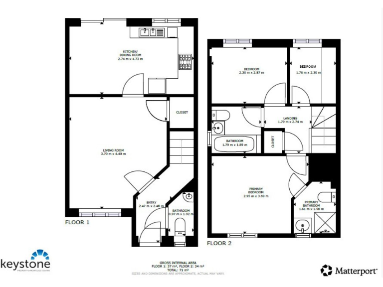
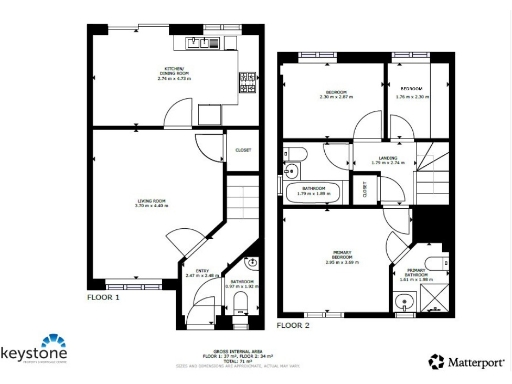
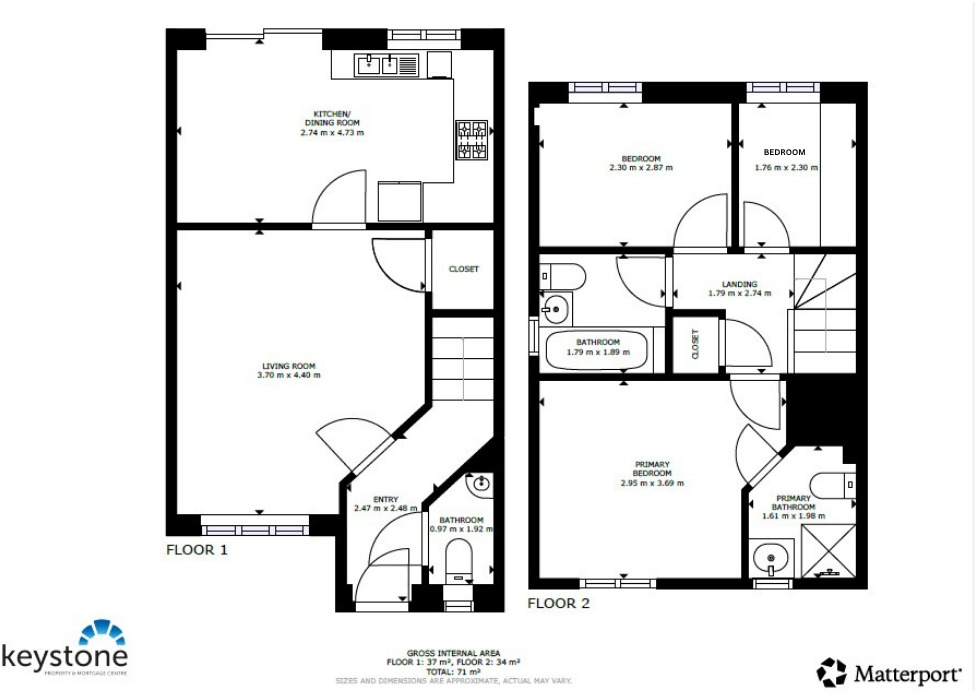
This three-bedroom semi-detached house on Ffordd Piran is a compact, move-in ready home suited to first-time buyers seeking modern, low-maintenance living. The open-plan kitchen/diner with French doors, a spacious lounge and a master en-suite deliver comfortable daily living on a modest footprint. A private driveway for two cars and a lawned rear garden with patio and decking extend the usable space.
Buyers should note practical points: the property is new build stock with a total area of about 764 sq ft on a small plot, and the vendor-commissioned searches are already underway — it will be a condition of sale that the purchaser pays for these pre-commissioned searches at completion. Heating and boiler were installed in 2018; the boiler’s last recorded service was in 2019, so arrange routine checks as part of pre-purchase enquiries.
The location is convenient for young families: the local primary school is within walking distance and Flint town centre amenities and transport links are close by. Broadband speeds and mobile signal are both strong, making the house suitable for hybrid working or streaming. Note the wider area indicators: higher-than-average local crime and relatively high area deprivation — consider local checks and your surveyor’s advice.
Overall this property offers a practical, modern starter home with ready-to-live-in finishes and sensible parking. It’s best for buyers who prioritise location, convenience and low-maintenance living but who understand the small internal and external footprint and the purchase condition regarding the pre-commissioned searches.
3 bedroom semi-detached house for sale in Chester Road, Oakenholt, Flint, Flintshire, CH6 5SD, CH6 — £175,000 • 3 bed • 2 bath • 744 ft²
3 bedroom semi-detached house for sale in Ffordd Dewi, Oakenholt, Flint, Flintshire, CH6 5WB, CH6 — £190,000 • 3 bed • 1 bath • 832 ft²
3 bedroom detached house for sale in Llys Cwyfan, Oakenholt, Flint, Flintshire, CH6 5FN, CH6 — £270,000 • 3 bed • 2 bath • 1174 ft²
4 bedroom detached house for sale in Ffordd Hywyn, Oakenholt, Flint, Flintshire, CH6 5WD, CH6 — £240,000 • 4 bed • 2 bath • 1184 ft²
4 bedroom detached house for sale in Ffordd Hywyn, Oakenholt, Flint, Flintshire, CH6 5WN, CH6 — £360,000 • 4 bed • 3 bath • 1476 ft²
4 bedroom detached house for sale in Min Awel, Flint, Flintshire, CH6 5TG, CH6 — £290,000 • 4 bed • 2 bath • 1624 ft²










































































