Bright, manageable two-bedroom for over‑55s in Bramhall with communal facilities.
- Purpose-built retirement apartment, built 2023
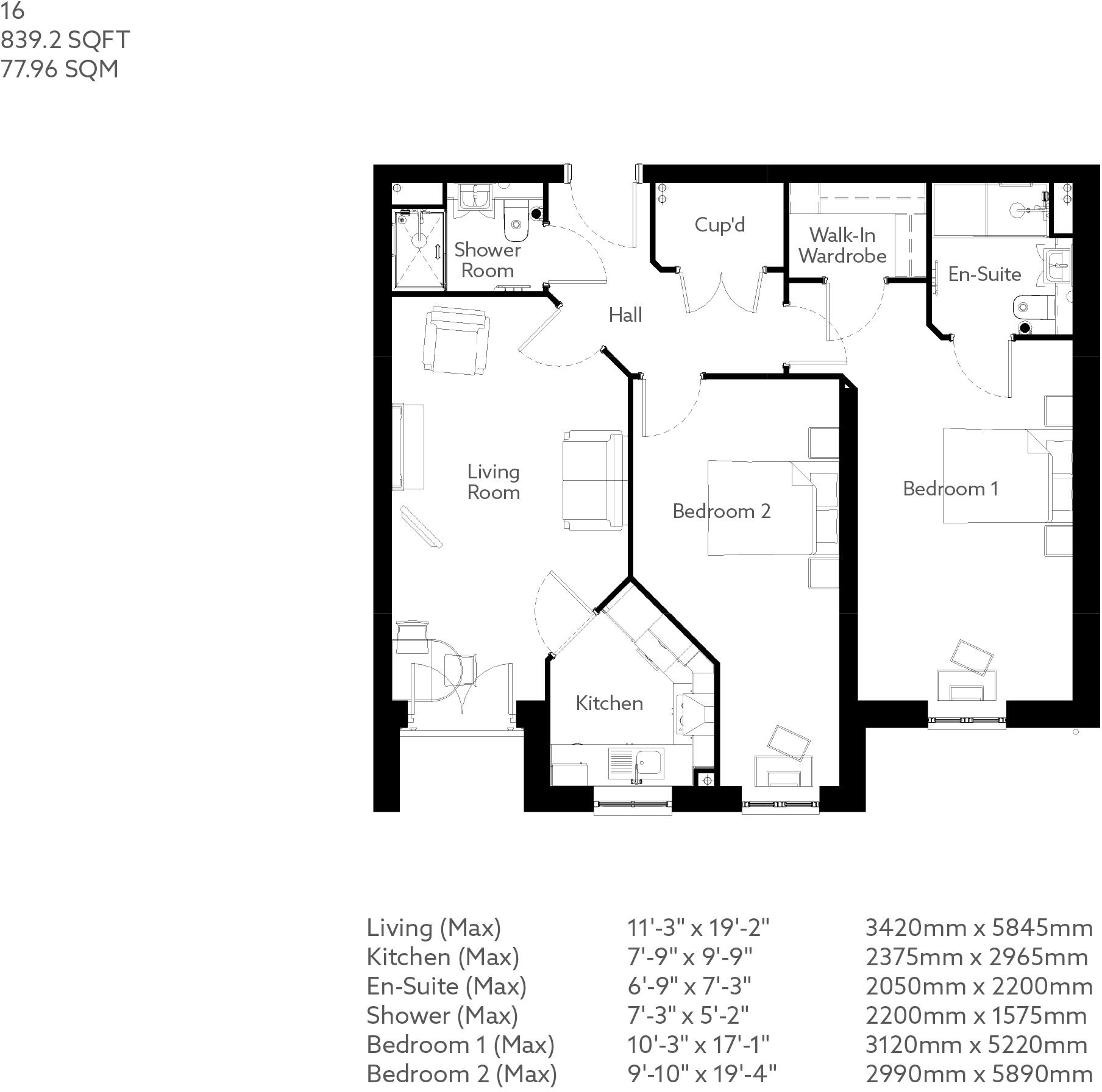
- 839 sq ft, two bedrooms, one shower room, first-floor
- South‑east facing with fitted kitchen and utility cupboard
- On-site House Manager and communal lounge for socialising
- Long lease (example 988 years); shared ownership tenure
- Service charge approx. £556 pcm; check what it covers
- Heating via electric room heaters — potentially higher running costs
- Very slow local broadband; suitable for those not reliant on fast internet
A bright, low-maintenance two-bedroom apartment in the purpose-built Queens View development, designed for over‑55s who want independent living with onsite support. At 839 sq ft, the first-floor home offers a spacious living room, fitted kitchen with integrated appliances, a master bedroom with walk‑in wardrobe and a modern shower room. The development benefits from a House Manager, elegant communal lounge, guest parking and camera entry for added security.
This is a new-build shared ownership leasehold home (constructed 2023) with a long lease and an example service charge of £556 pcm. The property is south‑east facing and energy efficient (SAP up to 85), but heating is by electric room heaters which can increase running costs compared with gas. Broadband speeds in the area are reported as very slow, which may affect streaming or remote working.
Shared ownership gives a lower initial purchase cost with flexible staircasing options; there is also off‑street parking and very low local crime. Buyers should note the tenure is leasehold with a shared‑ownership arrangement — check nomination/resale rules, service charge inclusions and any restrictions before committing. Overall, this is a comfortable, well-managed retirement apartment ideal for downsizers seeking community facilities and low maintenance living.
2 bedroom apartment for sale in Apartment 40, Queens View, Ack Lane East, Bramhall, SK7 — £247,500 • 2 bed • 2 bath • 806 ft²
2 bedroom retirement property for sale in 64 Ack Lane East,
Bramhall,
Stockport,
SK7 2DA, SK7 — £356,250 • 2 bed • 1 bath • 871 ft²
1 bedroom retirement property for sale in 64 Ack Lane East,
Bramhall,
Stockport,
SK7 2DA, SK7 — £277,500 • 1 bed • 1 bath • 579 ft²
2 bedroom retirement property for sale in QUEENS VIEW, Ack Lane East, Bramhall SK7 2DA, SK7 — £525,000 • 2 bed • 2 bath • 822 ft²
2 bedroom retirement property for sale in 64 Ack Lane East,
Bramhall,
Stockport,
SK7 2DA, SK7 — £519,950 • 2 bed • 1 bath • 550 ft²
1 bedroom apartment for sale in Queens View, 64 Ack Lane East Bramhall, Stockport, SK7 2DA, SK7 — £349,950 • 1 bed • 1 bath • 581 ft²






































