Low-maintenance, secure one-bedroom home near Bramhall amenities and transport.
Purpose-built 2023 retirement apartment, first-floor, north-east aspect
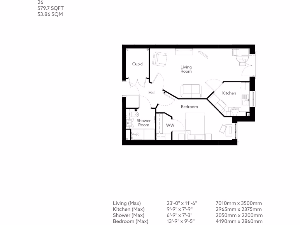
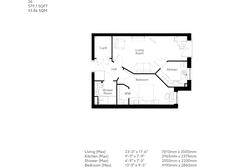
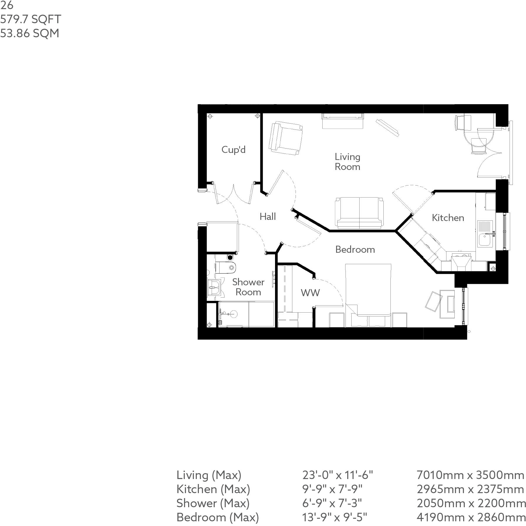
A bright, purpose-built one-bedroom retirement apartment in Queens View, Bramhall, designed for low-maintenance living. Set on the first floor with a north-east aspect, the 579 sq ft layout includes an open-plan living/kitchen, fitted appliances, a separate utility cupboard with washer-dryer, and a walk-in wardrobe in the bedroom. The shower room has a low-profile tray and a heated towel rail.
The development is modern (completed 2023) and aimed at retirement living: a dedicated House Manager, elegant communal lounge, camera-entry system and guest parking support a sociable, secure environment. Off-street parking is available and the location benefits from excellent transport links and nearby shops, cafes and healthcare services in affluent Bramhall.
Practical considerations: this is leasehold shared ownership with example prices shown (50% share from £185,000 with £424pcm service charge; 75% share purchase option available). Heating is electric via room heaters and broadband speeds are reported very slow. Service charge is below average but ongoing, and council tax band is not specified. These points suit buyers wanting easy, low-upkeep retirement accommodation rather than full independence from service costs.
2 bedroom retirement property for sale in 64 Ack Lane East,
Bramhall,
Stockport,
SK7 2DA, SK7 — £363,750 • 2 bed • 1 bath • 839 ft²
1 bedroom retirement property for sale in 64 Ack Lane East,
Bramhall,
Stockport,
SK7 2DA, SK7 — £349,950 • 1 bed • 1 bath • 579 ft²
2 bedroom retirement property for sale in 64 Ack Lane East,
Bramhall,
Stockport,
SK7 2DA, SK7 — £356,250 • 2 bed • 1 bath • 871 ft²
2 bedroom retirement property for sale in 64 Ack Lane East,
Bramhall,
Stockport,
SK7 2DA, SK7 — £519,950 • 2 bed • 1 bath • 550 ft²
2 bedroom apartment for sale in Apartment 40, Queens View, Ack Lane East, Bramhall, SK7 — £247,500 • 2 bed • 2 bath • 806 ft²
2 bedroom retirement property for sale in QUEENS VIEW, Ack Lane East, Bramhall SK7 2DA, SK7 — £525,000 • 2 bed • 2 bath • 822 ft²


































































