Chain-free, low-cost Victorian terrace with renovation potential and a rear yard..
Chain-free freehold two-bedroom Victorian mid-terrace with bay window
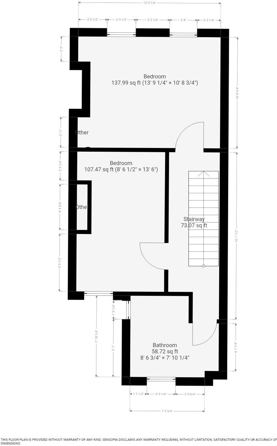
Small overall size ~397 sq ft; compact rooms and layout
Requires renovation throughout; damp patches and cosmetic work needed
Solid brick walls; no known insulation (energy-improvement likely required)
Double glazing present; installation date unknown
Mains gas boiler and radiators; heating in place
Rear yard provides private outdoor space
Area is very deprived with high local crime — consider location risks
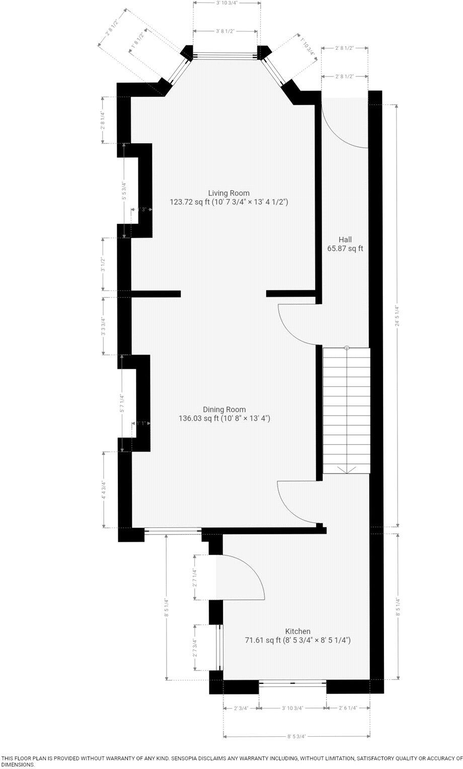
This two-bedroom mid-terrace on Olney Street offers a straightforward, affordable entry to homeownership in north Liverpool. The property is chain-free and freehold, with original Victorian features such as a bay-fronted living room and high ceilings that give scope to create a bright, characterful home. The layout includes two reception rooms, a fitted kitchen and a three-piece bathroom. A rear yard provides private outdoor space.
The house requires renovation throughout: cosmetic works, repairs to damp patches, and likely modernisation of services. Walls are solid brick with no known insulation and glazing is double but installation date is unknown — factor in potential energy-improvement costs. Heating is by mains-gas boiler and radiators; there is no flood risk. The overall footprint is small (approximately 397 sq ft) so workable but compact.
Location strengths include fast broadband, excellent mobile signal and good public transport links into the city. Local amenities and several highly rated primary schools are within walking distance; Stanley Park and Anfield Stadium are also nearby. The area is identified as very deprived with higher crime levels, so buyers should weigh community/location considerations alongside purchase price and investment potential.
For a first-time buyer willing to take on a modest renovation, this property could become a comfortable, characterful home. For investors it also presents letting potential in a popular area, though budgeting for repairs, energy improvements and ongoing management is essential. Clear-headed buyers will see this as a low-cost purchase with scope to add value.
3 bedroom terraced house for sale in Armley Road, Liverpool, Merseyside, L4 — £100,000 • 3 bed • 1 bath • 937 ft²
2 bedroom terraced house for sale in Glamis Road, Liverpool, Merseyside, L13 — £100,000 • 2 bed • 1 bath • 684 ft²
2 bedroom end of terrace house for sale in Kearsley Street, Anfield, Liverpool, Merseyside, L4 — £120,000 • 2 bed • 1 bath • 690 ft²
2 bedroom terraced house for sale in Holbeck Street, Anfield, Liverpool, L4 — £120,000 • 2 bed • 1 bath • 700 ft²
3 bedroom terraced house for sale in Nixon Street, Anfield, Liverpool, L4 — £120,000 • 3 bed • 1 bath • 948 ft²
2 bedroom end of terrace house for sale in Dyson Street, Liverpool, Merseyside, L4 — £70,000 • 2 bed • 1 bath • 829 ft²






































