Compact starter home or buy-to-let close to transport links and city centre.
Chain-free two-bedroom end-terrace, ready to occupy or let
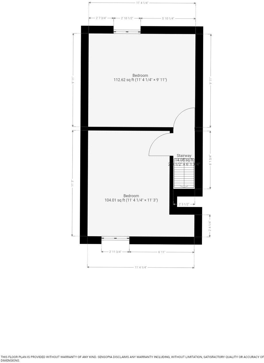
This two-bedroom end-terrace offers a practical, chain-free entry into Liverpool property ownership or a compact investment purchase. The open-plan lounge/diner and fitted kitchen with integrated appliances provide ready-to-live-in accommodation across about 700 sq ft, while a private rear yard keeps outdoor maintenance low.
Built around 1900–1929, the house retains period character such as a bay window and original fireplace, giving charm alongside modern comforts like double glazing and gas central heating. Local connectivity is strong—fast broadband and excellent mobile signal—making the home suitable for commuting or letting to professionals.
Buyers should note the area scores as very deprived and local services and schools are mixed in performance; this influences long-term demand. The solid-brick walls are assumed to lack insulation, so buyers wanting greater energy efficiency may need to invest in upgrades. Council tax is very low, and there is no chain, simplifying a quicker move or completion.
2 bedroom terraced house for sale in Olney Street, Anfield, Liverpool, L4 — £110,000 • 2 bed • 1 bath • 397 ft²
2 bedroom terraced house for sale in Roxburgh Street, Anfield, Liverpool, L4 — £110,000 • 2 bed • 1 bath • 874 ft²
2 bedroom end of terrace house for sale in Kearsley Street, Anfield, Liverpool, Merseyside, L4 — £120,000 • 2 bed • 1 bath • 690 ft²
3 bedroom terraced house for sale in Richmond Park, Anfield, L6 — £150,000 • 3 bed • 1 bath • 974 ft²
3 bedroom terraced house for sale in Lisburn Lane, Liverpool, Merseyside, L13 — £120,000 • 3 bed • 1 bath • 1129 ft²
2 bedroom terraced house for sale in 13 Curate Road, Liverpool L6 0BZ, L6 — £99,950 • 2 bed • 1 bath






























