**Property Highlights:**
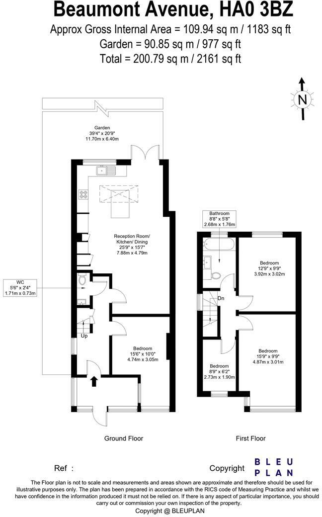
- Extended three-bedroom semi-detached house
- Stunning open-plan kitchen diner with a six-meter extension
- Downstairs shower room and modern family bathroom
- Private rear garden
- Potential for loft conversion, subject to planning
- Excellent condition internally
- Conveniently located near North Wembley and Sudbury Town stations
- Close to outstanding local schools
This beautifully extended semi-detached house on Beaumont Avenue offers modern living with exquisite design elements perfect for families seeking comfort and functionality. The impressive open-plan kitchen diner, a result of a generous six-meter extension, creates a perfect space for entertaining or family gatherings, while the additional front reception room adds versatility. With three well-proportioned bedrooms and two bathrooms (including a convenient downstairs shower room), this home caters effortlessly to both daily life and relaxation.
The private rear garden provides a peaceful retreat, complemented by potential loft conversion opportunities for those looking to expand. Enjoy easy access to local amenities, schools rated 'Outstanding' by Ofsted, and excellent transport links to London. With all these features wrapped in a desirable neighborhood, this property represents a fantastic opportunity for growing families or savvy investors looking for a unique and adaptable home. Don’t miss your chance to view this exceptional property—explore the possibilities it offers today!
 2 bedroom semi-detached house for sale in Beaumont Avenue, Wembley, HA0 — £500,000 • 2 bed • 1 bath • 659 ft²
 2 bedroom semi-detached house for sale in Beaumont Avenue, Wembley, HA0 — £500,000 • 2 bed • 1 bath • 659 ft² 3 bedroom semi-detached house for sale in Sudbury Avenue, Wembley, HA0 — £615,000 • 3 bed • 1 bath • 1128 ft²
 3 bedroom semi-detached house for sale in Sudbury Avenue, Wembley, HA0 — £615,000 • 3 bed • 1 bath • 1128 ft² 3 bedroom semi-detached house for sale in Brentvale Avenue, Wembley, HA0 — £650,000 • 3 bed • 1 bath • 1195 ft²
 3 bedroom semi-detached house for sale in Brentvale Avenue, Wembley, HA0 — £650,000 • 3 bed • 1 bath • 1195 ft² 3 bedroom semi-detached house for sale in Langham Gardens, Wembley, HA0 — £725,000 • 3 bed • 1 bath • 1526 ft²
 3 bedroom semi-detached house for sale in Langham Gardens, Wembley, HA0 — £725,000 • 3 bed • 1 bath • 1526 ft² 3 bedroom semi-detached house for sale in Oldborough Road, Wembley, HA0 — £630,000 • 3 bed • 1 bath • 1076 ft²
 3 bedroom semi-detached house for sale in Oldborough Road, Wembley, HA0 — £630,000 • 3 bed • 1 bath • 1076 ft² 4 bedroom semi-detached house for sale in Bovingdon Avenue, Wembley, Middlesex HA9 — £650,000 • 4 bed • 3 bath • 1673 ft²
 4 bedroom semi-detached house for sale in Bovingdon Avenue, Wembley, Middlesex HA9 — £650,000 • 4 bed • 3 bath • 1673 ft²














































