EN1 3DX - 3 bed willow estate family home in Carnarvon Avenue, EN1 3DX

View on Property Piper

3 bedroom end of terrace house for sale in Carnarvon Avenue, Enfield, EN1

Summary - 48 CARNARVON AVENUE ENFIELD EN1 3DX

3 bed 1 bath End of Terrace

Well-presented three-bedroom home near Enfield Town station and local schools.
End-of-terrace three-bedroom family home on popular Willow Estate
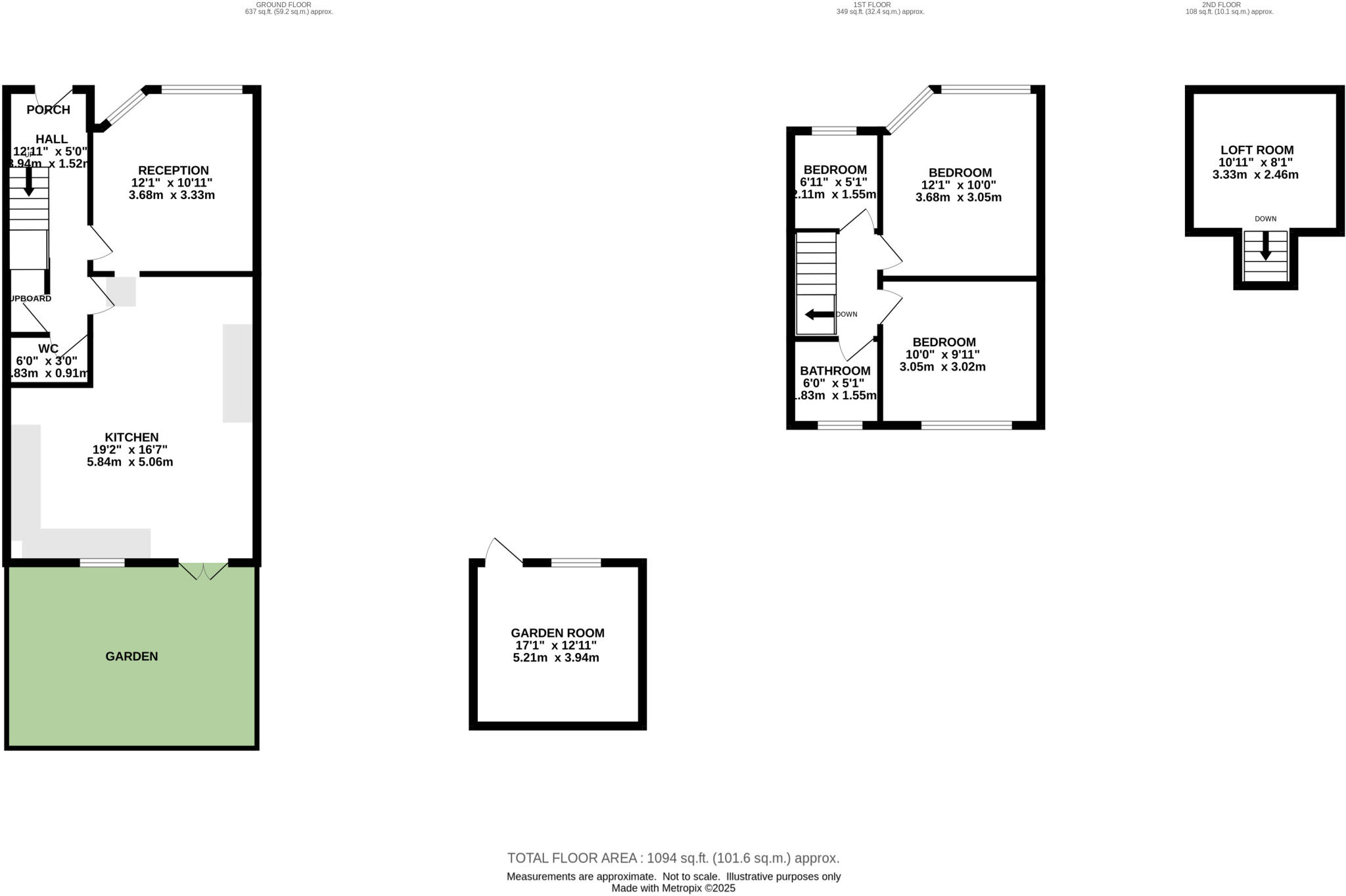
This three-bedroom end-of-terrace on the popular Willow Estate offers comfortable family living with practical modern updates. A 19ft fitted kitchen/diner and a 12ft reception room create usable day-to-day space, while a well-presented rear garden with side access and a powered outbuilding add versatility for storage, home working or hobbies.

The house is well-connected to Enfield Town shopping and Overground services, and sits close to several well-regarded primary and secondary schools, making it well suited to families. Off-street parking on a paved/shared driveway and double glazing add everyday convenience; central heating is by gas boiler and radiators.

Considerations: the property has one family bathroom and a loft room primarily suitable for storage or occasional use rather than a full bedroom. The building dates from the 1930s and has solid brick walls with no known cavity insulation — buyers should budget for potential insulation or energy-efficiency improvements. The outbuilding has low ceilings and basic finishes.

Overall this is a well-presented family home with scope to improve energy efficiency and adapt loft or outbuilding space to personal needs. Its location, school access and practical outdoor space will appeal to growing families seeking a ready-to-move-in house with clear potential for modest investment.

Property Details

Brochure Descriptions

Image Descriptions

Floorplan Description

Rooms

Textual Property Features

Target Audience

AI Tags

Detected Visual Features

EPC Details

Nearby Schools

Nearest Bars And Restaurants

,,,,}

Nearest General Shops

,,}

Nearest Grocery shops

,,}

Nearest Supermarkets

,,}

Nearest Religious buildings

,,}

Nearest Medical buildings

,,,}

Nearest Airports

,}

Nearest Leisure Facilities

,,,,}

Nearest Tourist attractions

,,}

Nearest Train stations

,,,,}

Nearest Bus stations and stops

,,,,}

Nearest Hotels

,,}

Tags

Local Market Stats

AirBnB Data

Similar Properties

Meta

High Res Images

Compatible Images

Low res Images

Thumbnails

Raw Images

High Res Floorplan Images

Compatible Floorplan Images

Low res Floorplan Images

FloorplanImages Thumbnail

Raw Floorplan Images