Period coach house with planning permission and private garden — sold in shell, ideal for developers.
Freehold two-bedroom coach house with development potential
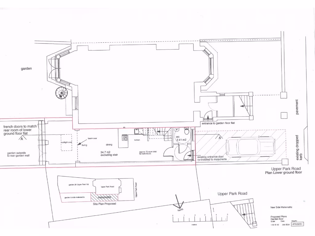
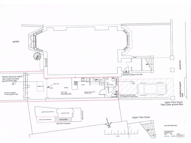
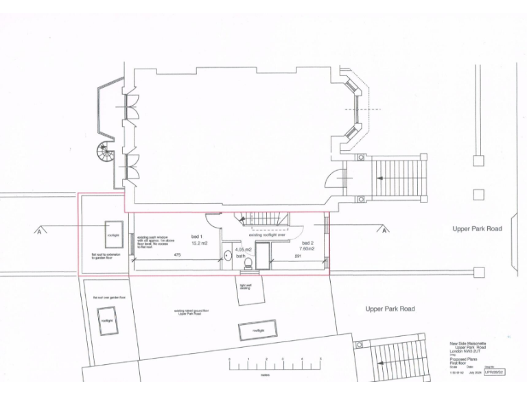
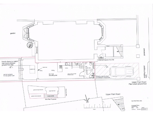
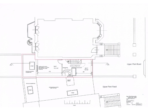
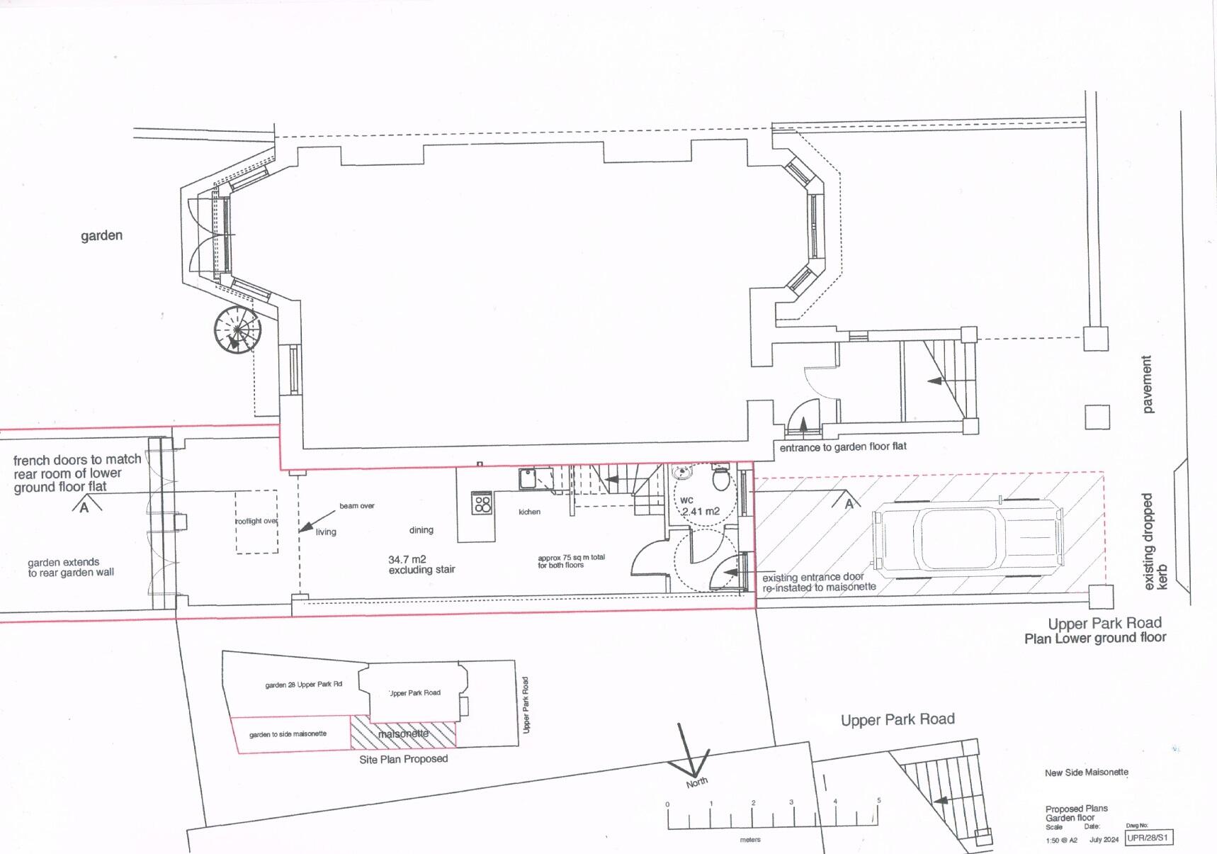
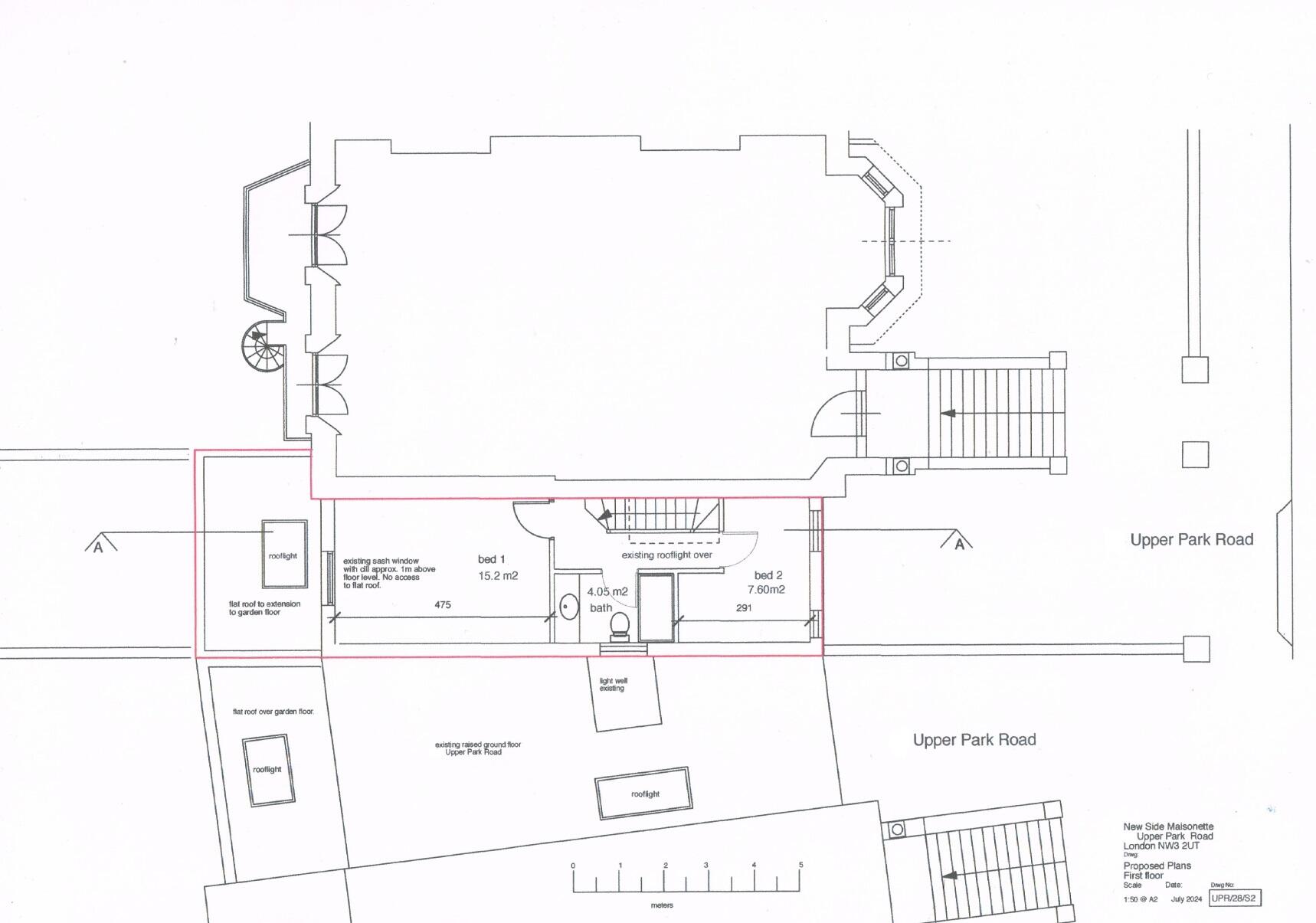
A rare development opportunity in Belsize Park: a two-bedroom freehold coach house sold in shell condition and offered for complete internal refurbishment. Planning permission has been granted for a rear extension, increasing the gross development area to approximately 820 sq ft, creating clear scope to add value. The property includes a private rear patio garden (approx. 8.0m x 4.35m) and a front drive with off-street parking — valuable features in NW3.
The house requires a full fit-out: new water, gas and electricity supplies must be installed and internal works completed. The building is structurally a period terraced coach house with typical Georgian/Victorian features and will suit a buyer prepared to undertake comprehensive renovation or to finish works to a high specification for resale or rental.
Set on a quiet, tree-lined turning in an affluent, inner-city area with excellent schools nearby, the location supports strong demand from professionals and families. With low local crime, fast broadband and excellent mobile signal, the finished home or investment unit would appeal in this desirable NW3 market.
Important negatives stated plainly: the property is sold in shell form and needs full internal refurbishment and new utility connections. Buyers should budget for fit-out costs, contingency and confirm statutory costs and council tax banding separately.
3 bedroom end of terrace house for sale in West Heath Road, London, NW3 — £2,350,000 • 3 bed • 2 bath • 1834 ft²
7 bedroom semi-detached house for sale in Upper Park Road, London, NW3 — £4,900,000 • 7 bed • 4 bath • 3630 ft²
5 bedroom terraced house for sale in Tobin Close, Belsize Park, London, NW3 — £2,000,000 • 5 bed • 3 bath • 2293 ft²
7 bedroom semi-detached house for sale in Haverstock Hill, London, NW3 — £6,700,000 • 7 bed • 6 bath • 4659 ft²
3 bedroom terraced house for sale in Eton Garages, Lambolle Place, London, NW3 — £2,000,000 • 3 bed • 3 bath • 1379 ft²
2 bedroom semi-detached house for sale in Primrose Gardens, Belsize Park, London, NW3 — £1,200,000 • 2 bed • 2 bath • 944 ft²






























































































