Spacious three-bed terrace with garden and two receptions, ideal for first-time buyers..
Freehold three-bedroom Victorian mid-terrace with private enclosed rear garden
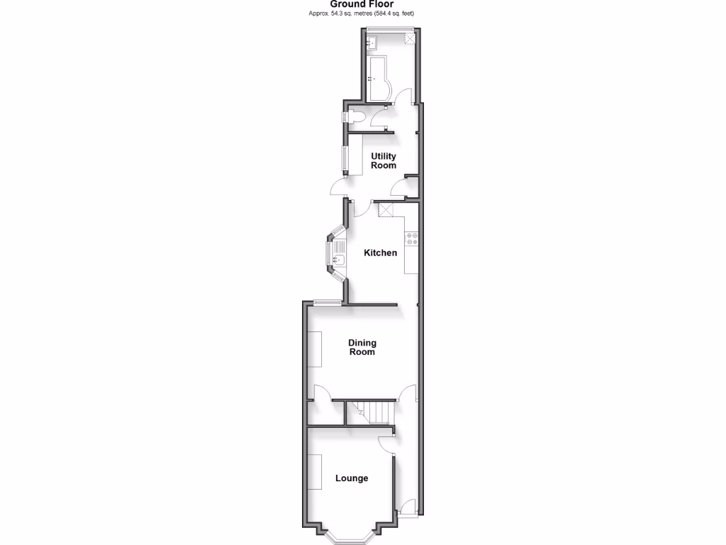
Two separate reception rooms plus a modern kitchen and separate utility room
Bedroom three accessed off bedroom two — useful but unconventional layout
Single family bathroom; separate ground-floor toilet
Built 1900–1929; cavity walls assumed uninsulated — insulation upgrade likely
Dining room shows modernization needed; opportunity to add value
Fast broadband and excellent mobile signal; no flood risk
Local area classed as deprived; crime level average
This well-presented three-bedroom mid-terrace sits in central Portsmouth and suits first-time buyers or young families seeking space and convenience. The house offers two separate ground-floor living rooms, a modern kitchen with a separate utility room, and a private enclosed rear garden — practical everyday features for family life or shared living.
Bedroom one and two are good-sized double rooms; a third bedroom sits off bedroom two, offering a nursery, office or occasional guest room but with an unusual layout. The property is freehold, has double glazing and mains gas central heating with a boiler and radiators, making it straightforward to move into and run.
There are clear opportunities to add value: some rooms show contemporary finishes while others (dining area) will benefit from further modernization. The house dates from 1900–1929 and walls are assumed to have no cavity insulation, so upgrading insulation and energy efficiency is a likely next step.
Location is a practical strength — fast broadband, excellent mobile signal, nearby schools rated Good, local amenities and regular buses. Note the local area is relatively deprived and crime is average; purchasers should consider this when assessing long-term resale or rental potential.
3 bedroom terraced house for sale in Lyndhurst Road, Portsmouth, Hampshire, PO2 — £275,000 • 3 bed • 1 bath • 770 ft²
3 bedroom terraced house for sale in Winchester Road, Portsmouth, Hampshire, PO2 — £245,000 • 3 bed • 1 bath • 936 ft²
3 bedroom semi-detached house for sale in Powerscourt Road, Portsmouth, PO2 — £315,000 • 3 bed • 1 bath • 975 ft²
3 bedroom terraced house for sale in Wallington Road, Portsmouth, PO2 — £275,000 • 3 bed • 1 bath • 1032 ft²
2 bedroom terraced house for sale in Walker Road, Portsmouth, PO2 — £210,000 • 2 bed • 1 bath • 864 ft²
3 bedroom terraced house for sale in Balfour Road, Portsmouth, Hampshire, PO2 — £260,000 • 3 bed • 1 bath • 896 ft²


















































