**Standout Features:**
- Former commercial property, previously a takeaway
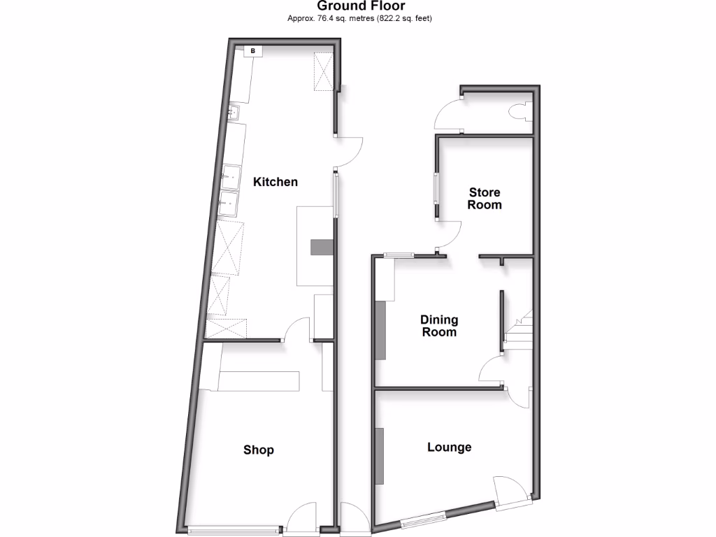
- Freehold mid-terrace, five-bedroom house
- Total space: 1,343 sq ft with 11 rooms and excellent broadband speeds
- Affordable council tax
- Renovation required to revert to residential use
- Small plot size with a derelict courtyard area for potential outdoor space
**Potential Concerns:**
- Requires extensive modern renovation
- Cash buyers only due to current property use status
- Usage and council tax classification needs re-evaluation
Discover a unique investment opportunity with this former takeaway located in the heart of Bognor Regis. This five-bedroom, mid-terrace property spans a generous 1,343 sq ft and is ready to be transformed into a stunning home or investment. Its Victorian charm and spacious layout, including a shop, kitchen, and multiple living areas, offer considerable renovation potential to create a bespoke living space tailored to your needs.
As a cash-only purchase, this property invites discerning buyers looking for a project. The affordable council tax and excellent local amenities—ranging from schools with 'Good' ratings to shops and health facilities—enhance its appeal. Ideal for families, investors, or first-time buyers willing to take on a renovation challenge, this property presents an unmissable chance to secure a footprint in a communal and bustling urban area. Act quickly, as opportunities like this don't come around often!
2 bedroom end of terrace house for sale in 3 William Street, Bognor Regis, West Sussex, PO21 1DL, PO21 — £125,000 • 2 bed • 1 bath • 560 ft²
3 bedroom semi-detached house for sale in Spencer Street, Bognor Regis, West Sussex, PO21 — £260,000 • 3 bed • 1 bath • 1271 ft²
3 bedroom block of apartments for sale in Glamis Street, Bognor Regis, PO21 — £200,000 • 3 bed • 2 bath • 1074 ft²
High street retail property for sale in 3 Felpham Road, & Land North Side Upper Bognor Road, Bognor Regis, West Sussex, PO22 7AS, PO22 — £215,000 • 1 bed • 1 bath • 1392 ft²
5 bedroom terraced house for sale in Linden Road, Bognor Regis, West Sussex, PO21 — £375,000 • 5 bed • 1 bath • 1497 ft²
2 bedroom ground floor flat for sale in 131 Longford Road, Bognor Regis PO21 1AE, PO21 — £90,000 • 2 bed • 1 bath • 625 ft²






























































