Elevated town-centre home with cathedral views and generous outdoor space.
Flint-fronted cottage with dual-aspect cathedral and countryside views
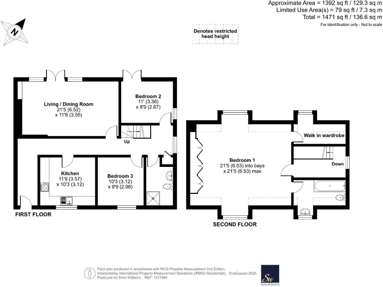
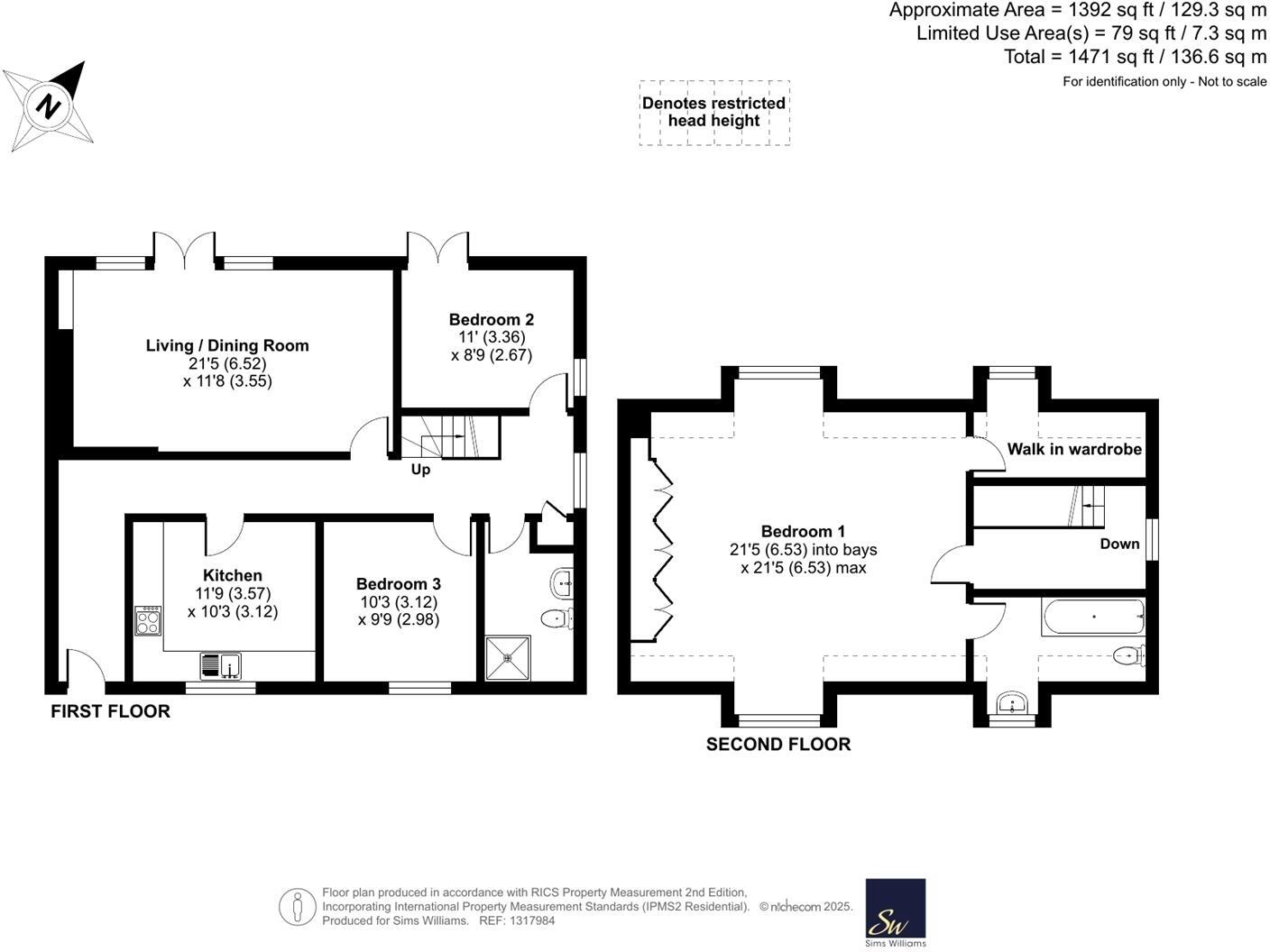
Principal bedroom with en-suite and walk-in dressing room
Large decked terrace and mature front garden for outdoor living
Fitted kitchen/breakfast room and living room with gas fireplace
Two covered allocated parking spaces; off-street convenience
Share of freehold, 964-year lease, low £150 annual service charge
Slow broadband speeds in the area — may affect home working
Local crime levels above average and council tax described as expensive
This elevated flint-fronted cottage sits in the heart of Arundel, offering striking, dual-aspect views of Arundel Cathedral from the principal suite and long-range countryside vistas from the large decked terrace. The layout across two floors provides flexible family living: a fitted kitchen/breakfast room, a living room with gas fireplace and French doors to the terrace, plus three bedrooms including a principal suite with en-suite and dressing area.
Outside, the generous garden terrace and front garden give private outdoor space for children and entertaining. Practical benefits include two covered allocated parking spaces, a long lease (964 years) with share of freehold ownership, a low annual service charge (£150), and no onward chain — all helpful for a straightforward move-in.
Buyers should note material practicalities: broadband speeds in the area are slow, local crime statistics are higher than average, and council tax is described as expensive. The property was constructed around 1996–2002 and has double glazing installed before 2002; rooms are generally average in size and ceilings standard, so some buyers may want to update cosmetic finishes or heating controls to modern standards.
Overall this is a well-located, characterful family home that combines historic flint frontage and cathedral views with sensible ownership terms. It will suit purchasers who value central Arundel living, outdoor terrace space and private parking, while accepting modest local service and infrastructure trade-offs.
2 bedroom terraced house for sale in King Street, Arundel, BN18 — £525,000 • 2 bed • 1 bath • 927 ft²
3 bedroom terraced house for sale in Mount Pleasant, Arundel, West Sussex, BN18 — £375,000 • 3 bed • 2 bath • 937 ft²
2 bedroom terraced house for sale in Mount Pleasant, Arundel, West Sussex, BN18 — £415,000 • 2 bed • 2 bath • 808 ft²
2 bedroom cottage for sale in Mount Pleasant, Arundel, BN18 — £545,000 • 2 bed • 1 bath • 950 ft²
2 bedroom end of terrace house for sale in Orchard Place, Arundel, BN18 — £465,000 • 2 bed • 1 bath • 953 ft²
2 bedroom end of terrace house for sale in School Lane, Arundel, West Sussex, BN18 — £599,995 • 2 bed • 1 bath • 758 ft²


































































