Turnkey two-bed retreat moments from the cathedral and boutique shops.
- Grade II listed Sussex flint cottage with period character
- Newly renovated and offered chain free, move-in ready
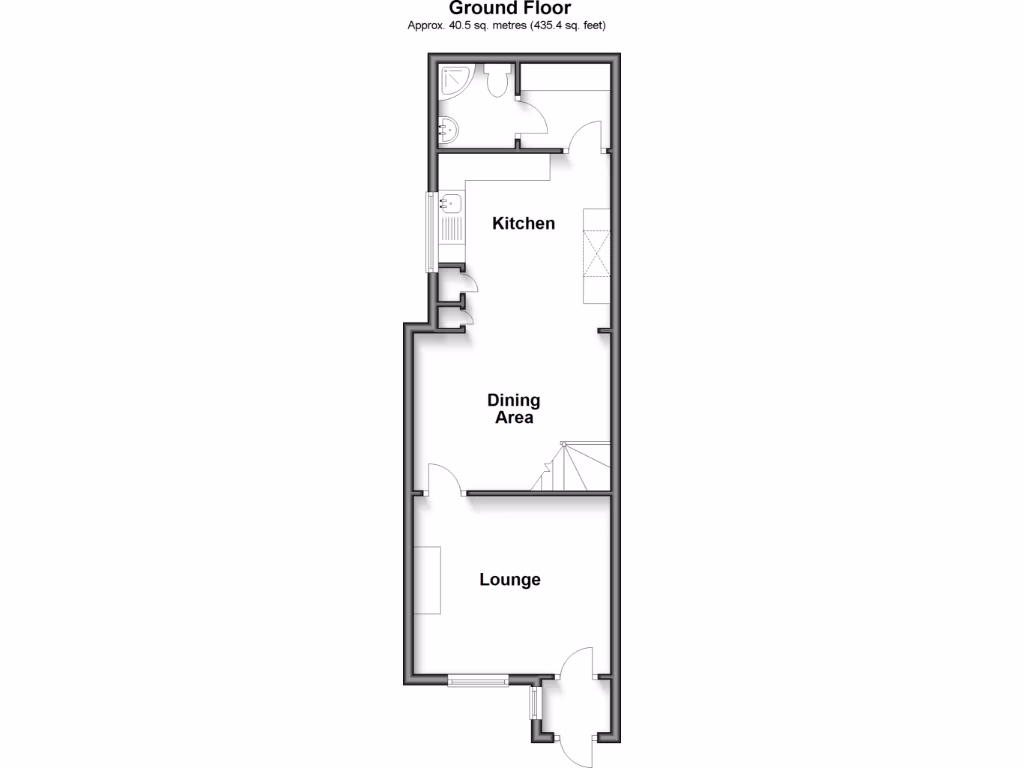
- Light-filled kitchen/dining extension with lantern roof
- Two bedrooms and two bathrooms; compact 808 sq ft layout
- Private sunlit courtyard plus access to communal front lawns
- Listed status will restrict alterations and require consents
- Slow broadband and assumed uninsulated stone walls
- Higher recorded local crime; consider security and insurance
A charming Grade II listed Sussex flint cottage in Arundel’s Cathedral quarter, offered chain free and presented in turnkey condition. The recently renovated interior centres on a light-filled kitchen/dining extension with a lantern roof — a practical social space for entertaining or easy daily living. The cosy lounge, classic fireplace and elegant sash window keep the period character intact.
This compact two-bedroom house suits buyers seeking a lock-up-and-leave retreat or downsizers who value proximity to boutique shops, cafes and the cathedral. The property includes two bathrooms, a useful utility room, a private sunlit courtyard and access to communal front lawns, all on an approximately 808 sq ft footprint.
Buyers should note the property’s Listed status — this is a material consideration and may restrict alterations or require special consents. The home sits in a neighbourhood recorded with higher local crime; practical security measures and insurance checks are recommended. Broadband speeds are slow and walls are assumed uninsulated, which may affect energy performance despite double glazing and gas central heating.
Overall this is a characterful, move-in-ready cottage that balances historic charm with modern convenience. It will suit those wanting central, low-maintenance living in a small town setting, provided they accept the limitations and responsibilities that come with a listed, period home.
3 bedroom end of terrace house for sale in Mount Pleasant, Arundel, West Sussex, BN18 — £375,000 • 3 bed • 2 bath • 937 ft²
2 bedroom terraced house for sale in Surrey Street, Arundel, West Sussex, BN18 — £500,000 • 2 bed • 1 bath • 840 ft²
1 bedroom terraced house for sale in Bond Street, Arundel, BN18 — £345,000 • 1 bed • 1 bath • 426 ft²
2 bedroom terraced house for sale in Orchard Place, Arundel, West Sussex, BN18 — £425,000 • 2 bed • 1 bath • 926 ft²
3 bedroom terraced house for sale in King Street, Arundel, West Sussex, BN18 — £700,000 • 3 bed • 1 bath • 794 ft²
2 bedroom cottage for sale in Queen Street, Arundel, West Sussex, BN18 — £650,000 • 2 bed • 1 bath • 991 ft²






















































