GL7 3HD - Land for sale in Field Farm, Kelmscott, GL7

View on Property Piper

Land for sale in Field Farm, Kelmscott, GL7

Summary - HOME FARM, LECHLADE, KELMSCOTT GL7 3HD

5 bed 5 bath Land

**Standout Features:**
- Full planning permission granted for a spacious new build (24/02391/FUL)
- Options for 4 or 5 bedrooms and 5 bathrooms
- Opportunity to build over 4,000 sqft on a generous plot
- Located in a quaint Cotswold village with low crime rates
- Includes parking with a double garage and landscaped garden space
- Proximity to excellent local schools and community amenities

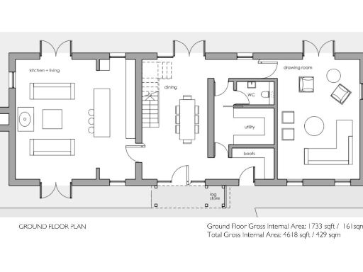
Field Farm presents an exceptional opportunity for buyers looking to create their dream home in the idyllic setting of a quintessential Cotswold village. With full planning permission granted for a new build that can span over 4,000 sqft, this development offers the flexibility to design a property with 4 or 5 bedrooms, 5 bathrooms, and spacious living areas ideal for family life and entertaining. The expansive garden, paired with a double garage, adds further appeal.

This location not only offers a peaceful rural lifestyle but also benefits from belonging to a thriving community, with easy access to nearby amenities in Burford and Faringdon. Families will appreciate the high standard of education available at local schools, making this an ideal spot for raising children. Don’t miss your chance to invest in this exclusive development opportunity—such unique plots are rare to come by, and with its chain-free position, it presents immediate potential to bring your vision to life in a charming countryside setting.

Property Details

Image Descriptions

Textual Property Features

Detected Visual Features

Nearby Schools

Nearest Bars And Restaurants

,,,,}

Nearest General Shops

,,}

Nearest Grocery shops

,,}

Nearest Supermarkets

,,}

Nearest Religious buildings

,,}

Nearest Medical buildings

,,,}

Nearest Leisure Facilities

,,,,}

Nearest Tourist attractions

,,}

Nearest Train stations

,,,,}

Nearest Bus stations and stops

,,,,}

Nearest Hotels

,,}

Tags

Local Market Stats

Similar Properties

Meta

High Res Images

Compatible Images

Low res Images

Thumbnails

Raw Images