GL7 3HD - Commercial development for sale in Kelmscott, Lechlade, GL7

View on Property Piper

Commercial development for sale in Kelmscott, Lechlade, GL7

Summary - Kelmscott, Lechlade, GL7 GL7 3HD

12 bed 11 bath Commercial Development

### Standout Features:
- Price: £1,650,000
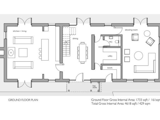
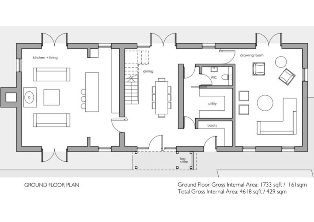
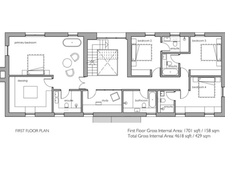
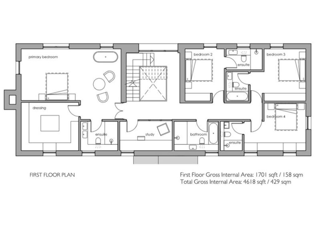
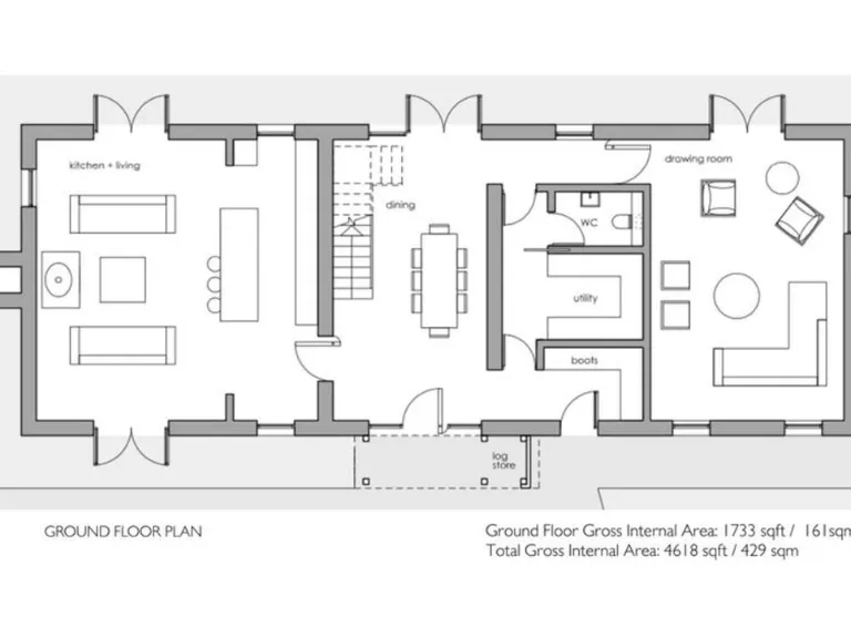
- **Property Type:** Three development plots (new builds and barn conversion)
- **Bedrooms:** Opportunity for 12 total, with 4–5 in each new home and 2 in the barn
- **Bathrooms:** 11 total across the plots
- **Planning Permissions:** Full permissions for two substantial family homes and a two-bedroom barn conversion
- **Location:** Picturesque Kelmscott village, Cotswolds
- **Unique Elements:** Expansive gardens, views over protected land, a blend of rustic character and contemporary design
- **Amenities:** Close to local schools, tranquil countryside with walking trails, and a welcoming local pub

### Summary:
Discover an exceptional opportunity to build your dream home in the idyllic village of Kelmscott, Cotswolds, which boasts a rich history and stunning natural beauty. For £1,650,000, acquire three development plots with full planning permission: two new-build family homes, each designed for 4–5 bedrooms and generous living spaces, plus a characterful barn ripe for transformation into a charming two-bedroom residence.

The plots are set amidst picturesque countryside, with privacy and ample outdoor space. The quaint village provides a peaceful lifestyle, while remaining conveniently close to amenities and renowned independent schools. With the opportunity to meld modern living with rustic charm, this offering is truly unique and won’t last long—secure your slice of Cotswold excellence today!

Property Details

Image Descriptions

Textual Property Features

Detected Visual Features

Nearby Schools

Nearest Bars And Restaurants

,,,,}

Nearest General Shops

,,}

Nearest Grocery shops

,,}

Nearest Supermarkets

,,}

Nearest Religious buildings

,,}

Nearest Medical buildings

,,,}

Nearest Leisure Facilities

,,,,}

Nearest Tourist attractions

,,}

Nearest Train stations

,,,,}

Nearest Bus stations and stops

,,,,}

Nearest Hotels

,,}

Tags

Local Market Stats

Similar Properties

Meta

High Res Images

Compatible Images

Low res Images

Thumbnails

Raw Images