Eighth-floor two-bedroom with porter, lift and strong West End access.
Approximately 970 sq ft — large for a two-bedroom flat
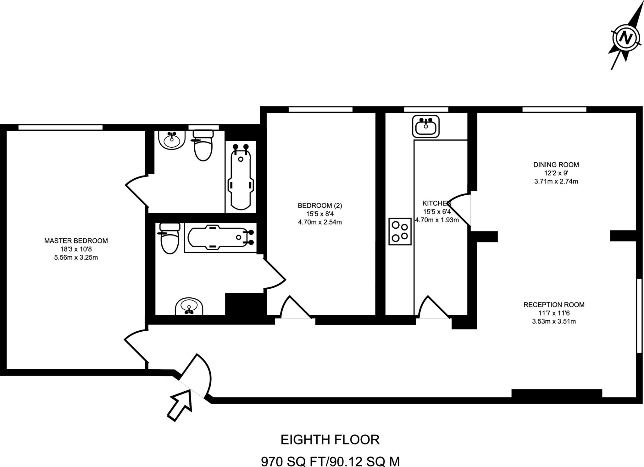
Set on the eighth floor of a Hyde Park Estate block, this bright two-bedroom flat extends to approximately 970 sq ft and combines generous living space with practical building amenities. The large reception and adjoining dining area, alongside a modern fitted kitchen and two en suite bedrooms, create a turnkey urban home or rental proposition. Lift access, porter services and a central Edgware Road location add convenience and appeal for professional tenants or owner-occupiers seeking West End connections.
Important trade-offs are clear and factual. The lease has 78 years remaining, which may restrict mortgage options; some lenders could refuse to lend. Service charges are high at around £10,000 per year, and the building’s construction (1930s–40s solid brick) suggests limited insulation and potentially higher running costs despite the community heating system. Crime levels in the area are above average and the wider neighbourhood shows signs of deprivation, both factors to weigh when considering long-term resale or lettings.
For buyers able to navigate the lease and service-charge profile — for example cash purchasers or experienced investors — the flat offers genuine strengths: substantial internal size, two full en suites, lift and porter, and immediate access to Edgware Road’s shops, restaurants and transport. The share-of-freehold tenure gives some scope for future management involvement. This is best suited to buyers seeking a spacious central London apartment with strong rental demand potential, who are prepared to address lease and running-cost realities.
2 bedroom flat for sale in Edgware Road, W2, Hyde Park Estate, London, W2 — £495,000 • 2 bed • 1 bath • 492 ft²
2 bedroom flat for sale in Edgware Road, Hyde Park Estate, London, W2 — £575,000 • 2 bed • 1 bath • 705 ft²
2 bedroom flat for sale in Porchester Road, Queensway, London, W2 — £575,000 • 2 bed • 2 bath • 693 ft²
3 bedroom flat for sale in Park West, Hyde Park Estate, London, W2 — £700,000 • 3 bed • 2 bath • 1090 ft²
2 bedroom flat for sale in Cambridge Court, Hyde Park Estate, London, W2 — £500,000 • 2 bed • 1 bath • 666 ft²
1 bedroom flat for sale in Park West, Hyde Park Estate, London, W2 — £415,000 • 1 bed • 1 bath • 424 ft²






































