Secure, sociable living close to Cheam village and transport links.
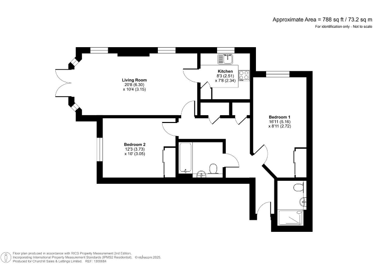
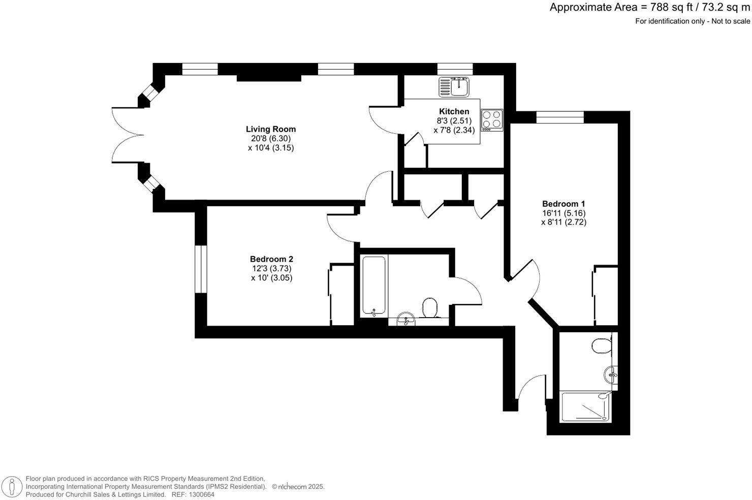
Ground-floor two-bedroom apartment with private patio
A bright ground-floor two-bedroom apartment in Hudson Lodge, a well-managed retirement development close to Cheam village and transport links. The accommodation includes a fitted kitchen with integrated appliances, a living room that opens onto a private patio facing communal gardens, two double bedrooms (one with ensuite), and useful hallway storage — arranged for comfortable, low-maintenance living.
The development is designed for security and community: an onsite lodge manager five days a week, 24-hour Careline monitoring, secure video entry, fire detection and regular social events in the owners’ lounge. Owners benefit from an allocated private car park and access to a Guest Suite in this and other Churchill Living developments for visiting family.
Practical strengths include very long lease length (about 993 years), energy-efficient ground-source heating included in the service charge, excellent broadband and mobile signal, and a low local crime rate. The setting is attractive — Tudor Revival architecture and well-kept communal gardens provide a pleasant, village-like feel despite being in a major conurbation.
Notable costs and legal points are transparent: this is leasehold, with an above-average service charge (£6,070.04 pa) and an annual ground rent (£625 pa, reviewed in 2026). The development requires at least one resident aged 60+, with the second resident aged 55+. Prospective buyers should check pet permissions and confirm Guest Suite booking charges with management.
2 bedroom retirement property for sale in Hudson Lodge, Cheam, Sutton, SM1 — £480,000 • 2 bed • 2 bath • 762 ft²
1 bedroom retirement property for sale in Hudson Lodge, Cheam, Sutton, SM1 — £350,000 • 1 bed • 1 bath • 538 ft²
2 bedroom flat for sale in Cheam Road, Sutton, Surrey, SM1 — £480,000 • 2 bed • 2 bath • 563 ft²
1 bedroom apartment for sale in Hudson Lodge, Cheam Road, Cheam, Sutton, SM1 — £300,000 • 1 bed • 1 bath • 571 ft²
1 bedroom penthouse for sale in Cheam Road, Cheam, Sutton, SM1 — £425,000 • 1 bed • 1 bath • 874 ft²
2 bedroom apartment for sale in Cheam Road, Cheam, Sutton, SM1 — £500,000 • 2 bed • 2 bath • 732 ft²






































































