Restored Tudor‑style manor with pool, converted barn units and 26 acres of grounds.
Five-bedroom main house with six reception rooms and five bathrooms
Heated indoor swimming pool and games room/potential gym
Barn converted into four self-contained units (income potential)
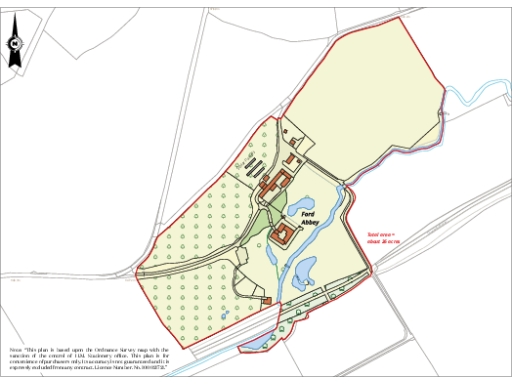
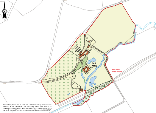
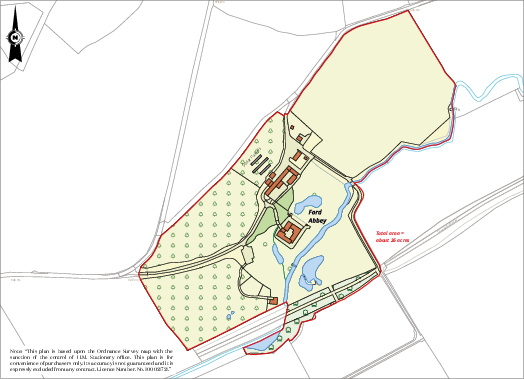
Approximately 26 acres including 8.5-acre paddock, orchard and water garden
Recently renovated main house; restoration carried out with archaeological surveys
Secluded location: no mobile signal and very slow broadband
Medium flood risk affecting parts of the grounds
Council tax is quite expensive; large estate maintenance required
Set within about 26 acres of landscaped grounds and paddock, this restored Tudor‑style country estate combines historical character with contemporary comforts. The main house, recently renovated, offers generous family accommodation across multiple reception rooms and five bedrooms, with picturesque views over water gardens and rolling countryside. A heated indoor pool, games room (or gym), orchard, and extensive outdoor seating areas create varied spaces for family life and entertaining.
A substantial converted barn of four separate units (two x one‑bed, two x two‑bed) sits adjacent to the main house, providing immediate ancillary accommodation or income potential for holiday lets or long‑term lets, subject to planning and management. The estate’s meandering streams, mature landscaping and an 8.5‑acre grass paddock make it well suited to equestrian use, small‑scale farming or gardens with scope for further enhancement.
The property is very secluded — peaceful and private — but that remoteness brings practical constraints. Mobile signal is absent and broadband speeds are very slow; local services are limited and the nearest sizeable towns are 18–45 miles away. There is a medium flood risk affecting parts of the grounds. Council tax is noted as quite expensive. Buyers should be comfortable with rural living and the operational demands of a large estate.
This is a distinctive offering for families or buyers seeking a heritage country home with ancillary accommodation and land. It will appeal to those valuing privacy, historic character and flexible outbuildings, and who can manage the logistics and costs of an isolated, high‑upkeep property.
6 bedroom country house for sale in Ford House, Neen Savage, Cleobury Mortimer, DY14 — £925,000 • 6 bed • 5 bath • 2540 ft²
8 bedroom country house for sale in Ledbury, Herefordshire, HR8 — £2,700,000 • 8 bed • 8 bath • 6781 ft²
8 bedroom detached house for sale in Pudleston, Leominster, Herefordshire, HR6 — £2,750,000 • 8 bed • 7 bath • 8344 ft²
4 bedroom detached house for sale in Deerfold, Birtley, Bucknell, Herefordshire, SY7 — £1,650,000 • 4 bed • 3 bath • 4000 ft²
5 bedroom detached house for sale in Breinton, Hereford - with 25 acres land, HR4 — £975,000 • 5 bed • 3 bath • 2233 ft²
4 bedroom detached house for sale in Rushock, Kington, Herefordshire,, HR5 — £575,000 • 4 bed • 1 bath • 1473 ft²






























































































































































































































































































































































































































































































































































































































































































































































































