Spacious family home with large garden and two garages near Hay‑on‑Wye.
Generous 2,300 sq ft detached cottage, approx four bedrooms
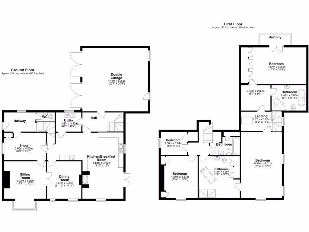
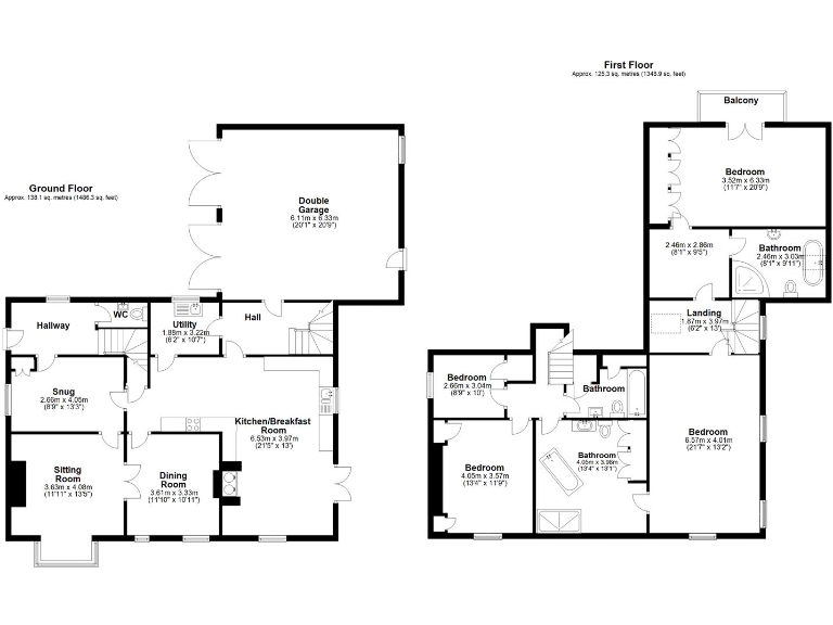
Priory Cottage is a substantial detached country home in a peaceful hamlet, sitting on a large plot with extensive off‑street parking and two garages. At around 2,300 sq ft it offers generous, characterful accommodation across well‑proportioned reception rooms and four bedrooms — a practical layout for a growing family or those seeking countryside space close to Hay‑on‑Wye. The setting delivers privacy, attractive rural views and a calm village atmosphere.
The house blends original period features with later improvements: double glazing installed post‑2002, an L‑shaped kitchen with an Aga, multiple reception rooms and useful utility space. Two driveways and separate garages provide convenient parking for several vehicles and storage for hobbies or equestrian equipment. Excellent mobile signal makes remote working feasible despite the remoter community classification.
Buyers should note a few material facts: the property uses oil-fired central heating with a boiler and radiators, is served by private drainage, and broadband speeds in the area are slow. Council Tax sits above average (Band E). The recorded property data lists one bathroom, although some marketing material refers to more — this discrepancy should be clarified at viewing or by enquiry.
Overall, Priory Cottage will suit families or buyers seeking a roomy, characterful rural home with strong outdoor space and parking. It offers immediate liveability with scope for further modernisation or upgrading to improve energy efficiency and connectivity for longer‑term value enhancement.
4 bedroom cottage for sale in Cusop Dingle, Hay-On-Wye, Hereford, HR3 — £665,000 • 4 bed • 2 bath • 1258 ft²
4 bedroom detached house for sale in Selling with no onward chain a four bedroom detached cottage, Herefordshire, HR3 — £695,000 • 4 bed • 3 bath • 3308 ft²
6 bedroom cottage for sale in Clifford, Hay-on-Wye, HR3 — £725,000 • 6 bed • 2 bath • 3260 ft²
4 bedroom detached house for sale in Llowes, Powys, HR3 — £325,000 • 4 bed • 2 bath • 1551 ft²
2 bedroom cottage for sale in Hardwicke, Nr Hay-on-Wye, HR3 — £285,000 • 2 bed • 1 bath • 863 ft²
5 bedroom detached house for sale in Llanigon, Hay-on-Wye, HR3 — £650,000 • 5 bed • 1 bath • 2349 ft²


























































































