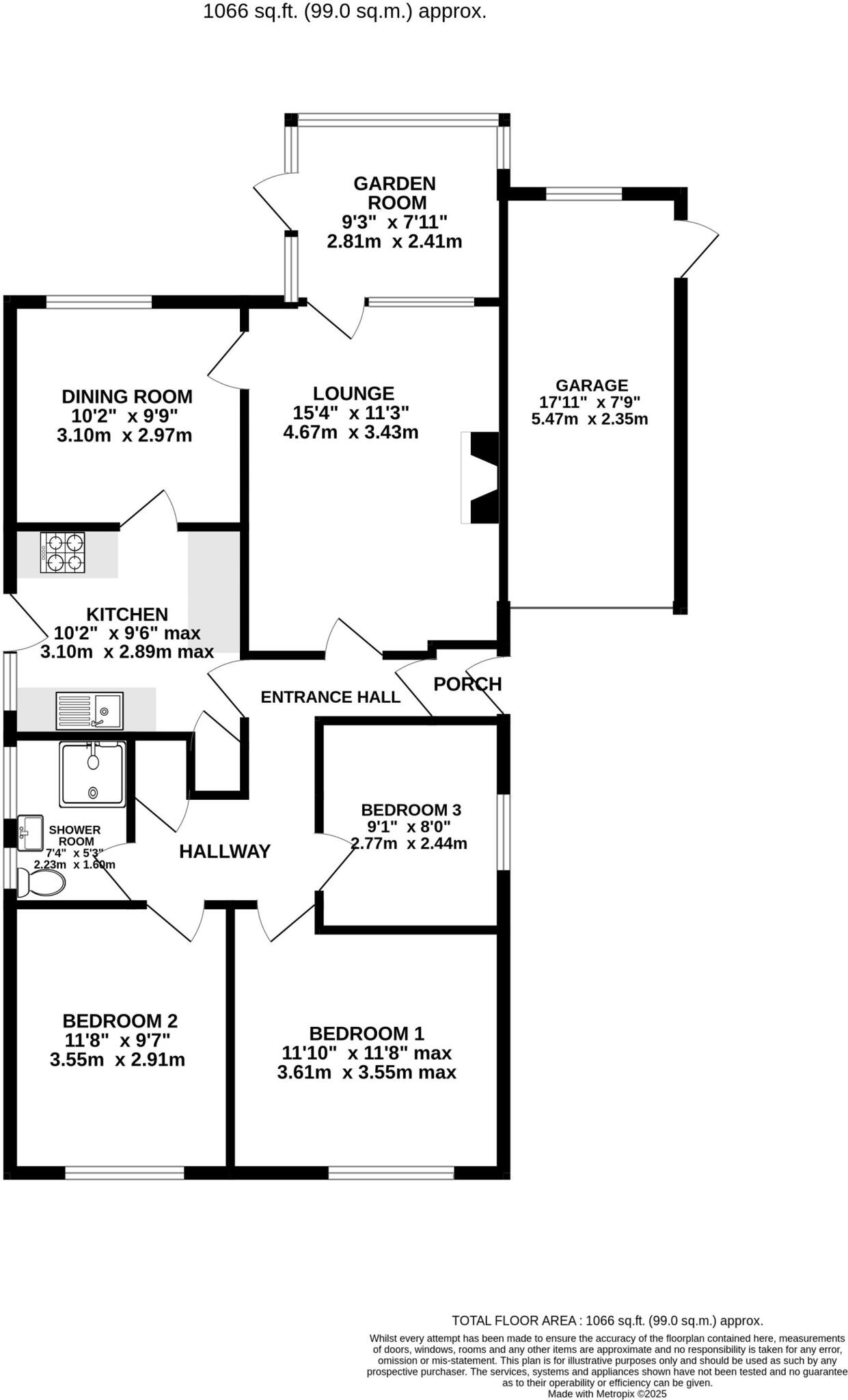
Single‑storey three-bedroom bungalow with garden, garage and no onward chain..
Westerly rear aspect with sunny private garden
Single‑storey layout — ideal for downsizers
Driveway, carport and single garage for off‑road parking
Three bedrooms but just one shower room
Chain free — available for a quicker move
Much scope to create open‑plan kitchen/living/dining
Built 1967–75; likely requires internal updating and improvements
EPC D and council tax above average
Set in a quiet Summers Close cul‑de‑sac, this three‑bedroom detached bungalow offers comfortable single‑storey living and a large private garden with a westerly rear aspect for afternoon sun. The accommodation includes a spacious lounge, separate dining room and a conservatory/garden room, giving scope for relaxed living and entertaining. Off‑road parking is generous with a driveway, carport and single garage.
The layout is adaptable and lends itself to modernising: the dining room and kitchen could be combined into an open‑plan kitchen/diner, creating a contemporary family hub. The house is offered chain free, so buyers who want to move quickly or plan a renovation can proceed without delay. The property is a short walk from Bexton Primary School and within easy reach of Knutsford town centre amenities.
Practical considerations: the bungalow dates from the late 1960s/early 1970s and, while the exterior appears maintained, the interior will benefit from updating to current standards. EPC is rated D, council tax sits above average and there is a single shower room only. These points are important for budgeting any refurbishment work and running costs.
This home will suit downsizers seeking a peaceful, single‑storey property with good garden space, or buyers looking for a project to personalise in a very desirable part of Knutsford. Its size and plot offer long‑term appeal, but buyers should plan for modernization and potential energy‑efficiency improvements.
3 bedroom detached bungalow for sale in Valley Way, Knutsford, WA16 — £465,000 • 3 bed • 1 bath • 1071 ft²
3 bedroom detached bungalow for sale in Tree Way, Knutsford, WA16 — £560,000 • 3 bed • 1 bath • 1131 ft²
2 bedroom detached bungalow for sale in Brookdale Avenue, Knutsford, WA16 — £425,000 • 2 bed • 1 bath • 977 ft²
3 bedroom detached bungalow for sale in Beechwood, Knutsford, WA16 — £478,000 • 3 bed • 2 bath • 1012 ft²
3 bedroom detached bungalow for sale in Summers Way, Knutsford, WA16 — £600,000 • 3 bed • 1 bath • 1292 ft²
2 bedroom bungalow for sale in Chelford Road, Knutsford, Cheshire, WA16 — £525,000 • 2 bed • 1 bath • 1227 ft²






























































